Добавить в корзинуПозвонить
Найти в Дзене
Баня | От А до Я

Как сделать бак для воды из нержавейки для бани: чертежи + видеоинструкция

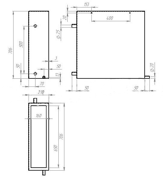
Для изготовления водяного бака вам понадобятся листы из нержавейки толщиной 1,3 – 1,8 миллиметра. Точные цифры высчитываются на основании объема емкости. Чертеж, которым можно руководствоваться при сборке, представлен ниже. Изменение размеров происходит при учете пропорций – в зависимости от необходимого объема бака. Расчет делается по классической формуле: длина, ширина и высота объекта умножаются друг на друга. Трубы из нержавеющей стали (диаметр до 102 см) доступны в строительных магазинах. Они покупаются для изготовки емкости подходящего объема. Формула для высчитывания объема цилиндра представлена ниже. Последовательность шагов при изготовке бака для воды рассмотрим на примере применения отрезка трубы в виде заготовки. Этап 1. Рассчитайте высоту водяного бака на основании формулы. Приведем пример: требуется изготовить 30-литровый бак. Для этих целей имеется труба, диаметр которой 1020 миллиметров. После преобразования, формула приобретает такой вид: H=30:(3,14х0,512) = 37 сантимет

Для изготовления водяного бака вам понадобятся листы из нержавейки толщиной 1,3 – 1,8 миллиметра. Точные цифры высчитываются на основании объема емкости. Чертеж, которым можно руководствоваться при сборке, представлен ниже.

Изменение размеров происходит при учете пропорций – в зависимости от необходимого объема бака. Расчет делается по классической формуле: длина, ширина и высота объекта умножаются друг на друга. Трубы из нержавеющей стали (диаметр до 102 см) доступны в строительных магазинах. Они покупаются для изготовки емкости подходящего объема.

Формула для высчитывания объема цилиндра представлена ниже.
-2

Последовательность шагов при изготовке бака для воды рассмотрим на примере применения отрезка трубы в виде заготовки.

Этап 1. Рассчитайте высоту водяного бака на основании формулы. Приведем пример: требуется изготовить 30-литровый бак. Для этих целей имеется труба, диаметр которой 1020 миллиметров. После преобразования, формула приобретает такой вид: H=30:(3,14х0,512) = 37 сантиметров. 37 – это длина отрезка трубы, который нужен для бака.

Этап 2. Отрежьте трубу с помощью болгарки. Для работы с нержавейкой подойдут диски толщиной в 1 миллиметр и с диаметром в 11,5 сантиметр. Обработайте области распила. Для этой цели подойдет ручная бормашина или напильник. Подручные средства дают тот же результат, что и бормашина, но требуют больше усилий и времени.

-3

Этап 3. Изготовьте дно и крышку водяного бака. Работа проходит в четыре шага:

1. Начертите на листе нержавейки окружность, соответствующую отверстиям, которые она закроет в будущем. Для простоты поместите трубу на металлический лист и обведите ее.

2. Вырежьте две заготовки по сделанной разметке. Для разрезания и шлифовки воспользуйтесь болгаркой или бормашиной.

3. Проделайте отверстия в дне и крышке, равные диаметру дымо-отводящей трубы (если вы остановились на натрубном способе установки бака).

4. Приготовьте отверстия для прикрепления патрубков к кранам (если они монтируются в днище, что справедливо для выносных конструкций).

Соедините дно и крышку с корпусом бака. Соединение производится разными способами:

  • пайкой и безсвинцовыми или высоко температурными припоями;
  • сваркой – автоматической или ручной (при обработке нержавейки работа возможна только в среде защитных газов).

Наиболее практичным является второй способ, если точнее – ручная дуговая сварка. Сварка производится с использованием неплавящегося электрода. Защитным газом выступает аргон. При обработке отслеживайте качество швов – они должны получится однородными. По окончанию работ проводится зачистка.

Этап 4. Подготовьте отверстия. Способ изготовления отверстий зависит от типа конструкции. Представим, что наша конструкция имеет два патрубка с кранами. По верхнему патрубку проходит холодная вода. По нижнему разогретая вода достигает человека.

Диаметр патрубка равен диаметру водопроводной трубы, которая используется в комплекте с ними. Обычно диаметр труб составляет один дюйм. Сверление нержавейки производится электродрелью на пониженных оборотах – до ста оборотов в 60 секунд.

-4

Этап 5. Установите патрубки с кранами. В целях упрощения процедуры приварите патрубки к заранее заготовленным отверстиям. Такой ход позволит избавится от необходимости обустраивать резьбу.

-5

После монтажа водяного бака по выбранной схеме подключите к патрубкам водопроводные трубы соответствующего диаметра. Соедините патрубок с резьбой резьбовым переходником.