Найти в Дзене
Молния: мастерская Xev

Планировки квартир в США. Почему бы в России не строить такие

На мой взгляд, американские инженеры гораздо более продуманно подходят к строительству жилья. В США нет слова "квартира", но зато есть апартаменты. И они бывают разных габаритов и 30 м2 и 420 м2. Конечно, не зря называют что-то большое американским размером. Действительно апартаменты у них просторные и имеют большие окна, дающие много света. Я выбрала несколько небольших для США планировок современных новостроек. Для привычного нам понимания, буду называть их квартирами. Квартира студия 33,63 м2 В данных апартаментах предусмотрено все самое важное для жизни: просторный санузел с большой душевой кабиной. Туалет и душ разделены помещением с умывальниками. Это очень удобно. Особенно то, что фактически туалет расположен за 2-мя дверьми. При входе встроенный гардероб. За ним сразу же кухонный гарнитур. Это предполагаемый план расстановки мебели. Она может быть любой. Но само помещение достаточно удобное. Окна на всю стену. Квартира с 2 спальнями 63,73 м2 Интересный факт: в США квартиру не с
Оглавление

На мой взгляд, американские инженеры гораздо более продуманно подходят к строительству жилья. В США нет слова "квартира", но зато есть апартаменты. И они бывают разных габаритов и 30 м2 и 420 м2. Конечно, не зря называют что-то большое американским размером. Действительно апартаменты у них просторные и имеют большие окна, дающие много света.

Я выбрала несколько небольших для США планировок современных новостроек. Для привычного нам понимания, буду называть их квартирами.

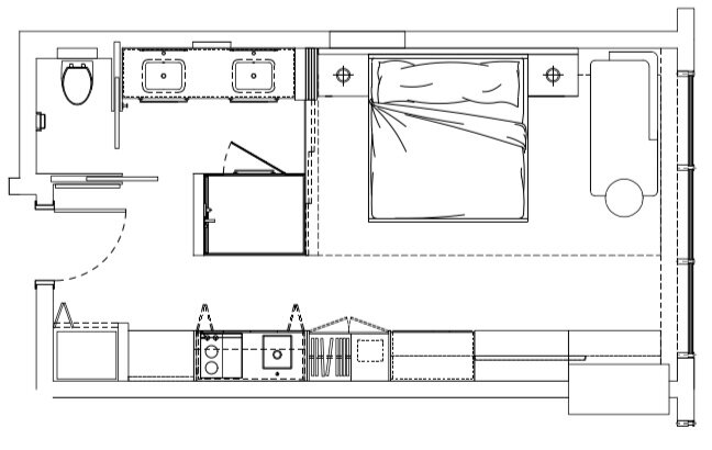
Квартира студия 33,63 м2

В данных апартаментах предусмотрено все самое важное для жизни: просторный санузел с большой душевой кабиной. Туалет и душ разделены помещением с умывальниками. Это очень удобно. Особенно то, что фактически туалет расположен за 2-мя дверьми. При входе встроенный гардероб. За ним сразу же кухонный гарнитур. Это предполагаемый план расстановки мебели. Она может быть любой. Но само помещение достаточно удобное. Окна на всю стену.

Студия в США 33,63 м2
Студия в США 33,63 м2

Квартира с 2 спальнями 63,73 м2

Интересный факт: в США квартиру не считают по комнатам, как у нас. Если в России говорят 2-х комнатная квартира и это значит, что в ней имеется кухня, прихожая, санузел и + 2 комнаты неважно какого назначения, то американцы учитывают только спальни. Все помещения не входят в жилое помещение в нашем понимании.

У этой квартиры интересная геометрия расположения комнат. А еще, обратите внимание, что для каждой спальни свой отдельный санузел.

Квартира 63,73 м2
Квартира 63,73 м2

Квартира с 1 спальней 83,33 м2

А эта квартира всего лишь с одной спальней, но с просторной и супер светлой гостиной. У нас бы на этих квадратах уместилась трешка.

Еще один интересный факт: в апартаментах США не изолируют кухонную зону в отдельное помещение. Она, как правило, совмещена с гостиной.

Квартира 83,33 м2
Квартира 83,33 м2

Квартира с 2-мя спальнями 136 м2

Это шикарная квартира, в которой есть все, что нужно. Много мест хранения, 2 гардеробные, как обычно, на каждую спальню отдельная ванна и туалет, большая кухонная зона и шикарная терраса. Интересно, что здесь еще есть и 3-й туалет для гостей.

Квартира 136 м2
Квартира 136 м2

Квартира с 1 спальней 51,38 м2

Но вернемся к более привычным для нас размерам квартир. В российских квартирах на 50 квадратных метрах умещается и прихожая и кухня отдельно, при этом небольшие размеры санузлов. Здесь же подход более рационален.

Очередной интересный факт: в этих квартирах нет прихожей как таковой. У двери всегда есть встроенная гардеробная, где можно разместить одежду и обувь, есть хозблок. В данной квартире кухня начинается прямо от входной двери переходя в гостиную. Ниже фото похожей входной зоны.

Квартира 51,38 м2
Квартира 51,38 м2

Квартира с 1 спальней 38 м2

В России много граждан живут на 34-40 квадратных метрах. Эти квартиры очень тесные. Но при такой планировке все выглядит гораздо иначе.

Квартира 38 м2
Квартира 38 м2

Возможно вам будет интересно полистать фотографии кухонь в американских квартирах.

Посмотрите еще на планировки наших хрущевок и брежневок разных серий домов.

Чтобы найти все статьи по нужной теме, перейдите по хештегам:#молния: архитектура и ремонт

Если понравился материал, ставьте лайк и подписывайтесь на канал Мастерская Xev. Здесь вы найдете много интересного, а впереди будет еще больше.
Контент защищены авторским правом. Копирование запрещено.