Добавить в корзинуПозвонить
Найти в Дзене
DARIA ELNIKOVA INTERIORS

Квартира 115 кв.м. в ЖК I'M: 3D & Photo

В нашу студию обратились заказчики с квартирой 115 кв.м. Заказчики – семья из трех человек: муж с женой и сын-подросток 15 лет. Квартира была куплена с ремонтом от застройщика. Для нас это нетипичная ситуация, мы достаточно редко берём такие проекты. В данном случае, мы получили квартиру с предчистовой отделкой, готовыми под покраску стенами, плиткой, которую мы не меняли, и уже с готовыми санузлами, в которых также не требовалось никаких изменений и которые соответствовали современному дизайну интерьера. Застройщиком уже были закуплены двери и паркетная доска, которую мы так же решили оставить ввиду соответствии современному стилю. Бюджет ремонта, который нам предстояло сделать, был достаточный, и возможности заказчика соответствовали его пожеланиям по дизайну. А основным пожеланием было получить яркий интерьер в котором им будет удобно и комфортно жить. Поэтому мы с удовольствием взялись за проект. Вот так выглядела квартира, которую мы увидели первый раз Одним из сложных моментов

В нашу студию обратились заказчики с квартирой 115 кв.м. Заказчики – семья из трех человек: муж с женой и сын-подросток 15 лет.

Квартира была куплена с ремонтом от застройщика. Для нас это нетипичная ситуация, мы достаточно редко берём такие проекты.

В данном случае, мы получили квартиру с предчистовой отделкой, готовыми под покраску стенами, плиткой, которую мы не меняли, и уже с готовыми санузлами, в которых также не требовалось никаких изменений и которые соответствовали современному дизайну интерьера. Застройщиком уже были закуплены двери и паркетная доска, которую мы так же решили оставить ввиду соответствии современному стилю.

Бюджет ремонта, который нам предстояло сделать, был достаточный, и возможности заказчика соответствовали его пожеланиям по дизайну. А основным пожеланием было получить яркий интерьер в котором им будет удобно и комфортно жить. Поэтому мы с удовольствием взялись за проект.

Вот так выглядела квартира, которую мы увидели первый раз

В квартире выполнена предчистовая отделка
В квартире выполнена предчистовая отделка

Одним из сложных моментов в квартирах с имеющейся отделкой является освещение, которое выведено застройщиком, обычно, не совсем в тех зонах, в которых планируется расставить мебель в будущем. Приходится либо расставлять мебель менее удобным образом, чтобы освещение могло соответствовать зонам, в которых оно предусмотрено. Либо требуется сдвигать освещение, или подбирать такие типы освещения, которые можно видоизменить, чтобы казалось, что именно так задумано именно в этой зоне. В нашем случае мы как раз воспользовались таким приемом.

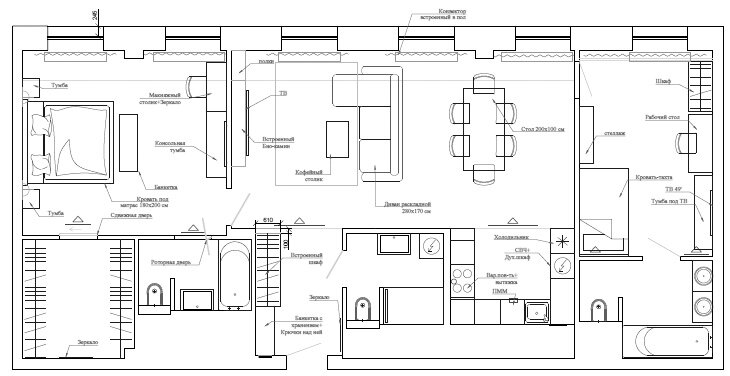
После выполнения замера мы приступили к дизайну. Сначала мы разработали план расстановки мебели, планировочное решение практически не меняли (добавили лишь перегородку в прихожей для встроенного шкафа). Напомню, что санузлы мы не трогали совсем.

План расстановки мебели
План расстановки мебели

Далее мы приступили к разработке дизайн проекта и визуализации, после ее согласования приступили к реализации с сопровождением. В ходе ремонта, нашему Заказчику удалось договориться с Застройщиком на применение чистовых материалов, выбранных нами по дизайн-проекту, что позволило практически не привлекать других рабочих, только декоративную штукатурку и рисунок в детской мальчика делали привлеченные специалисты.

3D-визуализация кухни-гостиной
3D-визуализация кухни-гостиной
Реализация кухни-гостиной (Фото Антон Лихтарович)
Реализация кухни-гостиной (Фото Антон Лихтарович)

При выборе дивана, заказчики попросили подобрать, с более легкой и изящной конструкцией - мы выбрали диван на ножках

3D-визуализация обеденной зоны
3D-визуализация обеденной зоны

Реализация обеденной зоны (Фото Антон Лихтарович)
Реализация обеденной зоны (Фото Антон Лихтарович)

3D-визуализация кухни-гостиной
3D-визуализация кухни-гостиной
Реализация кухни-гостиной (Фото Антон Лихтарович)
Реализация кухни-гостиной (Фото Антон Лихтарович)

Если обратить внимание, то на визуализации в тумбу встроена горелка от био-камина, от которой заказчики решили отказаться, при реализации объекта

3D-визуализация кухни-гостиной
3D-визуализация кухни-гостиной
Реализация кухни-гостиной (Фото Антон Лихтарович)
Реализация кухни-гостиной (Фото Антон Лихтарович)

3D-визуализация кухни-гостиной
3D-визуализация кухни-гостиной
Реализация кухни-гостиной (Фото Антон Лихтарович)
Реализация кухни-гостиной (Фото Антон Лихтарович)

3D-визуализация прихожей
3D-визуализация прихожей
Реализация прихожей (Фото Антон Лихтарович)
Реализация прихожей (Фото Антон Лихтарович)

3D-визуализация спальни
3D-визуализация спальни
Реализация спальни (Фото Антон Лихтарович)
Реализация спальни (Фото Антон Лихтарович)

3D-визуализация спальни
3D-визуализация спальни
Реализация спальни (Фото Антон Лихтарович)
Реализация спальни (Фото Антон Лихтарович)

3D-визуализация комнаты для парня
3D-визуализация комнаты для парня
Реализация комнаты для парня (Фото Антон Лихтарович)
Реализация комнаты для парня (Фото Антон Лихтарович)
Реализация комнаты для парня (Фото Антон Лихтарович)
Реализация комнаты для парня (Фото Антон Лихтарович)
Реализация комнаты для парня (Фото Антон Лихтарович)
Реализация комнаты для парня (Фото Антон Лихтарович)
3D-визуализация комнаты для парня
3D-визуализация комнаты для парня
Реализация комнаты для парня (Фото Антон Лихтарович)
Реализация комнаты для парня (Фото Антон Лихтарович)

Реализация комнаты для парня (Фото Антон Лихтарович)
Реализация комнаты для парня (Фото Антон Лихтарович)

Автор дизайна интерьера Архитектор Дарья Ельникова
Автор дизайна интерьера Архитектор Дарья Ельникова

Фото взяты с нашего сайта elnikova.com

Архитектор и Автор проектов Дарья Ельникова Elnikova.com

Заказать проект можно здесь или по тел/WA +7 (995) 115-23-20