Найти в Дзене
Войти
Archivolkov
244 подписчика
Подписаться
Одноэтажный дом 170 м²
6 марта 2020
6 мар 2020
613
~1 мин
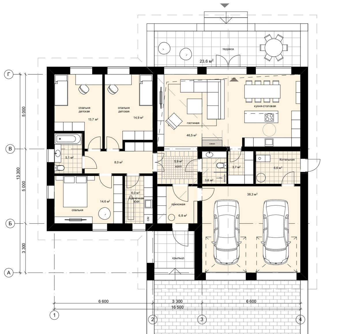
Три спальни, гараж на два автомобиля, просторная общая зона
Три спальни, гараж на два автомобиля, просторная общая зона
...
Читать далее
Главный фасад
Главный фасад
Три спальни, гараж на два автомобиля, просторная общая зона
Простая функциональная планировка
Простая функциональная планировка
17