Добавить в корзинуПозвонить
Найти в Дзене

Купили квартиру? Нужен дизайнер! Или не нужен?

Возможен ли ремонт без дизайнера интерьера?  Конечно - да! С чем придется столкнуться новичку, и стоит ли осваивать профессию дизайнера, если есть возможность его нанять?  Подводные камни или процесс дизайна интерьера, как он есть.                           1. Чтобы начать хоть что-то планировать, надо как минимум выполнить замер помещений. Это необходимо не только для грамотной перепланировки, но и для покупки необходимого количества строительных и отделочных материалов. Замеры необходимо выполнять очень тщательно, т. к. любая ошибка может привести к серьезным последствиям. Профессионалы используют специальные инструменты: лазерную рулетку, угломер и др. Замеряют не только периметр стен, но и диагонали помещений. Это важно, чтобы правильно построить комнаты. Поверьте, они далеко не всегда имеют форму правильного прямоугольника с углами в 90 градусов! 2. Планировка помещений. Сначала вычерчивают существующие стены в масштабе, учитывая их толщины. На этом этапе важно понять, какие ст
На фото - реализованные интерьеры из портфолио дизайнеров Андрея и Екатерины Андреевых.
На фото - реализованные интерьеры из портфолио дизайнеров Андрея и Екатерины Андреевых.

Возможен ли ремонт без дизайнера интерьера?  Конечно - да! С чем придется столкнуться новичку, и стоит ли осваивать профессию дизайнера, если есть возможность его нанять?  Подводные камни или процесс дизайна интерьера, как он есть.

                         

1. Чтобы начать хоть что-то планировать, надо как минимум выполнить замер помещений. Это необходимо не только для грамотной перепланировки, но и для покупки необходимого количества строительных и отделочных материалов. Замеры необходимо выполнять очень тщательно, т. к. любая ошибка может привести к серьезным последствиям. Профессионалы используют специальные инструменты: лазерную рулетку, угломер и др. Замеряют не только периметр стен, но и диагонали помещений. Это важно, чтобы правильно построить комнаты. Поверьте, они далеко не всегда имеют форму правильного прямоугольника с углами в 90 градусов!

2. Планировка помещений. Сначала вычерчивают существующие стены в масштабе, учитывая их толщины. На этом этапе важно понять, какие стены являются несущими, а какие можно убрать. Профессиональный дизайнер использует для этого специальные компьютерные программы, позволяющие выполнять чертежи.  

Перепланировка, выполненная профессиональным дизайнером, учитывает индивидуальные особенности жизненного уклада хозяев.  Кому-то важно иметь большую кухню и гостиную для приема гостей или гардеробную комнату. А кто-то питается в ресторане и не представляет свою жизнь без собственного кинозала (на картинке - планировка из дизайн-проекта дизайнеров Андрея и Екатерины Андреевых).
Перепланировка, выполненная профессиональным дизайнером, учитывает индивидуальные особенности жизненного уклада хозяев. Кому-то важно иметь большую кухню и гостиную для приема гостей или гардеробную комнату. А кто-то питается в ресторане и не представляет свою жизнь без собственного кинозала (на картинке - планировка из дизайн-проекта дизайнеров Андрея и Екатерины Андреевых).

3. Перепланировка. Самый важный этап дизайн-проекта, ведь потом что-либо менять может уже будет поздно! На чертежах перепланировки должны появиться желаемые стены, перегородки, ниши и др. Перепланировку необходимо выполнять строго в масштабе и обязательно с мебелью (мебель тоже в масштабе)! Так же важно учитывать все нормы и правила. Например, нельзя расширять кухню и санузлы за счет жилого помещения, а вот за счет коридора - можно. Или, например, нельзя сделать из двух комнат три, если у вас всего два окна. Жилая комната не может быть совсем без окна! И др. Профессиональный дизайнер обычно выполняет несколько вариантов перепланировки с учетом пожеланий заказчика, чтобы затем можно было выбрать наиболее подходящий.

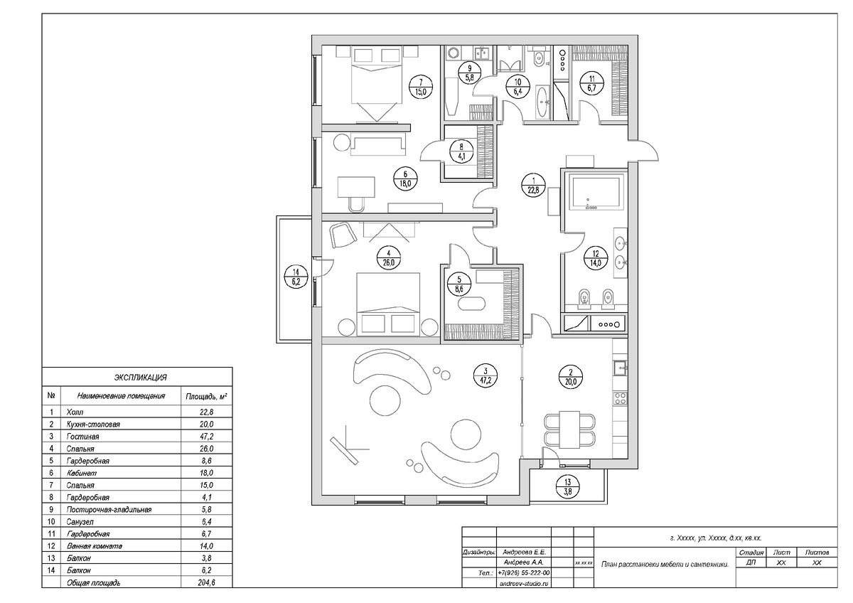
На картинке - планировка с экспликацией помещений из дизайн-проекта квартиры в Москве (дизайнеры Андрей и Екатерина Андреевы).
На картинке - планировка с экспликацией помещений из дизайн-проекта квартиры в Москве (дизайнеры Андрей и Екатерина Андреевы).

4. Согласование перепланировки в контролирующих инстанциях. Перед дальнейшей разработкой дизайна квартиры, таунхауса или дома стоит убедиться, что утвержденная желаемая перепланировка не нарушает никакие правила и нормативы. Это необходимо, чтобы, как минимум, не нарушить несущие конструкции здания. А также избежать конфликтов с соседями, ведь если у вас все сделано по нормативам, то и придраться не к чему.

5. Идея интерьера и стиль интерьера. Если планировочное решение утверждено, то дальше стоит задуматься о стиле и общей концепции интерьера. (Хотя профессиональный дизайнер будет думать об этом уже на этапе планировочного решения, т. к., например, в классическом стиле важна симметрия). Неоклассика или скандинавский стиль, минимализм или барокко, а может что-то новое, индивидуальное, эклектичное? Будет ли это тема любимых путешествий или цветочного сада, городские мотивы или интерьер из любимого фильма, - решать вам. Пролистайте интерьерные журналы, изучите фото готовых интерьеров, посмотрите тематические видеоканалы. Вспомните свои увлечения и хобби всех членов вашей семьи. Возможно идеи всех комнат будут разными. Однако, здорово, когда есть общая идея.

Минималистичный интерьер - эскиз гостиной из дизайн-проекта квартиры в Москве (дизайнеры Андрей и Екатерина Андреевы)
Минималистичный интерьер - эскиз гостиной из дизайн-проекта квартиры в Москве (дизайнеры Андрей и Екатерина Андреевы)

6. Эскизы. Если работать с профессиональным дизайнером, то после утверждения планировки, выбора стиля и идеи интерьера, обычно, выполняют эскизы будущего интерьера, - так называемую 3d-графику. Эскизы в 3-d графике позволяют увидеть близкие к реальности фотографии будущего интерьера в различных ракурсах. Эскизы дают представление о стиле, цвете, пропорциях. Это очень удобный инструмент особенно для людей, которые не понимают и не представляют, подходит ли им выбранный стиль, цвет, орнамент, форма и др. Самостоятельно, без обучения, конечно нельзя выполнить профессиональную 3-d графику, но хотя бы коллажи с подбором основных цветовых решений для каждого помещения стоит попробовать сделать, если вы не собираетесь обращаться к дизайнеру интерьеров.

3d- эскиз из дизайн-проекта. Дизайнеры Андрей и Екатерина Андреевы: "Чертежи и 3d-эскизы мы выполняем самостоятельно - владеем необходимыми компьютерными программами. Считаем важным, не нанимать кого-то, а лично участвовать в разработке проекта. Иначе, проект нельзя назвать авторским!".
3d- эскиз из дизайн-проекта. Дизайнеры Андрей и Екатерина Андреевы: "Чертежи и 3d-эскизы мы выполняем самостоятельно - владеем необходимыми компьютерными программами. Считаем важным, не нанимать кого-то, а лично участвовать в разработке проекта. Иначе, проект нельзя назвать авторским!".

7. На основании утвержденной 3-Д-графики, профессиональный дизайнер выполняет чертежи потолка, стен, пола, электрики, размещения сантехники, необходимые для строителей разрезы потолков и др. Чертежи просто необходимы для строителей. Иначе придется все показывать на ходу! А тут ошибок вряд ли удастся избежать! А ошибки в ходе ремонта, обычно, ведут к большим материальным затратам! Можно попробовать самостоятельно выполнить необходимые для строителей чертежи и планы, но учесть все нюансы и тонкости, к сожалению, без опыта очень сложно.

План возводимых конструкций - чертеж из дизайн-проекта квартиры в Сколково (дизайнеры Андрей и Екатерина Андреевы).
План возводимых конструкций - чертеж из дизайн-проекта квартиры в Сколково (дизайнеры Андрей и Екатерина Андреевы).

8. Имея на руках готовый дизайн-проект, удобно общаться со строительной бригадой. Вам не придется рисовать на стенах и гадать, где лучше сделать розетку или выключатель, куда повесить люстру, чтобы она была, например, зацентрована точно по столу, и точечные светильники. Где опустить потолок, сделав зонирование, а где его поднять. Как провести линию между керамогранитом и паркетной доской и др. Строители не будут ждать, пока вы принимаете сложные для себя решения! Они хотят быстрее сдать объект, простой для них - это потерянные деньги!

9. Выполнение дополнительных проектов: кондиционирование и вентиляция, тепло-расчет и отопление, электро-проект, слаботочные системы, система пожаротушения и др. Дополнительные проекты выполняются при необходимости и, обычно, во время работы над чертежами дизайн-проекта. В дизайн-проект после согласования со специалистами по кондиционированию, вентиляции и т. п. могут вноситься дополнительные корректировки. Согласитесь, что все правки удобнее и дешевле сделать на бумаге, чем на строительной площадке.

Невозможно выполнить ремонт квартиры, таунхауса или дома не имея четко разработанного дизайн-проекта. Все детали интерьера должны быть продуманы до мелочей!
Невозможно выполнить ремонт квартиры, таунхауса или дома не имея четко разработанного дизайн-проекта. Все детали интерьера должны быть продуманы до мелочей!

10. Начало ремонта на объекте. Теперь можно смело вызывать строительную бригаду – вы ведь точно знаете, что хотите и как должен выглядеть ваш будущий интерьер. И можете ответить на все вопросы строителей, которых обычно бывает не мало, даже при наличие профессионального дизайн-проекта. Дизайнер же, обычно, при первой встрече со строительной бригадой, объясняет все тонкости и нюансы предстоящей работы и начинает ведение авторского надзора на объекте.

Если у вас не сложный проект и уже есть опыт, то, конечно, можно пройти все этапы самостоятельно. Если нет опыта и хочется чего-то более интересного и сложного – обратитесь к профессионалам!

Заказать дизайн-проект у дизайнеров Андрея и Екатерины Андреевых (Москва) можно по телефону - +79265522200 (сайт - andreev-studio.ru).

Подписывайтесь на наш канал! Нам есть что Вам рассказать!