Добавить в корзинуПозвонить
Найти в Дзене

Раздел II. Комната

Этап оформления кухни был пройден и остро встал этап обустройства комнаты . По большому счету, мысли как оформить единственную комнату, чтобы учесть все потребности посещали с момента приобретения квартиры. Но концепция менялась, как погода в начале весны. Основным был посыл, что нужна зональность , так как места мало, а предметов, которые требовали хранения было много. На первом этапе решили провести инвентаризацию категорий вещей. Получилось не так много: книги, одежда, постельные принадлежности, обувь и мелкое - разное. Сразу оговорюсь, что, мелкое-разное оказалось самой трудной категорией, которая до сих пор лежит в коробках и ждет своего часа по размещению. Самой простой оказалась одежда. Было принято решение сделать встроенный шкаф-купе, по левой стене. Решение было сформировано не сразу. Это решение очень понравилось своей простотой и возможностью разместить очень большой объем вещей. Причем это решение делало вытянутую, прямоугольную более квадратной, что, по канонам диз

Этап оформления кухни был пройден и остро встал этап обустройства комнаты .

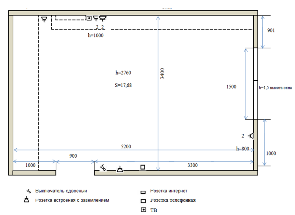
чертеж прораба
чертеж прораба

По большому счету, мысли как оформить единственную комнату, чтобы учесть все потребности посещали с момента приобретения квартиры. Но концепция менялась, как погода в начале весны.

Основным был посыл, что нужна зональность , так как места мало, а предметов, которые требовали хранения было много.

На первом этапе решили провести инвентаризацию категорий вещей.

Получилось не так много: книги, одежда, постельные принадлежности, обувь и мелкое - разное.

Сразу оговорюсь, что, мелкое-разное оказалось самой трудной категорией, которая до сих пор лежит в коробках и ждет своего часа по размещению.

Самой простой оказалась одежда. Было принято решение сделать встроенный шкаф-купе, по левой стене. Решение было сформировано не сразу. Это решение очень понравилось своей простотой и возможностью разместить очень большой объем вещей. Причем это решение делало вытянутую, прямоугольную более квадратной, что, по канонам дизайн, является лучшим решением

-3

На фото представлено решение, когда системы хранения были представлены в разных частях комнаты.

один из промежуточных проектов
один из промежуточных проектов

Стали искать исполнителя. Это отдельный разговор, что за шкаф купе, встроенный размером 3400 на 700 мне выставляли кардинально разные суммы и вопрос был не в качестве материалов, в любом случае я смотрела сегмент ДСП немецкого производства.

После длительных походов по мебельным магазинам пришло решение расспрашивать знакомых и искать рекомендации частных мастеров. Удивительно, но ресурс, таких же как мы новоселов оказался самым продуктивным. Нашли мастера и поставили ему задачу – посчитать , сколько будет стоить шкаф. Мастер оказался очень аккуратным и ориентированным на клиента.

Он приехал на замер, бесплатный (приятный бонус) и два с лишним часа расспрашивал меня и моих близких , но не о размерах, а об вещах, которые мы хотели в нем разместить. Мы долго обсуждали, сначала цветовое решение, мастер ходил по квартире и осматривал обои, смотрел цвет пола, освещенность комнаты.

Сложность была еще и в том, что в комнате были натяжные потолки и это усложняло возможность сделать шкаф под потолок. Сразу скажу, что в конце раздела я покажу , как реализовали проект. Шкаф понравился всем, даже моя кошка использует его, как свою отдельную комнату, когда мы слишком ей надоедаем)). Но это будет в следующих главах и позже.

А пока промежуточный чертеж - результат длинных дебатов.

-5

Специально прерываюсь на этапе чертежа, чтобы в следующей главе детально рассказать, на какие "грабли" лучше не наступать при планировании мебели для хранения в индивидуальном исполнении.

Ваш Канал Новоселье. Копилка счастья.