Добавить в корзинуПозвонить
Найти в Дзене
Tutproekt

Проект уютного маленького дома 65 кв.м

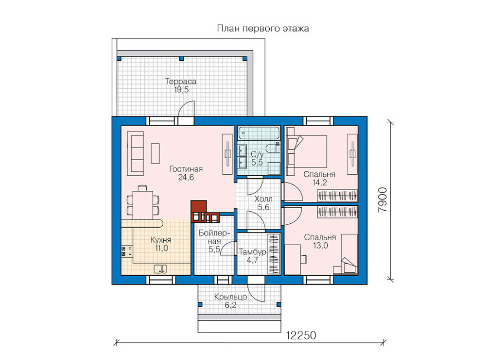
В данной статье я представлю интересный проект бюджетного маленького дома. Большие две спальни 14.2 кв.м и 13 кв.м + кухня-гостиная 35.6 кв.м, прекрасно подойдет для постоянного проживания небольшой семьи.
Большая прихожая позволит расположить вместительные шкафы для одежды. А в бойлерной можно разместить отопительный котел дома и все необходимые коммуникации. А также можно разместить дополнительный санузел. Я считаю данный проект дома прекрасно заменит двухкомнатную квартиру.

В данной статье я представлю интересный проект бюджетного маленького дома.

Вид дома
Вид дома

Большие две спальни 14.2 кв.м и 13 кв.м + кухня-гостиная 35.6 кв.м, прекрасно подойдет для постоянного проживания небольшой семьи.
Большая прихожая позволит расположить вместительные шкафы для одежды. А в бойлерной можно разместить отопительный котел дома и все необходимые коммуникации. А также можно разместить дополнительный санузел.

Планировка дома
Планировка дома

Я считаю данный проект дома прекрасно заменит двухкомнатную квартиру.

фасад дома
фасад дома