Добавить в корзинуПозвонить
Найти в Дзене
Krohinzon

Возможно ли кухню в малогабаритной хрущёвке сделать удобной?

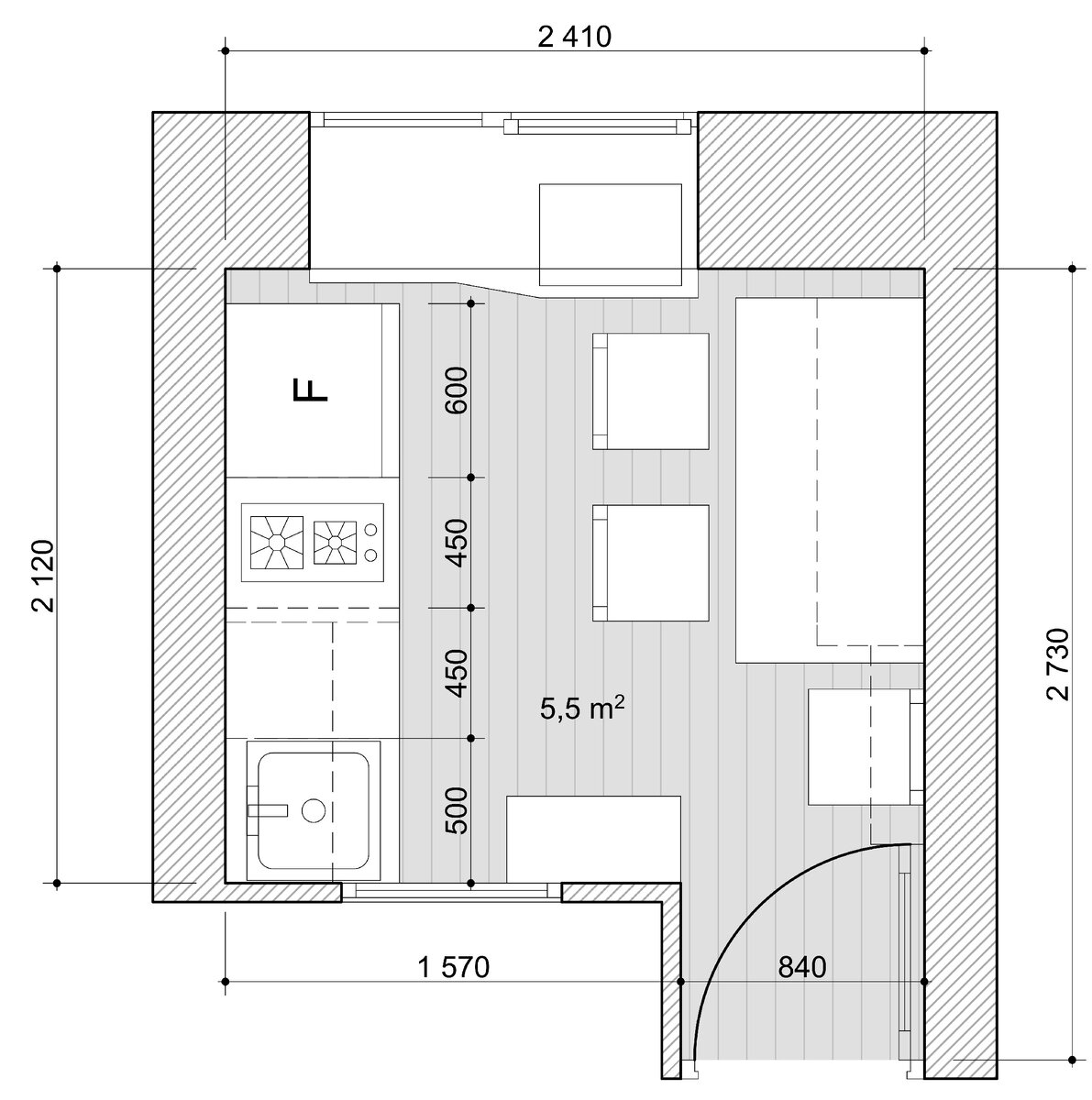
Возможно ли кухню в малогабаритной хрущёвке сделать удобной? Многие годы я отмахивался от ответа на этот вопрос. Пока роковая эсэмеска не заставила меня заняться им вплотную. Итак, что мы имеем: семью из четырёх человек и кухню 5.5 кв.м. Трубы — газовая и отопления — сужают и без того не широкий кухонный фронт. Стараемся сделать всё максимально дешёво, из материалов, имеющихся в наличии в крупных сетевых магазинах и... своими руками. Начинаем, конечно, с главного, с кухонного фронта. Из 210 сантиметров вычитаем 60 на холодильник и порядка 5 на свес подоконника. В сухом остатке имеем 140 сантиметров. Минимальная ширина плиты — 50, посудомоечной машины — 45. Понимаем, что в оставшиеся 45 мы мойку уже не впихнём. И тут нас осеняет: так надо отказаться от четырёхкомфорочной плиты и заменить её на двухкомфорочную варочную панель. Всё равно из-за близкого расположения холодильника мы не пользуемся двумя крайними комфорками. Попутно я выясняю, что существуют духовые шкафы на 45. Ассортимент

План
План

Возможно ли кухню в малогабаритной хрущёвке сделать удобной? Многие годы я отмахивался от ответа на этот вопрос. Пока роковая эсэмеска не заставила меня заняться им вплотную. Итак, что мы имеем: семью из четырёх человек и кухню 5.5 кв.м. Трубы — газовая и отопления — сужают и без того не широкий кухонный фронт. Стараемся сделать всё максимально дешёво, из материалов, имеющихся в наличии в крупных сетевых магазинах и... своими руками.

-2

Начинаем, конечно, с главного, с кухонного фронта. Из 210 сантиметров вычитаем 60 на холодильник и порядка 5 на свес подоконника. В сухом остатке имеем 140 сантиметров. Минимальная ширина плиты — 50, посудомоечной машины — 45. Понимаем, что в оставшиеся 45 мы мойку уже не впихнём. И тут нас осеняет: так надо отказаться от четырёхкомфорочной плиты и заменить её на двухкомфорочную варочную панель. Всё равно из-за близкого расположения холодильника мы не пользуемся двумя крайними комфорками. Попутно я выясняю, что существуют духовые шкафы на 45. Ассортимент не велик, но всё же есть. Таким образом у меня нарисовался такой набор: 50 см (мойка) + 45 см (посудомойка) + 45 см (духовой шкаф и плита). Довольный собой я отправляюсь за кухней. Куда? Конечно, в икею. Однако там меня ждёт разочарование: шведы перестали выпускать шкафы шириной 50 см. Понуро я бреду в «1-ый мебельный», и нахожу там устраивающую меня по типоразмерам, фасадам и цене кухню. В цвет её подбираю столешницу в Леруа.

-3
-4

Лихо отказываюсь от услуги сборки и недоумеваю, почему менеджер смотрит на меня с такой жалостью.

Накануне сборки кухни я на отечественный ламинат ругался. Приступив к сборке Русской Кухни я вынужден был забрать свои слова обратно! Всё бледнеет и меркнет перед Русской Кухней! Умом инструкцию по сборке Русской Кухни не понять. Сборщики представляются мне могучими богатырями в краповых беретах. Они собирают кухни без инструкции. В День Сборщика Кухни они мутузят сотрудников Икеи и растаптывают шведский флаг.

На фото: инструкция по сборке мебельного гарнитура, подробнейшее руководство по сборке ящика и, собственно, ящик, выдерживающий прямое попадание атомной бомбы и обладающий инновационным креплением фасада.
На фото: инструкция по сборке мебельного гарнитура, подробнейшее руководство по сборке ящика и, собственно, ящик, выдерживающий прямое попадание атомной бомбы и обладающий инновационным креплением фасада.

Ну, вот, кухня собрана и установлена. Осталось заделать стык между столешницей и фартуком. Не знаю, я ли изобретатель данного решения, но дошёл я до него сам. Я очень не люблю грубые кухонные плинтусы, продающиеся повсеместно. Поэтому швы я заделываю алюминиевым матовым уголком. Получается элегантно и лаконично.

-6

Так, крупную бытовую технику, кажется, впихнули. Куда микроволновку будем ставить? Посмотрели налево, посмотрели направо — только подоконник остался, больше некуда. Беда в том, что глубины подоконника не хватает. Отправляемся в магазин, покупаем лист сантиметровой фанеры и сосновые бруски. Из картона делаем трафарет будущей накладки на подоконник. Переводим на фанеру, вырезаем. И обнаруживаем, что лист не влезает в щель между бетонным подоконником и створкой окна. Берем нож и аккуратно снимаем со створки щепку за щепкой. Бруском придаём торцу нового подоконника толщину, красим, прикручиваем на отведённое ему место и обклеиваем торец кромочным пластиком для столешниц. Вуаля.

-7
-8

Из обрезков столешницы делаем полку, на которой размещается кофемашина и запас капсул.

-9

Все свободные участки стен завешиваем крючками и штангами.

-10

Предвижу вопрос: «Почему же ты не заложил окно? Туда ведь можно было навесить ещё шкафов!» Этот вариант я не рассматривал в принципе. Наши и без того крошечные пространства нуждаются в «воздухе». Окна расширяют их, делают интереснее и разнообразнее, насышая дополнительным светом, отражениями. Я не только не заложил окна, я их немного увеличил, общими материалами связав помещения кухни и санузла. Так, плитка из ванной появилась на кухонном фартуке, а наличник с дверей перекочевал на окантовку окна.

-11

Ну, как-то так.

P.S. Прошу прощение за качество фотографий. Фотоаппарат мой сломался на зубодробительных грейдерах Монголии, поэтому вынужден снимать на спичечный коробок.

Вообще-то, это канал о путешествиях, которые постепенно вползали в жизнь мою и жизнь моей семьи и, наконец, захватили её почти полностью. Однако иногда я срываюсь и выдаю что-то о профессии, архитектуре, Москве. Вот самый мой любимый рассказ о путешествии. Вот самый колкий мой рассказ о профессии.

Если вам понравилось, подписывайтесь на канал здесь, в инстаграме,драйве, вконтакте.