Найти в Дзене

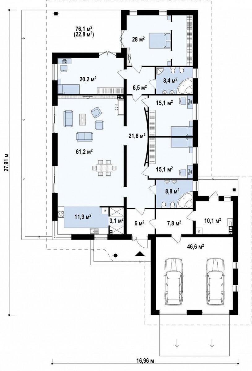
Z82 Комфортабельный одноэтажный дом для продольного участка.

Комфортабельный одноэтажный дом Z82 с большим гаражом прекрасно подойдет для продольного участка благодаря своей удлиненной форме. Проект предусматривает, также, возможность обустройства мансарды. Преимущества проекта Z82: Понравился проект? Пишите комментарии. Посмотреть другие проекты вы можете на сайте.
Подписывайтесь чтобы быть в курсе новинок.

Комфортабельный одноэтажный дом Z82 с большим гаражом прекрасно подойдет для продольного участка благодаря своей удлиненной форме. Проект предусматривает, также, возможность обустройства мансарды.

-2

Преимущества проекта Z82:

  • Комфорт в использовании помещений на одном уровне дает возможность исключить перемещение с этажа на этаж.
  • Большая площадь гостиной дают ощущение роскоши и свободы.
  • Четкое разделение ночной и дневной зоны позволяет скрыть от любопытных взглядов приватную жизнь дома.
  • Открытая кухня зрительно увеличивает пространство дневной зоны, но при желании ее можно сделать полностью закрытой.
  • Планировка дома позволяет расположить его на участке, как с северным, так и с восточным заездом.
  • Несколько выходов на террасы в разных частях дома позволяют более комфортно организовать использовать внешнего пространства, а также дарят ощущения единства с природой.
  • Крытая терраса предоставит возможность отличного летнего отдыха рядом с домом.
  • Открытая терраса способствует лучшему естественному освещению дневной зоны.
  • Большие площади остекления гарантируют прекрасное естественное освещение.
  • Кладовая расположенная рядом с кухней дает возможность быстрого доступа к запасам и кухонной технике.
  • Прямой переход из гаража в дом упрощает перенос вещей из/в машину.
  • Одна из спален обустроена собственной гардеробной.
  • Две ванные комнаты делают ежедневный быт более комфортным.
  • Возможность обустройства мансарды дает возможность увеличить жилую площадь дома, а также вести строительство в два этапа.
-3

Понравился проект? Пишите комментарии.

  • Заказать проект можно ЗДЕСЬ! 
  • Все подробности о данном проекте Вы найдете ЗДЕСЬ! 

Посмотреть другие проекты вы можете на сайте.

Подписывайтесь чтобы быть в курсе новинок.