Добавить в корзинуПозвонить
Найти в Дзене

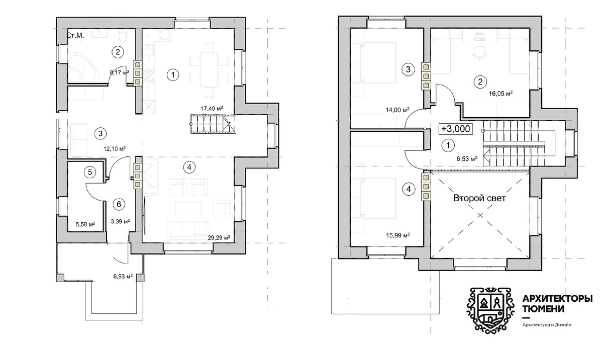
Двухэтажный коттедж 128 кв.м. с тремя спальнями - недорого и комфортно!

Мало места на участке? Большая семья? Ограниченный бюджет? Если на все эти вопросы Вы ответили "Да", значит, этот проект двухэтажного коттеджа идеально Вам подойдет. На первом этаже дома располагается кухня, гостиная, большой санузел с ванной, комната для проживания гостей, гардеробная, котельная. Второй этаж предназначен для сна и отдыха домочадцев - здесь расположены три спальные комнаты. Изюминка коттеджа - второй свет. Он делает внутреннее пространство дома более просторным, светлым и воздушным. Еще больше интересных проектов небольших компактных домов на нашем сайте Архитекторы Тюмени. Подписывайтесь на наш канал! У нас лучшие проекты почти каждый день!

Мало места на участке? Большая семья? Ограниченный бюджет?

Если на все эти вопросы Вы ответили "Да", значит, этот проект двухэтажного коттеджа идеально Вам подойдет.

На первом этаже дома располагается кухня, гостиная, большой санузел с ванной, комната для проживания гостей, гардеробная, котельная.

Второй этаж предназначен для сна и отдыха домочадцев - здесь расположены три спальные комнаты.

Изюминка коттеджа - второй свет. Он делает внутреннее пространство дома более просторным, светлым и воздушным.

-2

Еще больше интересных проектов небольших компактных домов на нашем сайте Архитекторы Тюмени.

Подписывайтесь на наш канал! У нас лучшие проекты почти каждый день!