Добавить в корзинуПозвонить
Найти в Дзене
Karkasgid.ru

Строительство каркасного дома: пошаговая инструкция

Строительство каркасного дома- дело долгосрочное и требующее стратегического продумывания многих вещей наперед, поэтапно. Очень важно соблюдать технологию строительства, которую разработали в Канаде и Скандинавии. Какой материал использовать и какой должен быть пирога перекрытия и стен — зависит от выбранной технологии, но есть четкие правила, которые нужно соблюдать всем. Проект Можете делать проект постепенно, в дни отдыха от стройки. Нарисовали обвязку — построили, нарисовали лаги пола — реализовали и так далее. Правда, это может привести к тому, что вы сделаете на каком-то из этапов что-то непредусмотренное заранее, но если выхода нет — то делайте так. Решите вопрос с этажностью. Два этажа своим трудом строить — очень тяжело. Поэтому я выбрал одноэтажник. Инструмент и крепеж Если задумали построить каркасный дом, то без инструментов будет тяжеловато. Список нужных инструментов уже есть у меня на сайте. Лучше также оптом заранее закупить крепеж. В каркасном доме используются: гвоз
Оглавление

Строительство каркасного дома- дело долгосрочное и требующее стратегического продумывания многих вещей наперед, поэтапно. Очень важно соблюдать технологию строительства, которую разработали в Канаде и Скандинавии. Какой материал использовать и какой должен быть пирога перекрытия и стен — зависит от выбранной технологии, но есть четкие правила, которые нужно соблюдать всем.

Проект


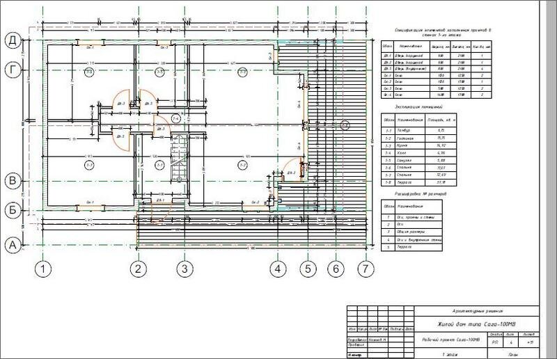
Без проекта лучше каркасник не строить. Самому сделать проект вполне реально (особенно размером 6×6), но долго, если дом большой и со сложной крышей. Даже садовый домик по этой технологии может потребовать проектирования.
Без проекта лучше каркасник не строить. Самому сделать проект вполне реально (особенно размером 6×6), но долго, если дом большой и со сложной крышей. Даже садовый домик по этой технологии может потребовать проектирования.

Можете делать проект постепенно, в дни отдыха от стройки. Нарисовали обвязку — построили, нарисовали лаги пола — реализовали и так далее. Правда, это может привести к тому, что вы сделаете на каком-то из этапов что-то непредусмотренное заранее, но если выхода нет — то делайте так.

Решите вопрос с этажностью. Два этажа своим трудом строить — очень тяжело. Поэтому я выбрал одноэтажник.

Инструмент и крепеж

Если задумали построить каркасный дом, то без инструментов будет тяжеловато. Список нужных инструментов уже есть у меня на сайте.

Лучше также оптом заранее закупить крепеж. В каркасном доме используются: гвозди 3,1-3,5×90 гладкие, а также ершеные гвозди 60мм (для обшивки стен ОСП) и 70 мм (для обшивки пола или крыши плитными материалами).
Самому строить каркасник лучше с помощью гвоздезабивного нейлера, так как гвоздей на среднестатистический каркасник уходит 10-20 тысяч. Поберегите свои руки! К нему нужно закупить шланг, переходники, масло и компрессор. Ну и не забывайте про специальные гвозди, я взял сразу 100 кг и остатков почти не осталось, а я ведь исколотил еще вручную 50 кг обычных гвоздей. Закупите также 5 кг гвоздей 120 мм, иногда пригождаются (но я вам этого не говорил).

Вам также могут понадобиться саморезы по ГКЛ и ГВЛ, да и просто полезно иметь под рукой саморезы, чтобы временно прикрутить какой-то элемент, а потом уже прибить нормально.

Также нужны на каркасной стройке скобы 6-9 мм. Ими  удобно прибивать гидро- и пароизоляционные пленки.

Наверняка вам будут нужны нагели по бетону (для установки окон) или анкерные пластины (для тех же целей). А вот перфорированный крепеж лучше не используйте, он редко пригождается в каркасном доме и только под специальные цели.

Видео об инструментах, вам пригодится:

Фундамент каркасника своими руками.


Последнее время модно делать под каркасник УШП, но собственными силами его могут сделать далеко не все, хотя это тоже реально. Я себе сделал ТИСЭ и обратившимся ко мне за консультацией людям тоже рекомендую свайные фундаменты, они более универсальны и просты для самостоятельной реализации.
Последнее время модно делать под каркасник УШП, но собственными силами его могут сделать далеко не все, хотя это тоже реально. Я себе сделал ТИСЭ и обратившимся ко мне за консультацией людям тоже рекомендую свайные фундаменты, они более универсальны и просты для самостоятельной реализации.

Буронабивной свайный фундамент — лучше делать самому, винтовой лучше заказывать с монтажом (только избегайте свай, сваренных кустарным способом и покрашенных непонятно чем, их срок службы будет в разы меньше настоящих винтовых свай, лучше уж хорошие сваи, но самостоятельной закрутки).

Поверх свай нужна обязательна деревянная обвязка (либо бетонный ростверк, что монолитнее, но тяжелее и гораздо дольше)

Балки пола своими руками


После того как у нас есть опора (деревянная обвязка), можно прибивать к ней лаги (в случае с бетонным ростверком нужно сначала привернуть к нему деревянную доску плашмя как на фото выше).
После того как у нас есть опора (деревянная обвязка), можно прибивать к ней лаги (в случае с бетонным ростверком нужно сначала привернуть к нему деревянную доску плашмя как на фото выше).

Лаги (или балки пола) обычно делают из доски 200×50 (195×45) с шагом 400-600 мм. Подробнее читайте ниже по ссылкам. Важно прибить их и к промежуточным опорам и к обвязке лаг (это такая же лага, только поперек других по периметру здания)

Кстати, потолки делают по такой же технологии с помощью таки же лаг, а потом снизу подшивают гипсокартоном или вагонкой.

Про лаги я уже подробно расписал в других текстах, ищите.

Если вы строите по технологии «платформа», то перед стенами на лаги обязательно нужно положить черный пол — обычно это фанера (ФК 1525×1525 или ФСФ 2440×1220) или ОСП-3 (2500×1250). Фанера ФК используется только в случае неклассической платформы, когда черный пол делают уже под крышей, так как она не очень влагостойкая.
Про лаги я уже подробно расписал в других текстах, ищите. Если вы строите по технологии «платформа», то перед стенами на лаги обязательно нужно положить черный пол — обычно это фанера (ФК 1525×1525 или ФСФ 2440×1220) или ОСП-3 (2500×1250). Фанера ФК используется только в случае неклассической платформы, когда черный пол делают уже под крышей, так как она не очень влагостойкая.

Технология платформа в каркасном доме особенно популярна и не зря. По ней строить гораздо удобнее, так как стены потом можно собирать на ровном полу.

Дополнительная информация и инструкции по черному полу:

Cтойки, обвязки (стены)


По «платформе» каркасные стены собираются на черном полу и поднимаются уже готовыми. Это позволяется собирать стены очень быстро. Помните — в каркасном доме не используется брус. Ни в стенах, ни в полу. Брус — это мостик холода, который очень хорошо «крутит».
По «платформе» каркасные стены собираются на черном полу и поднимаются уже готовыми. Это позволяется собирать стены очень быстро. Помните — в каркасном доме не используется брус. Ни в стенах, ни в полу. Брус — это мостик холода, который очень хорошо «крутит».

Вот на этой видео дом строится по платформе:

Есть также система «баллун», при которой мы собираем стены постоечно- я делал так, в некотором смысле это даже удобнее, но все-таки намного медленнее, я бы эту систему не советовал.

Проемы в канадском и финском каркасе делаются по-разному. А есть еще и норвежский, он представляет собой нечто среднее. В любом случае, любой из этих домов не щитовой, как его обзывают.

Сейчас популярна финская технология каркасного домостроения, когда в стене во всю длину врезается ригель, а стойки проемов не сдваиваются.

Крыша и стропила. Реально ли самому?

-7

Монтаж крыши каркасного дома — это очень ответственное мероприятие. Стропила (на фото) крыши можно делать как до, так и после обшивки стены. Я делал сначала обшивку, но часто делают стропила до обшивки (особенно финны, у которых на крышу очень быстро ставятся фермы с завода)

Вот этот этап я делегировал, сам не смог его осилить, очень тяжелые доски для стропил, надо затаскивать на самый верх и делать все очень точно.

Обшивка стен


Прежде, чем обшивать стены, нужно проверить их уклон по вертикали. Стены лучше зашивать полностью, а потом вырезать в обшивке проемы, так крепче.
Прежде, чем обшивать стены, нужно проверить их уклон по вертикали. Стены лучше зашивать полностью, а потом вырезать в обшивке проемы, так крепче.

Обычно стены обшивают ОСП, но эта плита мне не нравится, она не выпускает пар.

Выбор и монтаж кровельного покрытия

<
Теперь самое время покрыть крышу. Подбираем материал, потом выбираем правильный пирог кровли (зависит от материала и помещения — теплое оно или нет). Не забывайте, что часто нужно заранее спроектировать вентиляцию, чтобы заложить проходки для вентиляционных труб до закрытия крыши той же гибкой черепицей (с металлом все это можно сделать потом).

Затягиваем стены гидроветрозащитной мембраной


Перед установкой окон лучше зашить стены снаружи гидроветрозащитной пленкой. Заодно и ОСП защитим от влаги.
Перед установкой окон лучше зашить стены снаружи гидроветрозащитной пленкой. Заодно и ОСП защитим от влаги.

Установку окон лучше делать до фасадных материалов и утепления. Чтобы потом не было проблем с оформлением откосов и намоканием утеплителя. Двери и окна можно брать как с монтажом (дорого, но дают гарантию), либо устанавливать самому (бюджетно, но тяжело). Большие окна от 2 кв.м. лучше ставить на нагели по бетону, небольшие можно ставить на пластины. Не забывайте про профессиональную пену, пластиковые специальные распорки, а также использование пленок (для образования замкнутого контура паро- и гидроизоляции.

Фасад каркасного дома


Чем раньше мы сделаем фасад, тем быстрее наши конструкции будут защищены от влаги, а пленка от солнечных лучей (от которых она теряет постепенно свои свойства).
Чем раньше мы сделаем фасад, тем быстрее наши конструкции будут защищены от влаги, а пленка от солнечных лучей (от которых она теряет постепенно свои свойства).

Почти все фасады в правильном деревянному доме делаются с вентиляционным зазором, так что не забывайте купить сухую обрешетку (покупай 100×25 и разрезайте вдоль, а также 50×50 — в случае варианта с внешним утеплением до вент-зазора).

Коммуникации


До утепления лучше провести основные коммуникации в доме: канализацию и водоснабжение. С электрикой и отоплением можно повременить, так как их делают или открыто или скрыто, но в обрешетках (после основного контура утепления и пароизоляции).
До утепления лучше провести основные коммуникации в доме: канализацию и водоснабжение. С электрикой и отоплением можно повременить, так как их делают или открыто или скрыто, но в обрешетках (после основного контура утепления и пароизоляции).

Санузлы нашего каркасно-щитового домика — отдельная тема:

  • полы санузла должны быть хорошо гидроизолированы;
  • потолок должен быть пароизолирован;
  • стены должны быть пароизолированы.

Утепление деревянного дома.


Утепляют каркасники обычно минеральной ватой, но все популярнее становится эковата. Себе тоже  утеплил дом эковатой, у нее есть много преимуществ: цена, отсутствие щелей в утеплении, скорость утепления, экологичность (по сравнению с минеральной ватой), отсутствие к четкому шагу конструктивных элементов (можно делать шаг лаг хоть 300 мм, тоже самое и со стойками, можно их смело поставить через 600 мм).
Утепляют каркасники обычно минеральной ватой, но все популярнее становится эковата. Себе тоже  утеплил дом эковатой, у нее есть много преимуществ: цена, отсутствие щелей в утеплении, скорость утепления, экологичность (по сравнению с минеральной ватой), отсутствие к четкому шагу конструктивных элементов (можно делать шаг лаг хоть 300 мм, тоже самое и со стойками, можно их смело поставить через 600 мм).

Пароизоляция в каркаснике.


После утепления, но перед отделкой или дополнительным утеплением внутри затянуть все стены герметичным замкнутым контуром пароизоляции. Лучше всего для этого подходит полиэтиленовая пленка 200 микрон толщиной и специальный бутилкаучуковый скотч.
После утепления, но перед отделкой или дополнительным утеплением внутри затянуть все стены герметичным замкнутым контуром пароизоляции. Лучше всего для этого подходит полиэтиленовая пленка 200 микрон толщиной и специальный бутилкаучуковый скотч.

Электрика и отопление


Теперь самое время подключать электричество со столба к вашему электрическому щитку (лучше его спроектировать и собрать заранее, а до этого получить разрешение на подключение конкретного количества КВат).
Теперь самое время подключать электричество со столба к вашему электрическому щитку (лучше его спроектировать и собрать заранее, а до этого получить разрешение на подключение конкретного количества КВат).

После того как дом утеплен, но до этапа отделки — пора также заняться отоплением. Начинаем с выбора топлива отопления (дрова, газ, электрика, бензин), котла, а потом и материала для труб отопления. Последнее время все чаще в каркасный дом выбирают теплые полы вместо радиаторов отопления.

Канадский деревянный дом — очень теплый, его нужно один раз хорошо утеплить, а потом можно отапливать даже электричеством. Конечно, траты на электрическое отопление будут в 3 раза дороже, чем на газовое, но все равно меньше, чем вы платите в квартире.