Найти в Дзене
Заметки дизайнера Dia

Альтернатива двухъярусной кровати: идея расстановки мебели в детской

Двухъярусная кровать — не всегда выход из ситуации, когда у Вас двое детей и одна комната для них. В Студию DIA поступил вопрос от Заказчиков, каким образом расставить мебель в детской комнате, если от двухъярусной кровати было решено отказаться.  На изначальном планировочном решении дизайнер расположила двухэтажную кровать слева от входа. Теперь же нам предстоит найти место для второй кровати. Пожелания Заказчиков по меблировке были следующими: Площадь комнаты — 14,80 кв.м. Заказчики попросили не ставить вторую кровать справа от входа, поскольку ее угол будет немного мешать удобству прохода. Итак, какое решение мы можем предложить? Смотрите видео-ответ от руководителя Студии DIA Дмитрия Воюнкова или читайте наш сегодняшний материал:) Нестандартная планировка с двухъярусной кроватью Хотим для начала поделиться с Вами тем проектом, который Заказчики захотели сейчас переделать. Сама идея шикарная, да и проект для комнаты 14,80 кв.м. весьма нестандартный.  Изначально идея с двухъярусной
Оглавление

Двухъярусная кровать — не всегда выход из ситуации, когда у Вас двое детей и одна комната для них. В Студию DIA поступил вопрос от Заказчиков, каким образом расставить мебель в детской комнате, если от двухъярусной кровати было решено отказаться. 

На изначальном планировочном решении дизайнер расположила двухэтажную кровать слева от входа. Теперь же нам предстоит найти место для второй кровати.

-2

Пожелания Заказчиков по меблировке были следующими:

  • две кровати;
  • письменный стол с возможностью размещения 2 детей;
  • вместительный шкаф;
  • шведская стенка;
  • телевизор на том же месте, как на изначальном плане, поскольку провода к нему уже подведены;

Площадь комнаты — 14,80 кв.м. Заказчики попросили не ставить вторую кровать справа от входа, поскольку ее угол будет немного мешать удобству прохода. Итак, какое решение мы можем предложить? Смотрите видео-ответ от руководителя Студии DIA Дмитрия Воюнкова или читайте наш сегодняшний материал:)

Нестандартная планировка с двухъярусной кроватью

Хотим для начала поделиться с Вами тем проектом, который Заказчики захотели сейчас переделать. Сама идея шикарная, да и проект для комнаты 14,80 кв.м. весьма нестандартный. 

Изначально идея с двухъярусной кроватью им очень понравилась. На 3D-визуализации ниже можете посмотреть, как должны были выглядеть зона сна и рабочая зона по первоначальному проекту. Над входом и по обе стороны от него предполагалось обустроить оригинальную игровую зону.

-3

Но раз Заказчики решили отказаться от такой задумки, мы должны найти решение, при котором они получат желаемую планировку.

Две кровати в детской: неудачное решение

Заказчица высказала свои сомнения по поводу кровати, стоящей справа от входа. Она считает, что проход с такой расстановкой мебели будет прегражден углом кровати. С этим нельзя не согласиться. Когда находишься в виртуальной модели детской комнаты, заходя в помещение, ты четко ощущаешь, как практически спотыкаешься об эту кровать. 

-4

Поэтому такая расстановка, как на планировочном решении ниже, будет некомфортной и точно нам не подходит.

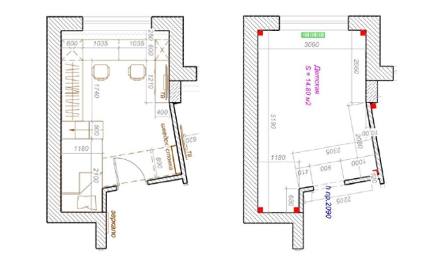
Две кровати в детской: оптимальная расстановка

Соответственно, пришлось искать другую идею. Руководитель Студии DIA Дмитрий Воюнков видит ее следующим образом

-5

Механика расстановки довольно проста. В данной ситуации лучше поставить вдоль одной стены две кровати и организовать между ними шведскую стенку. Вдоль другой стены останется место для обустройства рабочей зоны и установки вместительной системы хранения.

Почему не стоит рассматривать угловой стол? 

  • Он затруднит доступ к окну, чтобы открывать форточку. 
  • Он не позволит организовать дополнительное выдвижное спальное место из кровати, находящейся возле окна. 
  • У нас и так достаточно большая столешница, около двух метров в длину

За таким столом может спокойно сесть два человека. Как только мы ставим угловой вариант, часть функционального пространства, наоборот, уменьшается. Поэтому стоит остановиться на прямом столе.

-6

В угловой части справа от входа отлично поместится большой шкаф для хранения одежды обоих детей. Что касается шведской стенки, то если у Вас нет такой необходимости, от неё можно спокойно отказаться. Но даже со шведской стенкой, установленной в проем 810 мм между кроватями, каждое спальное место имеет длину 2,1 метра. Этого вполне предостаточно для детей.

Конечно, если говорить с эстетической точки зрения, то такое оригинальное решение, как с двухъярусной кроватью, у нас уже не получится реализовать. Планировка с двумя отдельными кроватями имеет более утилитарный характер, но зато соответствует пожеланиям Заказчиков!

Надеемся, что Вы тоже нашли в нашем сегодняшнем материале что-то полезное для себя;)

Источник статьи: Альтернатива двухъярусной кровати: идея расстановки мебели в детской