Найти в Дзене

Пластикоыве окна.На что обратить внимание.

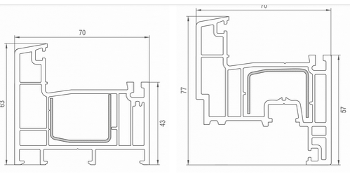
Привет всем. Сегодня расскажу как проверить из какого вида профиля изготовлено ваше окно. На сегодняшний день очень много производится разных профильных систем и мы теряемся в выборе.Но не так все и сложно.Самая бюджетная линейка это системы 58мм и 60мм.В основном это 3х камерная система с сопротивлением теплопередачи 0,67 - 0,69. И отличаются между собой только оттенком белого цвета.Это может быть молочный,сероватый или синеватый оттенок,что никак не отражается на качестве материала.Такую систему я рекомендую устанавливать в те комнаты где есть застекленные балкон или лоджия.Но если ваше окно "смотрит" на улицу то не пожалейте 2-3 т. руб. и закажите окно из систем 70мм.И здесь вам предложат много вариантов- 3х,4х,5ти или даже 6ти камерную систему с одно-,двух-,а возможно и трехкамерным стеклопакетом ( про ст пакеты напишу отдельно )Что же выбрать ? Я всем друзьям и знакомым рекомендую 4х или 5ти-камерную систему со стеклопакетом 32мм (двух-камерный).Почему? 1. Сопротивление теплопере

Привет всем. Сегодня расскажу как проверить из какого вида профиля изготовлено ваше окно. На сегодняшний день очень много производится разных профильных систем и мы теряемся в выборе.Но не так все и сложно.Самая бюджетная линейка это системы 58мм и 60мм.В основном это 3х камерная система с сопротивлением теплопередачи 0,67 - 0,69. И отличаются между собой только оттенком белого цвета.Это может быть молочный,сероватый или синеватый оттенок,что никак не отражается на качестве материала.Такую систему я рекомендую устанавливать в те комнаты где есть застекленные балкон или лоджия.Но если ваше окно "смотрит" на улицу то не пожалейте 2-3 т. руб. и закажите окно из систем 70мм.И здесь вам предложат много вариантов- 3х,4х,5ти или даже 6ти камерную систему с одно-,двух-,а возможно и трехкамерным стеклопакетом ( про ст пакеты напишу отдельно )Что же выбрать ? Я всем друзьям и знакомым рекомендую 4х или 5ти-камерную систему со стеклопакетом 32мм (двух-камерный).Почему?

1. Сопротивление теплопередаче - 0,8-0,81

2. Высокая звукоизоляция

3. Высокая прочность

В офисах продаж всегда есть образцы и их можно внимательно рассмотреть-толщину передних стенок ( это показатель класса профиля

количество камер

-2

и варианты стеклопакета

-3

пример - однокамерный.

Откройте створку и на внутренней поверхности рамы ( коробки ) должена быть цифровая подпись.

-4

или компьютерная надпись

" Название системы" 1.070.4 ( М ) -это значит

1 - номер в каталоге

0.70 - система 70мм

4 -количество камер

и что немаловажно ( М ) - морозостойкий.

В общем теперь мы знаем на что обратить внимание при выборе профиля.В следующий раз расскажу про армирование и стеклопакеты.Всем хорошего дня.