Добавить в корзинуПозвонить
Найти в Дзене
Где нам жить?

Обзор планировок или как меня разочаровал ЖК Баухаус Спб

Сегодня рассмотрю три планировки от нашумевшего Баухауса. Название комплекса, как мне кажется, обязывает, посмотрим, на сколько комфортным окажется для проживания. Название "Баухаус" изначально принадлежит очень крутой немецкой школе прикладного искусства, дизайна и архитектуры. В этой школе работал Иттен и Кандинский, немало вложил в ее развитие Ле Корбюзье. Это было одно из самых творческих пространств, которые только знает история! Если вас эта тема заинтересует, вы сможете найти много прекрасных лекций об этом замечательном месте, думаю, не стоит мне их здесь пересказывать. Я дала небольшую справку, что вы поняли, почему я сказала, что "название обязывает". У Баухауса я взяла три из четырех представленных планировок. Честно говоря, я вообще перехотела делать на него обзор, после того, как увидела их планировки! Но потом передумала по двум причинам: Итак, первая планировка: Первое, что мне очень не понравилось, это то, что не предусмотрено комфортного места для встраиваемого шакафа

Сегодня рассмотрю три планировки от нашумевшего Баухауса.

Название комплекса, как мне кажется, обязывает, посмотрим, на сколько комфортным окажется для проживания.

Название "Баухаус" изначально принадлежит очень крутой немецкой школе прикладного искусства, дизайна и архитектуры.

В этой школе работал Иттен и Кандинский, немало вложил в ее развитие Ле Корбюзье.

Это было одно из самых творческих пространств, которые только знает история!

Если вас эта тема заинтересует, вы сможете найти много прекрасных лекций об этом замечательном месте, думаю, не стоит мне их здесь пересказывать.

Я дала небольшую справку, что вы поняли, почему я сказала, что "название обязывает".

У Баухауса я взяла три из четырех представленных планировок.

Честно говоря, я вообще перехотела делать на него обзор, после того, как увидела их планировки!

Но потом передумала по двум причинам:

  1. может эти планировочные решения кому-то помогут.
  2. когда видно план с мебелью, гораздо лучше видно качество предлагаемых квартир.

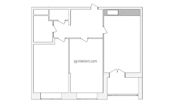
Итак, первая планировка:

-2

Первое, что мне очень не понравилось, это то, что не предусмотрено комфортного места для встраиваемого шакафа в прихожей.

Смотрите ниже планировку с мебелью. На мой взгляд, этот куценький шкафчик просто издевательство, при этой огромной прихожей, согласитесь?

Мне очень не нравятся узкие длинные комнаты! По планам застройщика, вдоль них еще должны ставиться шкафы, что превращает их в кишки, на мой взгляд.

Поэтому, я взяла в руки напильник:

-3

Сделала вход в детскую из гостиной, что позволило создать нишу для встраиваемого шкафа.

Сделала нишу для шкафа в спальне.

Стало значительно лучше!

Потом подумала и решила, что в детской такой огромный шкаф не нужен, да и в спальни тоже и добавила дополнительный шкаф в прихожей:

-4

Видно разницу?

Теперь, мне кажется, квартира стала гораздо комфортнее.

Теперь глянем вторую:

-5

Тут абсолютно та же боль! Шкафчик в прихожей крохотный.

Диванная зона на проходе.

Достаточно мало место для кухни.

Сделать тут практически ничего нельзя, потому я только добавила места для ниши шкафа в детской, отгородила перегородкой холодильник от зоны отдыха и сделала нишу под телевизор.

Экспозиция из углов в прихожей может исправиться только какими-нибудь полочками встраиваемыми, но зачем они там, мне неведомо! :(

Очень грустно смотреть на такое отношение к будущим жильцам от застройщика.

-6

Но у нас есть еще одна планировка, посмотрим ее:

-7

Ох, опять эта ужасно неудобная прихожая!

Даже напильник тут приложить некуда, потому что несущие конструкции.

Я даже особо комментировать не буду, скажу только, что очень не понравилась спальня, в которой к кровати можно подойти только с одной стороны. Так себе решение. Ну или ставить кровать уже, тоже не хочется!

Смотрите, что получилось:

-8

А ведь стоимость квартир не копеечная! Про громкое название я вообще молчу! Пока что это худшие планировки в новостройках, которые я видела.

Ни одна планировка не достойна быть куплена, так что двигаемся искать дальше.

А пока вы можете посмотреть несколько прошлых статей, там интереснее:

Обзор квартир в ЖК "Полис на Неве"

Обзор квартир в ЖК "Полис на Неве" часть 1

Обзор квартир в ЖК "Полис на Неве" часть 2

Мне будет очень приятно, если вы поставите лайк моим стараниям, а еще приятнее будет, если вы подпишитесь на обновления :)