Найти в Дзене
Polimer group

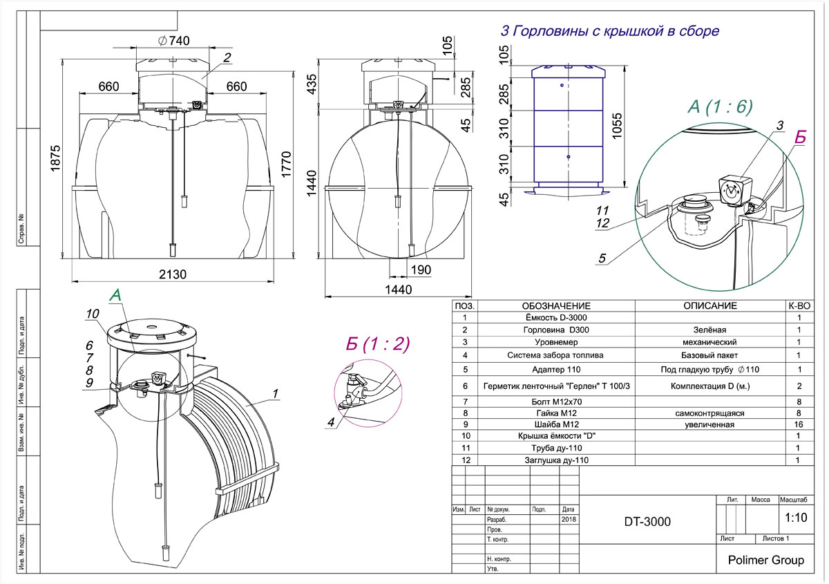
Подземные баки для дизтоплива и нефтепродуктов

Особенности подземных топливных баков

Благодаря качественным свойствам пластика, резервуары, изготовленные из него, абсолютно устойчивы к негативному воздействию факторов окружающей среды и коррозии.

Низкая степень теплопроводности баков позволяет обойтись без применения теплоизоляционных материалов (за исключением самых холодных регионов) для создания рабочих условий при отрицательных температурах.

Поскольку такие резервуары рассчитаны на хранение продуктов в жидком состоянии, то для их хранения и защиты от замерзания при эксплуатации в особенно холодных регионах потребуется доукомплектация бочек теплоизоляционными материалами.

Обращаем ваше внимание на то, что все горизонтальные баки для хранения топлива на АЗС оснащены ребрами жесткости для повышения степени их прочности и надежности.

-2
-3

Если вы заинтересованы в приобретении топливных резервуаров подземного исполнения, то обратите внимание на их основные преимущественные характеристики, а именно: - мобильность и компактность размеров, благодаря чему существенно экономится свободное пространство; - устойчивость к перепадам температурного режима и агрессивным средам; - минимизацию потерь жидкого содержимого по причине испарения; - возможность эксплуатации в сложных климатических условиях.

Если вышеописанные характеристики вас привлекли, но вопрос стоимости остался нераскрытым, то спешим вас уверить – наша продукция доступна каждому. Мы разработали лояльную ценовую политику, ориентированную на различные слои населения и готовы на практике доказать, что качественная топливная тара может стоить недорого.

Представители нашей компании «Полимер-Групп» с удовольствием ответят на все возникшие у вас вопросы и проконсультируют по поводу того или иного типа емкости. Более того, мы приложим максимум усилий, чтобы вы остались довольны свое покупкой и оценили ее не как напрасную трату времени, сил и денег, а как одно из самых выгодных приобретений.