Найти в Дзене
ПЛАНОБЗОР

Обзор одноэтажного дома площадью 241,9 м2 (№61).

Здравствуйте, уважаемые читатели, подписчики и гости канала. Сегодня на обзоре проект одноэтажного частного дома, разработанный СК "Домовой". Как уверяют авторы канала "Строительство домов и бизнес", на котором представлен проект, дом обладает "Самой удобной планировкой", на что указывают прямо в заголовке статьи на своем канале в Яндекс Дзен. Также в статье нас уверяют что дом в проекте "...соответствует высоким требованиям, предъявляемым к комфорт-классу недвижимости." (цитата из статьи с проектом дома). Что ж, люблю заглядывать в статьи с громкими заголовками, в надежде, что он будет совпадать с содержимым. Но сперва немного о доме. Дом одноэтажный с двускатной крышей. Дом достаточно большой, его площадь составляет 241,9 м2, с учетом террасы. Внешний вид. Внешне дом выглядит привлекательно. Хорошо подобрана цветовая гамма отделочных материалов. Также привлекательности добавляют большие окна, благодаря которым в доме должно быть светло. К правому фасаду дома пристроен гараж на один
Оглавление

Здравствуйте, уважаемые читатели, подписчики и гости канала.

Сегодня на обзоре проект одноэтажного частного дома, разработанный СК "Домовой". Как уверяют авторы канала "Строительство домов и бизнес", на котором представлен проект, дом обладает "Самой удобной планировкой", на что указывают прямо в заголовке статьи на своем канале в Яндекс Дзен. Также в статье нас уверяют что дом в проекте "...соответствует высоким требованиям, предъявляемым к комфорт-классу недвижимости." (цитата из статьи с проектом дома). Что ж, люблю заглядывать в статьи с громкими заголовками, в надежде, что он будет совпадать с содержимым.

Но сперва немного о доме. Дом одноэтажный с двускатной крышей. Дом достаточно большой, его площадь составляет 241,9 м2, с учетом террасы.

Внешний вид.

Внешне дом выглядит привлекательно. Хорошо подобрана цветовая гамма отделочных материалов. Также привлекательности добавляют большие окна, благодаря которым в доме должно быть светло. К правому фасаду дома пристроен гараж на один автомобиль. Также с правого фасада выполняется и вход в дом. Благодаря двускатной крыше вход удалось разместить так, что снег, проскользнувший через снегозадержатель, не попадет вам на голову... Казалось бы, если бы не скат крыши гаража. Так что после снегопадов близко к гаражу, при проходе ко входу, лучше не подходить. Крыльцо главного входа утоплено, благодаря чему крышей крыльцу служит крыша дома. С левого фасада к дому пристроена большая терраса (площадью 53,43 м2), находящаяся под общей с домом крышей.

Планировка.

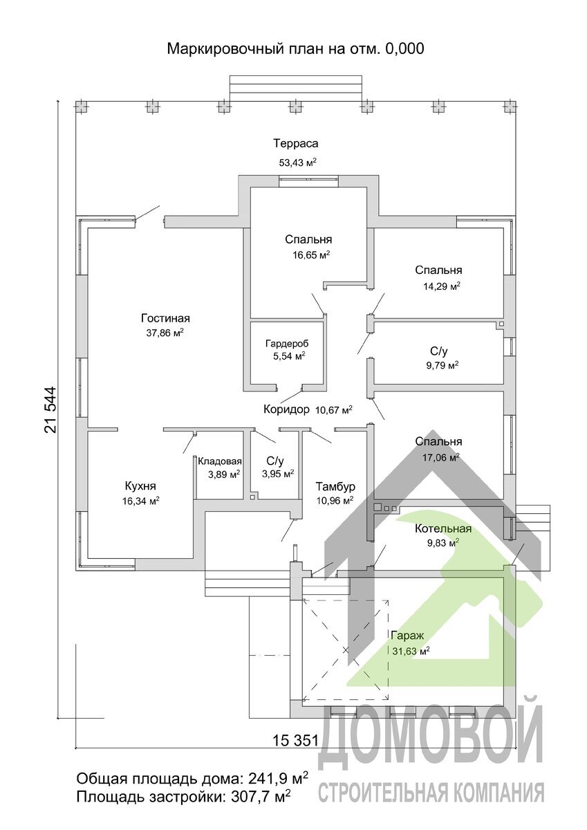
План этажа. Источник изображения: Канал "Строительство домов и бизнес" (zen.yandex.ru/id/5d319d8392414d00ad85d968), Яндекс Дзен.
План этажа. Источник изображения: Канал "Строительство домов и бизнес" (zen.yandex.ru/id/5d319d8392414d00ad85d968), Яндекс Дзен.

Как я уже писал выше площадь дома составляет 241,9 м2 с учетом площадей гаража и террасы, что делает дом достаточно большим. Но убрав площади террасы и гаража получаем 156,83 м2 чистой площади дома.

Вход в дом выполняется через крыльцо главного входа, либо через пристроенный гараж. Войдя в дом мы оказываемся в просторном тамбуре площадью 10,96 м2. Тамбур также выполняет роль прихожей, в которой можно удобно разуться и раздеться. Здесь можно установить объемный шкаф под верхнюю одежду, еще и достаточно места останется для свободного прохода. Из тамбура предусмотрены входы в гараж или котельную, что является удобным и правильным решением, так все запахи из гаража, и пыль из котельной (в случае установки твердотопливного котла) не попадут в дом. Но все же я бы немного изменил тамбур. Было бы разумнее разделить его на две части - непосредственно тамбур, площадью около 4-х м2 и отдельная прихожая, площадью около 6-ти м2. Все-таки нагреть 4 м2 после открытия дверей гораздо проще, чем 11 м2, да и основная грязь будет оставаться в тамбуре. Стену между коридором и новой прихожей можно не делать.

Ну и раз уж выше я упомянул о гараже и котельной, то немного слов о них. Гараж имеет площадь 31,63 м2, чего вполне достаточно для одного автомобиля и хранения всякого рода хлама, спортинвентаря, мототехники, нескольких комплектов авторезины. Котельная (теплогенераторная) в доме имеет площадь 9,83 м2. Этого более чем достаточно для любого вида котла. Имеется и отдельный выход на улицу. Не знаю почему, но авторы решили не делать козырек над выходом, который я бы настоятельно рекомендовал предусмотреть.

Пройдя из тамбура в дом мы оказываемся в узком и темном коридоре. Его площадь составляет 10,67 м2. Электроосвещение, во время вашего присутствия в доме, будет здесь работать постоянно. Единственная альтернатива электроосвещению - установка дверей в спальни со стеклом. Расширить же коридор можно за счет гардероба и прихожей, образованной от разделения тамбура. Коридор разделяет друг от друга активную и тихую зоны, и это хорошо. А вот расположение входа из тамбура напротив "хозяйской" зоны это конечно минус, как и проход к тамбуру мимо одной из спален. Гардероб, расположенный в коридоре большой, его площадь составляет 5,54 м2. Здесь можно хранить сезонную одежду и прочие ненужные в повседневной жизни вещи. Также из коридора можно попасть во второстепенный (гостевой) санузел, площадью 3,95 м2. Площадь санузла достаточная для установки унитаза, раковины, а также душевой кабинки или ванны, при этом он не будет тесным.

Гостиная в доме большая, её площадь составляет 37,86 м2. Она имеет хорошую геометрию и её можно удобно зонировать по своему усмотрению. Места хватит и для зоны столовой, и для зоны просмотра ТВ, и для тихой зоны с журнальными столиком или камином. Освещается гостиная большими панорамными окнами - недостатка в естественном освещении быть не должно. Из гостиной можно выйти на большую террасу.

Кухня в доме понравится и любителям изолированной кухни и любителям совмещенной. Полная изоляция кухни решается установкой двери в проем между гостиной и кухней. Площадь кухни составляет приличные 16,34 м2. Здесь же можно организовать и зону столовой - места хватит. Рядом с кухней имеется и хорошая кладовая площадью 3,89 м2.

Спальных комнат в доме три, все имеют хорошие удобные формы и площади - 16,65 м2, 14,29 м2, 17,06 м2. В каждой спальне предусмотрено по большому панорамному окну, для хорошего естественного освещения. Единственная большая претензия к спальным комнатам - местонахождение спальни с площадью 17,06 м2. Эта спальня расположена через стенку от котельной, мимо неё будут постоянно ходить другие жители дома и гости. Эту спальню нельзя назвать комфортной и удобной, от чего нельзя назвать удобным и весь дом в целом. И если проходящие мимо комнаты не доставят больших проблем, то котельная за стеной неприятное соседство...

Дело в том, что водяное отопление любого типа с принудительной циркуляцией теплоносителя, снабжается циркуляционным насосом, работа которого всегда сопровождается монотонным гулом, и порой достаточно громким. На своем примере знаю. В гостевой комнате в ночной период времени отчетливо слышен гул из котельной, и это при том, что между комнатой и котельной находится тамбур шириной 2 метра и 2 перегородки по 10 см с шумоизоляцией. А здесь между спальней и котельной лишь одна перегородка. Добавим к работе насоса отопления работу рециркуляционного насоса горячего водоснабжения, работу насоса повышения давления в системе водоснабжения дома, гул от сгорающего в котле топлива и вы получите незабываемый "концерт" за стеной спальни, который выдержит не каждая психика.

Устранить проблему этой спальни можно только поменяв её местами с основным санузлом (площадь которого составляет 9,79 м2). Таким образом между спальней и котельной будет еще одно помещение, заглушающее гул работы насосов. Но тут возникает другая проблема - это можно сделать только отделив прихожую от тамбура и сделав вход в санузел через нее, но тогда "хозяйский" санузел перестанет ассоциироваться с "хозяйским". Но при выборе между позиционированием санузла и психическим здоровьем я думаю выбор очевиден.

И немного о "хозяйском" санузле. Он достаточно большой, его площадь 9,79 м2. Здесь же можно организовать и постирочную - места хватит. К минусам санузла, в том виде, в котором он представлен в проекте, можно отнести его расположение. Он находится в отдалении от других помещений-водопотребителей - второго санузла и кухни, а это значит что нас ждет увеличение стоимости прокладки инженерных коммуникаций.

Итог.

Дом вполне хорошо выглядит снаружи, и даже внутри не так уж и плох, но до "самой удобной планировки" и "соответствию высоким требованиям, предъявляемым к комфорт-классу недвижимости" он явно не дотягивает. Всему виной непродуманные узкие и темные коридоры и расположение одной из спален рядом с котельной. Также для "максимального комфорта и настоящего уюта" неплохо было бы убрать вид из тамбура на "хозяйскую" зону. Этот проект слегка бы доработать и дом вполне мог бы соответствовать тем эпитетам, которые ему приписывают.

Также хочется отметить что строительство такого дома, благодаря угловым окнам, возможно не из любого материала, ведь для придания дому жесткости в углах необходимы будут монолитные железобетонные балки, связанные с железобетонным армопоясом.

Спасибо за прочтение.

P.S. Мнение автора статьи может не совпадать с мнением читателей и авторов проекта.

По настоятельной просьбе автора канала со статьей о доме оставляю ссылку на статью о проекте дома ЗДЕСЬ.

Подписывайтесь на канал, делитесь ссылкой на статьи с друзьями.

Есть вопросы по Вашим проектам, хотите исправить или не уверены в их жизнеспособности? Пишите, отвечу, помогу, исправлю.

Обзоры на эти и другие проекты частных домов можно почитать на канале.