Добавить в корзинуПозвонить
Найти в Дзене
Вячеслав Байков

ОДНУШКА или КВАРТИРА СТУДИЯ что лучше купить

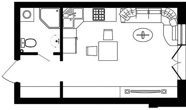
Для начала давайте внесем ясность в то, что такое квартира студия. В начале задумка квартиры студии была такова, что жилое пространство, прихожия и кухня составляют единое целое. Мы все привыкли видеть квартиру-студию с небольшим помещением с изолированной комнатой под санузел. Сейчас же стали делать студии и с перегородкой для прихожии. К сожелению в таких студиях нет дополнительных окон как в квартире-однушке, у вас есть одно окно, небольшой зал ну и небольшое выгараженное помещение под туалет с ванной, но чаще всего места там хватает под кабинку с душем. Соответственно цена на такие площади заметно отличается от обыкновенной однушки. Что касается площади, то средняя площадь составляет 28 метров, хотя можно встретить умельцев которые умудряются вытянуть по максимум, деля такие площади на две части, и сдавать. Средняя площадь однушки 35 метров. Если сопоставлять цены на студии и однушки, то разумеется студия всегда будет стоить дешевле. Конечно же мы привыкли, чтоб кухня была отдел

Для начала давайте внесем ясность в то, что такое квартира студия.

В начале задумка квартиры студии была такова, что жилое пространство, прихожия и кухня составляют единое целое. Мы все привыкли видеть квартиру-студию с небольшим помещением с изолированной комнатой под санузел. Сейчас же стали делать студии и с перегородкой для прихожии.

-2

К сожелению в таких студиях нет дополнительных окон как в квартире-однушке, у вас есть одно окно, небольшой зал ну и небольшое выгараженное помещение под туалет с ванной, но чаще всего места там хватает под кабинку с душем. Соответственно цена на такие площади заметно отличается от обыкновенной однушки. Что касается площади, то средняя площадь составляет 28 метров, хотя можно встретить умельцев которые умудряются вытянуть по максимум, деля такие площади на две части, и сдавать. Средняя площадь однушки 35 метров. Если сопоставлять цены на студии и однушки, то разумеется студия всегда будет стоить дешевле. Конечно же мы привыкли, чтоб кухня была отделена от комнаты, а вот теперь представьте, что у вас есть 5-6 квадратных метров кухни и вам надо разместит там мебель... По своему опыту скажу, что не просто подобрать кухонные шкафы, полки, малогабаритный стол, стулья и прочее, при этом добиться максимум комфорта.

-3

В студии же на оборот, вы не ограничены в габаритах, и мебель довольно проще подобрать минуя различные привычные нам со времен хрущевок перегородки. Так же можно сделать современный дизайн комнаты с совмещенной кухней. Удивительно, что не имея коридорной системы, привычной нам квартиры, вы в праве сами моделировать дизайн вашей жил.площади. Опять таки же, устроить можно так, что не большая комната, будет смотреться на много просторнее однушки.

Также можно встретить и с квадратной планировкой студии, соответственно площадь там больше, ну и цена соответственно пропорционально (думаю для любителей моделирования интерьера такой вариант понравится больше).

-4

Что касаемо налогов и коммунальных платежей. Естественно в студии эти позиции будут меньше чем у однушки. Так как изначально кадастровая стоимость студии меньше и плюс при расчете коммунальных налоговых платежей берется понятие общая и жилая площади.

Для кого же все таки квартиры-студии строятся.

На первом месте, цена. Когда не хватает средств на полноценную однушку, а кредит брать нету ни какого желания, то конечно же подойдет студия, да и ремонт проще и дешевле в ней делать. Очень удобно покупать такое жилье, если вы еще достаточно молод, семью заводить рано и влазить уж в очень большие долги нет ни какого желания, а своя жилплощадь необходима. Плюс если вы не привязаны к жилищу, проводите много времени на работе. Ну и как конспиративная квартира)

Если постараться совсем уж бюджетно приобрести студию, это можно осуществить на стадии котлована, на крайний момент ее всегда можно будет дороже продать после сдачи.