Добавить в корзинуПозвонить
Найти в Дзене
Любовь Мал

Купили квартиру?

Роль планировочного решения в ремонте. Планировочное решение - это важная основа для дизайн проекта!
Это база, первый этап для всего рабочего проекта.
Без этого плана мы ничего не сможем запланировать.
☑️
Учитывая пожелания заказчика разрабатывается несколько планировочных решений.
В плане учитывается функциональное определение зон, расположение мебели и оборудования, согласно эргономики пространства, с привязкой размеров мебели и проходов между ними в случае тесных пространств.
☑️
Планировочное решение играет огромную роль, когда пространство с открытой планировкой или есть задача изменить пространство новыми перегородками, чтобы более рационально его использовать.
☑️
От этого этапа будет зависеть насколько грамотно работает пространство, а также уровень комфорта хозяев нового жилища. ☑️
Что входит в планировочное решение?
План зонирования с расстановкой мебели
Обычно дизайнер разрабатывает 3-5 вариантов, пока не придём к самому удачному варианту. Спасибо за внимание.
Если

Роль планировочного решения в ремонте.

планировочное решение
планировочное решение

Планировочное решение - это важная основа для дизайн проекта!
Это база, первый этап для всего рабочего проекта.

Без этого плана мы ничего не сможем запланировать.
☑️
Учитывая пожелания заказчика разрабатывается несколько планировочных решений.
В плане учитывается функциональное определение зон, расположение мебели и оборудования, согласно эргономики пространства, с привязкой размеров мебели и проходов между ними в случае тесных пространств.

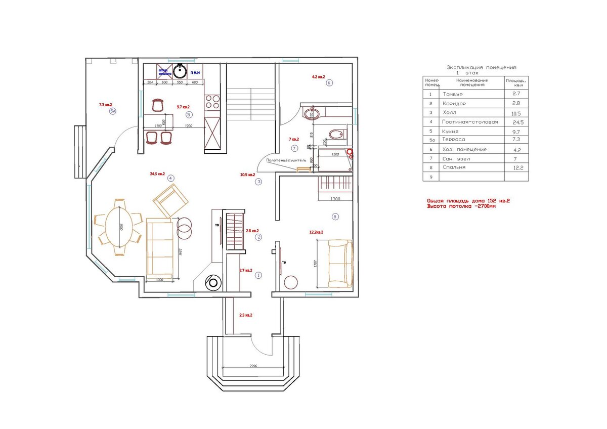
планировочное решение коттеджа 1 этаж
планировочное решение коттеджа 1 этаж

☑️
Планировочное решение играет огромную роль, когда пространство с открытой планировкой или есть задача изменить пространство новыми перегородками, чтобы более рационально его использовать.
☑️
От этого этапа будет зависеть насколько грамотно работает пространство, а также уровень комфорта хозяев нового жилища.

планировочное решение квартиры
планировочное решение квартиры

☑️
Что входит в планировочное решение?
План зонирования с расстановкой мебели
Обычно дизайнер разрабатывает 3-5 вариантов, пока не придём к самому удачному варианту.

-4

Спасибо за внимание.
Если интересуетесь дизайном интерьера, то
подписывайтесь на наши новости.
Больше интересных идей, вы можете прочитать в моем
Дневнике Дизайнера.