Добавить в корзинуПозвонить
Найти в Дзене
Teplodina

Советы проектировщика - размеры помещений в финском частном доме

Умный – с помощью проектирования! ©Мудрость финских архитеторов Если сравнить скандинавские и русские проекты домов, можно заметить разницу в расположении и размерах помещений. Чем она обусловлена? Ведь климатические условия Скандинавского полуострова и России достаточно схожи, особенно в условиях глобального потепления!  Почему лучше строить дом по финскому или шведскому проекту, а не по русскому? Дело в том что скандинавские дома более продуманы, удобнее для проживания, и, как это ни странно, дешевле, чем подавляющее большинство современных российских  проектов домов. Почему это происходит? Дело в том, что частные дома небольшого размера хорошо проектировали в СССР, но те проекты уже устарели, а этому уже не учат в современных архитектурных вузах России - там учат строить многоквартирные высотные дома! Поэтому главный упор в российских проектах делается на внешний дизайн дома с большим количеством углов, выступов, сложной крышей, а внутренние планировки напоминают квартиры — без всяк
Оглавление

Дурак экономит на проектировании!
Умный – с помощью проектирования!

©Мудрость финских архитеторов

Если сравнить скандинавские и русские проекты домов, можно заметить разницу в расположении и размерах помещений. Чем она обусловлена? Ведь климатические условия Скандинавского полуострова и России достаточно схожи, особенно в условиях глобального потепления! 

Почему лучше строить дом по финскому или шведскому проекту, а не по русскому?

Дело в том что скандинавские дома более продуманы, удобнее для проживания, и, как это ни странно, дешевле, чем подавляющее большинство современных российских  проектов домов. Почему это происходит? Дело в том, что частные дома небольшого размера хорошо проектировали в СССР, но те проекты уже устарели, а этому уже не учат в современных архитектурных вузах России - там учат строить многоквартирные высотные дома! Поэтому главный упор в российских проектах делается на внешний дизайн дома с большим количеством углов, выступов, сложной крышей, а внутренние планировки напоминают квартиры — без всякого учёта специфики загородного дома.

Например, отсутствуют террасы, нужные подсобные помещения, сверх необходимости увеличены размеры спален, имеется множество бесполезных коридоров и холлов, шумные помещения находятся рядом со спальнями и так далее. 

Поэтому логичнее обратиться именно к скандинавским проектам, поскольку финские, шведские архитекторы строят частные дома уже сотни лет, они накопили громадный опыт рационального строительства.

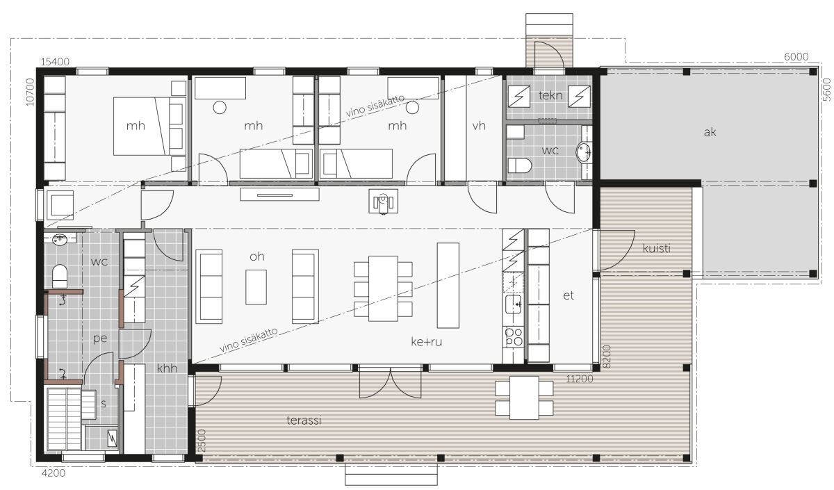
Проект одноэтажного дома от компании Kontio (взят для примера, в образовательных целях)

Вариант планировки финского дома от компании Kontio

-2

Обратите внимание на лаконичность и рациональность планировки дома, элегантность и продуманность его дизайна.

  • С южной стороны дома - панорамное остекление плюс веранда. Что это даёт? Летом, когда солнце стоит высоко, его лучи не попадают в помещения и не нагревают их, так как крыша веранды создаёт тень. Зимой, когда солнце над горизонтом стоит низко, оно освещает комнаты и дополнительно обогревает их, позволяя экономить на отоплении. Разумеется на веранде очень удобно отдыхать летом, пить чай, ужинать на свежем воздухе, наслаждаясь шелестом листьев и запахом цветов.
  • В доме нет ни одного длинного бесполезного коридора - все проходы осуществляются через функциональные помещения. Владелец дома не платит за бесполезные квадратные метры! Перемещаться по дому очень удобно.
  • Навес для машины или гараж отделены от дома непроницаемой стеной - запах бензина никогда не будет досаждать вашим домочадцам. Вместе с тем, до машины легко добраться под крышей веранды в любой дождь, не замочив волос на голове!
  • Вместо ванной есть традиционные финские душевые и сауна. В доме два санузла - один поближе к машине и кухне, другой - к родительской спальне. Никто никому не мешает.
  • Техническое помещение в правом верхнем углу отделено от спален кладовкой - шум не будет мешать спать.
  • Общее помещение гостиной-кухни-столовой удачно разделено на функциональные зоны.
  • Рядом с сауной находится большая домашняя прачечная-сушильная комната. Которая тоже никому не мешает, а в зимнее время служит тамбуром! Вот российские проектировщики обычно считают, что сушить белье удобно над ванной. А мыться тогда где?
  • Справа от кухни находится большое, светлое помещение, которое может быть кабинетом, библиотекой, спортивным уголком или кладовой для продуктов.
  • Почти плоская крыша стоит недорого, зимой на ней лежит сугроб снега, являющийся дополнительным утеплением дома, а сток воды с крыши организован через несколько водосточных труб без уродливых снегозадержателей и внешних водостоков!

Вот так надо проектировать современные загородные дома!

Минимальные и рекомендуемые площади помещений в доме по скандинавским стандартам

-3

Приходите к нам в офис и мы поможем Вам спроектировать дом по финским стандартам!