Добавить в корзинуПозвонить
Найти в Дзене

Интерьер квартиры балерины на Фрунзенской набережной

Архитекторы известного бюро создали интерьер небольшой по площади квартиры, которая раньше принадлежала балерине. По словам авторов проекта, «новые владельцы наследуют артистичность жизненного уклада — в квартире планируется разместить частную коллекцию современного искусства». Главная задача, которую решали архитекторы — создание комфортного быта для новых жильцов. Плюс ко всему, интерьер должен был соответствовать людям, собирающим предметы искусства. Не секрет, что архитектору всегда важно грамотно выстроить пространство, пропорции, объемы и плоскости. Ювелирная проработка архитектурных деталей — вот что было взято за основу в работе над этим проектом. За кажущейся простотой кроются в высшей степени умные и красивые решения. Ведь наполнять дом декором будут уже новые жильцы. О проекте:
Место: Москва, район Фрунзенской набережной
Размер: 90 кв.м.
Авторы проекта: Gikalo Kuptsov Architects, архитекторы Сергей Гикало, Александр Купцов, Антон Федулов
Фото: Илья Иванов В новом объеме р

Архитекторы известного бюро создали интерьер небольшой по площади квартиры, которая раньше принадлежала балерине. По словам авторов проекта, «новые владельцы наследуют артистичность жизненного уклада — в квартире планируется разместить частную коллекцию современного искусства». Главная задача, которую решали архитекторы — создание комфортного быта для новых жильцов. Плюс ко всему, интерьер должен был соответствовать людям, собирающим предметы искусства.

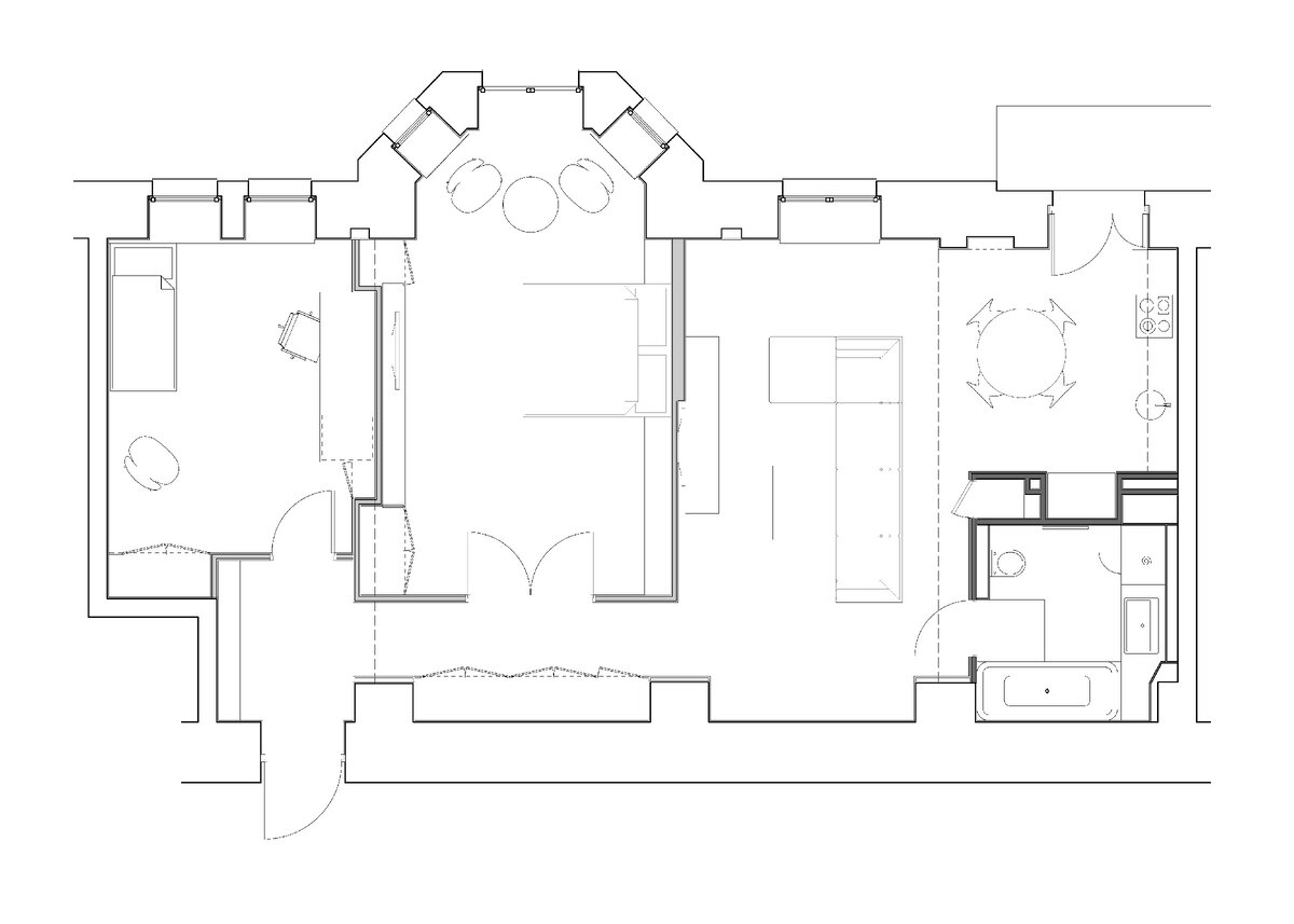
План квартиры после перепланировки
План квартиры после перепланировки

Не секрет, что архитектору всегда важно грамотно выстроить пространство, пропорции, объемы и плоскости. Ювелирная проработка архитектурных деталей — вот что было взято за основу в работе над этим проектом. За кажущейся простотой кроются в высшей степени умные и красивые решения. Ведь наполнять дом декором будут уже новые жильцы.

О проекте:
Место: Москва, район Фрунзенской набережной
Размер: 90 кв.м.
Авторы проекта: Gikalo Kuptsov Architects, архитекторы Сергей Гикало, Александр Купцов, Антон Федулов
Фото: Илья Иванов

Фото гостиной - подвесной светильник: Plis Outdoor, Vibia, «Гармония света»; тумба под ТВ: Airline, Lema; диван: Glow In, Desiree; журнальный стол: Breeze, Swedese, Senab
Фото гостиной - подвесной светильник: Plis Outdoor, Vibia, «Гармония света»; тумба под ТВ: Airline, Lema; диван: Glow In, Desiree; журнальный стол: Breeze, Swedese, Senab

В новом объеме разместились санузел, кладовая и ниша, в которую инсталлировали холодильник. Историческая балка зонирует пространство квартиры, интерьер которой сочетает классические элементы и современные лаконичные формы.

Авторы проекта наполнили дом интересными деталями: сложная система подсветки, модные жалюзи, необычные экраны радиаторов, а также навесные полки в гостиной и крутящиеся кресла в спальне делают квартиру красивой и удобной.

Полки: изготовлены по чертежам архитекторов; светильники направленного света: Y’ON, Modular, «Гармония света»
Полки: изготовлены по чертежам архитекторов; светильники направленного света: Y’ON, Modular, «Гармония света»

Полки, как и всю остальную мебель, выполнили на заказ из древесины лимбы. Это дерево приобрело большую известность благодаря знаменитым гитарам Gibson. Африканская лимба была выбрана для производства гитар не случайно: для них требовалось «чистое» дерево, которое придавало бы инструменту «натуральный» вид. Лимбу при производстве мебели часто тонируют морилкой в орех, в то время как ее естественный оттенок — светло-золотистый. Дерево такого теплого цвета прекрасно вписалось в интерьер этой квартиры — и по цвету, и по структуре древесины.

Полки: изготовлены по чертежам архитекторов; светильники направленного света: Y’ON, Modular, «Гармония света»
Полки: изготовлены по чертежам архитекторов; светильники направленного света: Y’ON, Modular, «Гармония света»

Авторы проекта использовали в отделке натуральные материалы и естественные природные оттенки, характерные для интерьеров в минималистичном стиле. Например, напольное покрытие выполнено из древесины венге темно-коричневого цвета с черными прожилками.

Кухня: на заказ по чертежам архитекторов; обеденный стол: Planet, стулья: Basil, Calligaris
Кухня: на заказ по чертежам архитекторов; обеденный стол: Planet, стулья: Basil, Calligaris

Серо-голубые лаковые фасады кухни дополнили столешницей из кварцевого камня. Фартук выложили мозаикой из травертина.

Фото главной спальни
Фото главной спальни

В спальне и детской прячется одна из самых интересных задумок. По словам архитектора Александра Купцова, это своеобразный «трехмерный тетрис, в котором объемы шкафа хитро положены друг на друга, образуя комбинаторику». Вместо обычной межкомнатной стены, разделяющей спальню и детскую, архитекторы спроектировали зигзагообразную гипсокартонную перегородку толщиной 12 см, вместе с которой изгибается задняя стенка шкафа для одежды в спальне и системы хранения в детской.

Архитекторы распределили пространство «двухкомнатного» шкафа, находящееся с двух сторон перегородки, между двумя системами хранения. Чтобы получить полноценный гардероб для одежды в спальне, перегородка в этом месте делает изгиб и забирает необходимый объем у пространства детской.

Шкаф с нишей в спальне
Шкаф с нишей в спальне

Таким образом авторы проекта решили необходимую задачу — «впихнуть» все, что нужно, в объемы шкафов (для заказчика в первую очередь важна была прагматичность). Нишу выделили с помощью голубого стекла.

Фото эркера в спальне
Фото эркера в спальне

Когда во время ремонта перебирали перекрытия, обнаружили многослойную историческую конструкцию. На железобетонных балках лежат кессонированные плиты, подшитые снизу подвесным потолком из оштукатуренных досок. Между этим потолком и железобетонной плитой образовалось воздушное пространство — получился деревянный фальшпотолок на десять сантиметров ниже перекрытия. Архитекторы сохранили этот принцип, но в новых потолках использовали гипсокартон. Красиво оформленное окно в эркере с прорезью для штор — результат сохранения фальшпотолков.

Для оформления окон авторы проекта выбрали дорогие качественные ткани — к счастью, заказчик не стал экономить на текстиле.

Шторы блэкаут из натурального шелка не пропускают свет, в то время как шторы плиссе — тонкие и почти прозрачные.

Экран для радиатора по эскизам архитекторов
Экран для радиатора по эскизам архитекторов

Экраны для радиаторов, выполненные по эскизам архитекторов, образуют одно целое с подоконником и напоминают рушник, спускающийся от оконного проема. По словам Александра, экраны фрезеровали. «Если бы их резали лазером, остался бы оплавленный коричневый срез, а фрезеровка позволила выполнить все без “сучка и задоринки”. Получился нормальный срез живого МДФ», — поясняет он. Так проявляется красота в деталях.

Стены: покраска, Becker; кровать: Quaranta, Lema; бра: Tolomeo, Artemide, «Гармония света»; тумбочки: Dexter, Lammhults, Senab; картина на стене: Дюдя (Андрей) Сарабьянов, «Москва. Вид на Сити»
Стены: покраска, Becker; кровать: Quaranta, Lema; бра: Tolomeo, Artemide, «Гармония света»; тумбочки: Dexter, Lammhults, Senab; картина на стене: Дюдя (Андрей) Сарабьянов, «Москва. Вид на Сити»

Бесспорное достоинство проекта — выбор цветовой палитры, в которой белый комбинируется с пастельными тонами. Природные оттенки — серо-бежевые, кремовые, бледно-голубые — идеально подходят для московского климата, при этом их легко можно заметить во всех без исключения помещениях квартиры.
Интерьер спальни дополняет картина Дюди Сарабьянова — городской пейзаж с видом на «Москва-Сити».

Кровать: Pasol, Zalf; рабочее кресло: Strato, Zalf; стол: на заказ, по чертежам архитекторов; рулонные шторы: на заказ по чертежам архитекторов, ООО «Глассе»; светильники: Y’ON, Modular, «Гармония света»
Кровать: Pasol, Zalf; рабочее кресло: Strato, Zalf; стол: на заказ, по чертежам архитекторов; рулонные шторы: на заказ по чертежам архитекторов, ООО «Глассе»; светильники: Y’ON, Modular, «Гармония света»

В перегородке между родительской спальней и детской сделали рабочее место для ребенка, включающее стол, тумбу и книжную полку. Это то самое рабочее место, которое подарило часть своего пространства шкафу по другую сторону зигзагообразной стены. Двери из шпона лимбы по краям конструкции являются задними стенками шкафа, находящегося в спальне.

Лаконичные, без ручек, дверцы полок открываются с помощью системы K-Push. Римская штора пропускает рассеянный свет.

Фото рабочего места в детской - ниша рабочего пространства облицована натуральной пробкой, что позволяет размещать здесь разные житейские мелочи.
Фото рабочего места в детской - ниша рабочего пространства облицована натуральной пробкой, что позволяет размещать здесь разные житейские мелочи.

«Работа с пространством в первую очередь заключается в пропорционировании размеров комнат относительно друг друга», — говорит архитектор Александр Купцов, замечая, что при этом важно было не замусорить пространство, которому нужен воздух. Над интерьером работали «широкими мазками», с ювелирной проработкой архитектурных деталей. Такой интерьер, по словам Александра, свободен от декораторской шелухи.

Архитекторы «отказались от визуального мусора, чтобы очистить идею до идеала». В интерьере есть все, что значимо, но нет ничего лишнего. Хозяева сами наполнят квартиру необходимыми бытовыми мелочами.

Фото встроенного шкафа в детской
Фото встроенного шкафа в детской

В нише слева от входа в детскую комнату расположился встроенный шкаф для одежды.

Картина на стене: «Пионы», Дюдя Сарабьянов
Картина на стене: «Пионы», Дюдя Сарабьянов

Все помещения квартиры имеют единое стилистическое и цветовое решение. Здесь можно заметить характерную для минимализма простоту форм и компонентов, природные текстуры (лимбу, венге, травертин) и сочетания натуральных оттенков.

Слева - втроенный шкаф, справа - графика 1960-х годов
Слева - втроенный шкаф, справа - графика 1960-х годов

До перепланировки через всю квартиру тянулся длинный и очень узкий коридор, в котором стоял стенной шкаф — настолько узкий, что в нем мог уместиться только ряд банок с запасами. В ходе ремонта архитекторы оставили все комнаты на своих местах, а вот стену немного подвинули, увеличив коридор. Это позволило разместить здесь полноценный вместительный шкаф, в котором можно хранить все, что душа пожелает.

Система хранения в прихожей: Lema; плитка на полу: натуральный травертин Petra Antiqua
Система хранения в прихожей: Lema; плитка на полу: натуральный травертин Petra Antiqua

Также, за счет детской, немного увеличили площадь прихожей. В результате в комнате мальчика образовалась ниша для встроенного шкафа, а в более просторной прихожей вдоль стены уместились все необходимые вешалки и полочки. Пол в этой зоне выложили плиткой из травертина трех сортов и разных размеров.

До перепланировки длинный коридор делал поворот на кухню, в которую вел уже совсем маленький коридорчик. Авторы проекта оставили существовавшее зонирование, но убрали перегородки между гостиной, кухней и коридором.

Сантехприборы: Hansgrohe; унитаз: Flaminia; ванна: Hoesch; полотенцесушитель: Margaroli; плитка, столешница и раковина: натуральный травертин Petra Antiqua
Сантехприборы: Hansgrohe; унитаз: Flaminia; ванна: Hoesch; полотенцесушитель: Margaroli; плитка, столешница и раковина: натуральный травертин Petra Antiqua

Пол и стены ванной комнаты оформили той же мозаикой из травертина, что и пол в прихожей. Столешницу раковины и боковую стенку ванны также выложили травертином. Таким образом архитекторы стремились показать натуральную красоту природного камня — изящество, утонченность, лаконизм, ничего лишнего!

Сантехприборы: Hansgrohe; ванна: Hoesch; плитка, столешница и раковина: натуральный травертин Petra Antiqua
Сантехприборы: Hansgrohe; ванна: Hoesch; плитка, столешница и раковина: натуральный травертин Petra Antiqua