Найти в Дзене
Дачный СозонТ

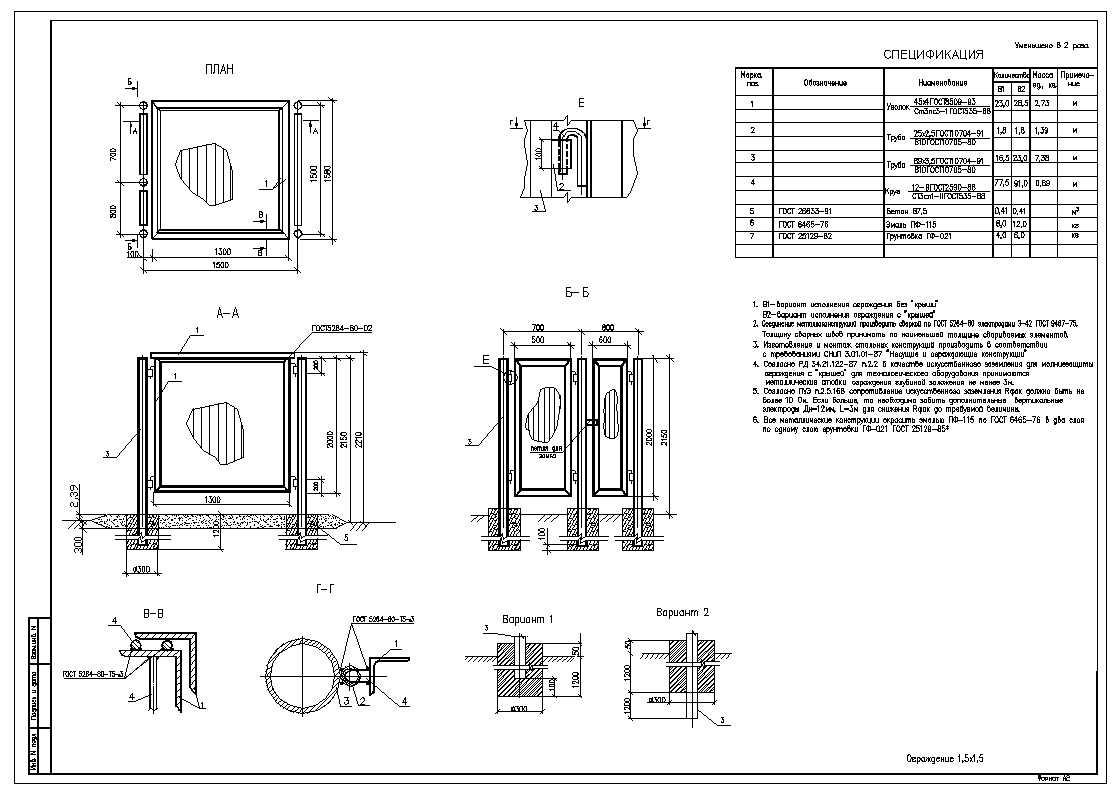
Ограждение ГРПШ.

Часто задаваемый вопрос о размещении ГРПШ в ограждении. Помощником здесь будет серия 5.905-25.05 вып.1. часть 2. Далее, если вам необходимы ограждения из прутка, могу предложить в формате автокад следующие типы ограждений с размерами в плане 1,5х1,5м 2х2м; 2х3м; 4х2м; 4х3м. За символическую плату 300 рублей вы получите 1 чертеж выбранного ограждения, а при оплате 500 рублей я уже вышлю весь комплект состоящий из 5 чертежей где будут все указанные типы ограждений. Скрины ограждений прикреплены ниже. Для оформления заявки пишите тут или в группе в ВК. Подписывайтесь, комментируйте, спрашивайте: группа в ВК, группа в ОК, канал ютуба, яндекс Дзен. При желании, можете поддержать канал копеечкой, перейдя по ссылке. http://www.donationalerts.ru/r/sozonov

Часто задаваемый вопрос о размещении ГРПШ в ограждении.

Помощником здесь будет серия 5.905-25.05 вып.1. часть 2.

Далее, если вам необходимы ограждения из прутка,

могу предложить в формате автокад следующие типы ограждений

с размерами в плане 1,5х1,5м

2х2м;

2х3м;

4х2м;

4х3м.

За символическую плату 300 рублей вы получите 1 чертеж выбранного ограждения,

а при оплате 500 рублей я уже вышлю весь комплект состоящий из 5 чертежей где будут все указанные типы ограждений.

Скрины ограждений прикреплены ниже. Для оформления заявки пишите тут или в группе в ВК.

-2
-3

Подписывайтесь, комментируйте, спрашивайте:

группа в ВК,

группа в ОК,

канал ютуба,

яндекс Дзен.

При желании, можете поддержать канал копеечкой, перейдя по ссылке. http://www.donationalerts.ru/r/sozonov