Добавить в корзинуПозвонить
Найти в Дзене
Проектная мастерская №16

Самые популярные планировки одноэтажных домов за 2019 год Ч.1.

Подводя итоги 2019 года сделали подборку проектов из нескольких самых читаемых статей нашего канала.

Подводя итоги 2019 года сделали подборку проектов из нескольких самых читаемых статей нашего канала. Прежде чем перейти к просмотру, подпишитесь на НАШ КАНАЛ, чтобы оставаться в курсе последних новостей. Смотрите так же вторую часть подборки.

1. Проект ПМ1-134 - одноэтажный дом с четырьмя спальнями. Площадь дома - 134кв.м., наружные размеры 12.5х13.3м (ШхД).

3Д-модель дома по данной планировке и подробный обзор смотрите в данной статье.

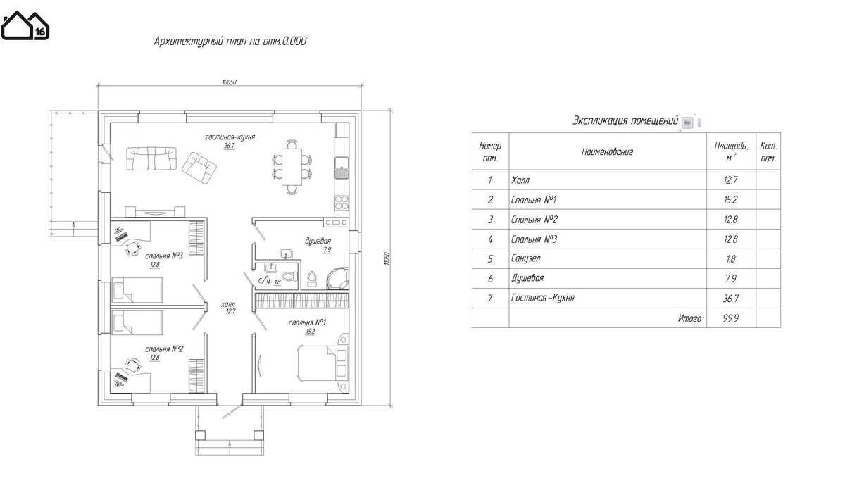
2. Далее смотрите обзор проекта ПМ2-100 дома с тремя спальнями и двумя санузлами площадью 100кв.м.

-2

Напоминаем, что на нашем сайте вы можете скачать бесплатный рабочий проект с подобной планировкой - там все необходимые чертежи и расход материалов на этот дом. Можно просто брать этот проект и начинать строить дом.

3. Планировка дома 10х10м площадью 80кв.м. по проекту ПМ1-81

-3

Здесь три спальни, один санузел и совмещенные кухня и гостиная. Можете ознакомиться с подробным обзором.

4. Проект дома площадью 70кв.м. с двумя спальнями - ПМ1-71

-4

Простая и удобная компоновка помещений - в левом крыле две спальни, в правом гостиная-кухня. Подробный обзор смотрите на нашем канале.

Скоро подготовим вторую часть самых популярных планировок одноэтажных домов за 2019й год. Чтобы не пропустить данную статью, подписывайтесь на наш канал.

-5