Добавить в корзинуПозвонить
Найти в Дзене
Best News

Электропроводка в доме своими руками! Полезный лайфхак...

Надо лишь обладать элементарными навыками обращения с перфоратором, пассатижами и отверткой, а также не забывать о должных мерах безопасности. Чтобы сделать все правильно, нужно разобраться в нюансах электромонтажа и определить порядок ведения работ. Расскажу вам пошаговую инструкцию, порядок монтажа электропроводки в доме: Разметка схемы Прежде чем начинать прокладывать электропровода, необходимо произвести разметку их разводки на стенах. Это нужно для точного понимания объема монтажных работ. После выполнения разметки можно приступать к сверлильно-долбежным работам. Но сначала следует определиться – электропроводка прокладываться будет открытым либо закрытым способом. Открытая электропроводка При открытой прокладке электрические провода укладываются в трубках, специальных плинтусах и кабель-каналах. Выполняются они из несгораемых и самозатухающих пластмасс. Если частный дом сделан из бруса или бревна, то придется выбрать как раз этот вариант. Монтировать провода внутри дерева нель
Надо лишь обладать элементарными навыками обращения с перфоратором, пассатижами и отверткой, а также не забывать о должных мерах безопасности. Чтобы сделать все правильно, нужно разобраться в нюансах электромонтажа и определить порядок ведения работ.

Расскажу вам пошаговую инструкцию, порядок монтажа электропроводки в доме:

  • создание плана укладки проводов и расположения в комнатах электроустановочных изделий;
  • прокладку электропроводов в стенах и перекрытиях или на них;
  • установку щита, распределительных коробок и розеток с выключателями;
  • коммутацию всего этого в единую внутридомовую электросеть;
  • проверку работоспособности созданной системы и ввод ее в эксплуатацию.

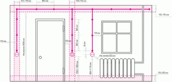
Разметка схемы

Прежде чем начинать прокладывать электропровода, необходимо произвести разметку их разводки на стенах. Это нужно для точного понимания объема монтажных работ.

-2

После выполнения разметки можно приступать к сверлильно-долбежным работам. Но сначала следует определиться – электропроводка прокладываться будет открытым либо закрытым способом.

Открытая электропроводка

При открытой прокладке электрические провода укладываются в трубках, специальных плинтусах и кабель-каналах. Выполняются они из несгораемых и самозатухающих пластмасс. Если частный дом сделан из бруса или бревна, то придется выбрать как раз этот вариант. Монтировать провода внутри дерева нельзя.

-3

Закрытая электропроводка

Закрытая проводка предполагает прокладку кабелей скрытым способом в полостях внутри стен и перекрытий. Для создания таких углублений в кирпиче или бетоне придется поработать перфоратором и болгаркой. Грязи будет много. Но зато потом все провода окажутся под слоем штукатурки, что позволит сделать интерьер более эстетичным.

-4

Подготовка проводов

Электрические провода выбираются исходя из потребляемой мощности электроприборов на конкретной линии от щита. Обычно все потребители электричества в коттедже разбиваются на группы приблизительно с одинаковой нагрузкой, чтобы сечение всех кабелей по частному дому было единым. По материалу изготовления жил провода бывают:

  • Алюминиевые;
  • Медные.

Первые дешевле, но жесткие. Медные сгибать и укладывать в штробы, трубы и каналы гораздо проще. По исполнению они могут быть в одну жилу либо многожильными. Себе в частный коттедж рекомендуется брать двух- и трехжильные провода (первые для освещения, вторые для розеток с заземлением).

-5

Вводной кабель

Самым толстым проводом в электропроводке частного дома будет вводной, на который ложится общая нагрузка. От столба до электрического щитка электрики с электроснабжающей компании сейчас обычно прокидывают самонесущие изолированные провода (СИП). Этот кабель они монтируют сами, а дальше по придомовому участку и коттеджу провести вводную линию придется самому.

Заземление

Для повышения безопасности схема электропроводки в коттедже должна быть выполнена с защитным заземлением. Его задача – обезопасить людей в жилище от поражения электрическим током. Подключение всей бытовой техники в доме к розеткам с выводом на «землю» сейчас является нормой.

-6

Система защитного отключения и автоматический выключатель

Еще один защитный элемент в схеме проводки дома – это автоматический выключатель (дифавтомат, АВДТ). Нельзя его путать с УЗО (дифференциальным выключателем). У них различается предназначение и принцип срабатывания. А вот внешне они сильно похожи.
УЗО отключает линию исключительно при возникновении тока утечки. Дифавтомат дороже и сложнее в исполнении внутри. Он срабатывает также при перегрузках в электросети и коротких замыканиях. То есть второй аппарат изначально включает в себя первый. При этом в большинстве случаев для малоэтажного жилья вполне хватает простого УЗО.

Монтаж и коммутация кабелей и конструкций

Коммутация проводов между собой и с розетками и выключателями производится посредством:

  • скруток;
  • пайки;
  • клеммных колодок с винтовыми и пружинными зажимами.

Самой надежной является пайка. Однако это и наиболее сложный способ. Скрутку жил разрешено применять, только если они из одинаковых металлов. Скручивать алюминий и медь нельзя. Подобное соединение при подаче тока перегреется и расплавится. Чаще всего электропроводка в доме сейчас собирается с использованием различных клемм. Они надежны и сильно упрощают электромонтаж.

-7

Распределительный щит

Самым сложным и важным элементом в системе электроснабжения коттеджа является распределительный щит. Его монтаж лучше всего доверить профессионалу. В нем сходятся все токи и напряжения со здания. Малейшая ошибка в его сборке неизбежно приведет к проблемам.

-8

Заключение

Выполнить разводку бытовой электропроводки, самостоятельно по инструкции выше не сложно. Основной момент здесь – это подготовка проекта со всеми расчетами мощностей и сечениями жил, а также сборка распределительного щитка. А провода проложить по коттеджу и соединить их с розетками под силу даже начинающему электрику-монтажнику.