Добавить в корзинуПозвонить
Найти в Дзене

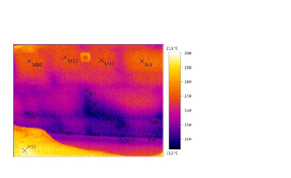
Дефект кладки

Хочу представить Вашему вниманию термограмму на которой отчётливо заметен один из часто встречающихся дефектов кладки  наружной стены. Наружная стена выполнена из газосиликатных блоков на цементно-песчаном растворе, однако при выполнении кладочных работ строители допустили серьёзную ошибку - создали "мост" холода - либо уложили ломанный блок с заполнением пустоты ц/п раствором, либо вообще выполнили недостаточное заполнение пустоты раствором. Данная аномалия, указанная в точках 1,14, CS1 имеет температуру на внутренней поверхности стены 14 градусов, что превышает нормативное значение перепада 4 градуса по СП 50.13330.2012 (температура в помещении 22 градуса Цельсия). Будьте бдительны и проверяйте строителей.
Хочу представить Вашему вниманию термограмму на которой отчётливо заметен один из часто встречающихся дефектов кладки наружной стены. Наружная стена выполнена из газосиликатных блоков на цементно-песчаном растворе, однако при выполнении кладочных работ строители допустили серьёзную ошибку - создали "мост" холода - либо уложили ломанный блок с заполнением пустоты ц/п раствором, либо вообще выполнили недостаточное заполнение пустоты раствором. Данная аномалия, указанная в точках 1,14, CS1 имеет температуру на внутренней поверхности стены 14 градусов, что превышает нормативное значение перепада 4 градуса по СП 50.13330.2012 (температура в помещении 22 градуса Цельсия). Будьте бдительны и проверяйте строителей.