Добавить в корзинуПозвонить
Найти в Дзене
HQROOM

Дом известного архитектора в родном посёлке (фото и планировка)

Архитектурное бюро Сергея Махно представило проект частного дома для семьи архитектора в посёлке Козин, Киевская область, Украина. Здесь более пятнадцати лет назад и начинал свой путь автор проекта. Уже тогда он решил, что будет жить именно здесь. Дом площадью 370 квадратных метров построен в современном украинском стиле под влиянием японской философии ваби-саби, что находит красоту и гармонию в неидеальном. Хотя с улицы резиденция почти полностью закрыта минималистичным бетонным забором, её характер замечается сразу — над стенами в деревянных рельсах нависает гордая соломенная крыша. Эти материалы являются традиционными как для украинской, так и для японской культур. Обходим каменной дорожкой дом и попадаем в сад-галерею с ароматами хвои и свежескошенной травы. Здесь японские клёны и сакуры встретились с традиционной украинской зооморфной керамикой и современным искусством. Здесь 250 тонн камней и несколько перспектив, как принято в японских садах. Японцы верят, что камень сам должен

Архитектурное бюро Сергея Махно представило проект частного дома для семьи архитектора в посёлке Козин, Киевская область, Украина. Здесь более пятнадцати лет назад и начинал свой путь автор проекта. Уже тогда он решил, что будет жить именно здесь.

Дом площадью 370 квадратных метров построен в современном украинском стиле под влиянием японской философии ваби-саби, что находит красоту и гармонию в неидеальном. Хотя с улицы резиденция почти полностью закрыта минималистичным бетонным забором, её характер замечается сразу — над стенами в деревянных рельсах нависает гордая соломенная крыша. Эти материалы являются традиционными как для украинской, так и для японской культур.

Обходим каменной дорожкой дом и попадаем в сад-галерею с ароматами хвои и свежескошенной травы. Здесь японские клёны и сакуры встретились с традиционной украинской зооморфной керамикой и современным искусством. Здесь 250 тонн камней и несколько перспектив, как принято в японских садах. Японцы верят, что камень сам должен выбрать, где ему лежать. Так случилось и здесь — сад за несколько месяцев вырос на месте пустыря будто сам, без человеческого вмешательства. Теперь здесь живут белка и уж, а утро имеет вкус. И теперь здесь тишина.

Дом имеет два входа — с фасада и внутреннего двора. Жителям сразу полюбился второй. Тем более, сразу возле него — терраса, которая по вечерам освещается звёздами и авторскими светильниками от Сергея Махно.

Шаг в дом и глиняная прохлада поглощает не только телефонную связь, но и все тревоги, «срочно» и «нужно». Справа побежала лестница на второй этаж, а по левую руку расположилась основная зона дома. Условно пространство разделено на три части: открытая кухня, обеденная зона и гостиная. Эта часть была наиболее изменена во время перепланировки дома, который здесь стоял до того, как его владельцем стал архитектор.

Объединить два этажа — единственное правильное решение для этого объекта. Потому что пространство и свет — это лучшее, что можно подарить дому. С огромного окна открывается вид на весь сад, а семейные истории охраняет молчаливый гость — скульптура «Дождь» от Назара Билыка.

Стена и потолок отделаны деревом от 11 старых заброшенных домов. Давать вещам вторую жизнь — лучшее, что мы можем сделать для нашей планеты.

Сергей Махно — заядлый коллекционер. Украинскую керамику он начал собирать ещё маленьким, у бабушки в деревне. Находил по двору старые кувшины, отмывал и забирал в «коллекцию». На одной из стен представлена её важнейшая часть глиняные изделия времён Триполья, V—II тысячелетия до нашей эры.

Обеденная зона — любимая в этой семье. Она поёт оду дереву — тёплому, простому, совершенному. С каждого места за столом открывается великолепная перспектива — в гостиную, сад или террасу.

Дом имеет две кухни. Минимализм открытой подчёркивает деревянный стол с барахолки 1935 года. Закрытую кухню оформили по украинским обычаям. Над столом здесь расположился мисник — особые традиционные полки для посуды. Фартук кухни защищает авторская керамическая плитка Сергея Махно «Скала». Из кухни можно выйти во двор через окно — всё в этом доме сделано для лёгкости принятия решений.

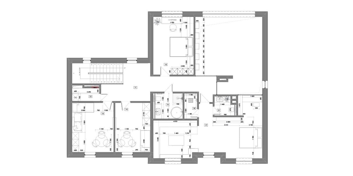
Планирование второго этажа простое и эргономичное. Это коридор-галерея и спальни для всех жителей. Коридор заканчивается балконом с видом на гостиную и сад — первое, что видят владельцы, когда утром выходят из своих комнат.

Из декора здесь керамическая плитка XVI века и ангелы-хранители над дверью в детские спальни. Из окна открывается вид на второй уровень каменного сада — его обустроили на крыше террасы. Это аналогия одного из самых известных японских садов — каменного сада Рьоан-дзи, что в Киото. Камни и песок в Рьоан-дзи здесь будто море и суша, две неразделимые сущности. 15 крупных камней сада изложены таким образом, что из какой-либо точки галереи, как ни старайся, а увидеть вместе можно не более 14 камней. Считается, что увидеть все 15 может только человек, достигший настоящего просветления.

«Когда через пять тысяч лет археологи с других планет разберут мой дом, то скажут, что он был построен по древним украинским традициям. Что здесь было много природы, много жизни», — говорит Сергей Махно.

-3
-4
-5
-6
-7
-8
-9
-10
-11
-12
-13
-14
-15
-16
-17
-18
-19
-20
-21
-22
-23
-24
-25
-26
-27
-28
-29
-30
-31
-32
-33
-34
-35
-36
-37
-38
-39
-40
-41
-42
-43
-44
-45
-46
-47
-48
-49
-50
-51
-52
-53
-54
-55
-56
-57
-58
-59
-60
-61

HQROOM — ежедневно об архитектуре и инновационном дизайне интерьера