Добавить в корзинуПозвонить
Найти в Дзене
FETCH Development

Проект компактного одноэтажного дома Вельц

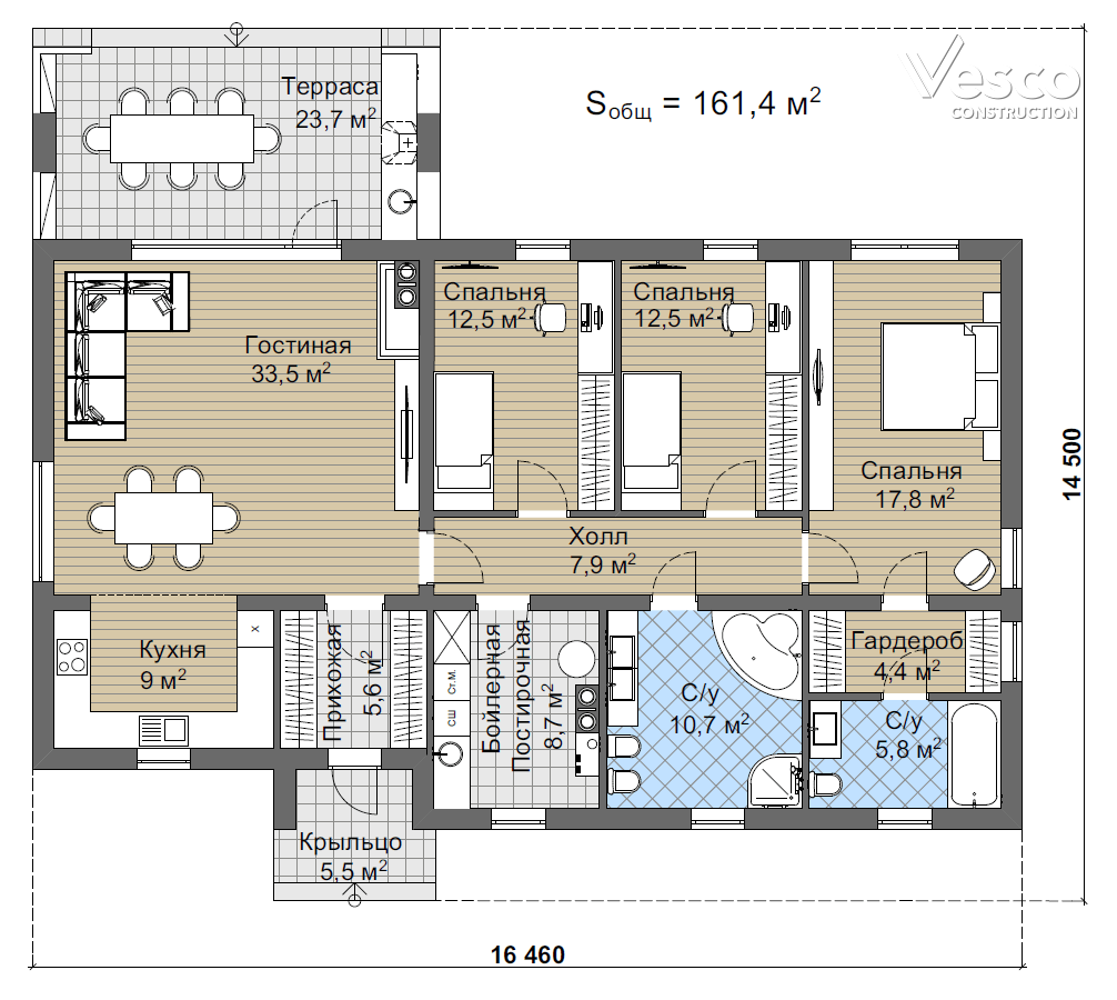
Компактность дома и продуманное расположение помещений понравятся динамичной семье, ведь всё здесь направлено на то, чтобы сэкономить время, которое является самым главным, что у нас есть. Характеристики дома Планировочные решения Это дом в современном стиле с необычной планировкой, которая отличается четким разделением на общую и приватную зоны. Общая площадь дома 161 м2, здесь размещены три спальни.  Жильцами может стать семья из 4-х человек, например семейная пара с бабушкой и ребенком, либо с двумя взрослыми детьми. Этот дом довольно лёгок в реализации, так как отличается простотой и лаконичностью формы. Фасады светлые и графичные, дом выглядит компактным, а вертикали окон не только зрительно расширяют внутреннее пространство помещений, открывая вид на окружающий пейзаж, но и придают фасаду динамики. Конструкция, поддерживающая навес террасы, состоит из двух простенков, добавляющих фасаду ощущение устойчивости, также здесь скрыта труба печи барбекю, что добавляет  фасаду единств
Оглавление

Компактность дома и продуманное расположение помещений понравятся динамичной семье, ведь всё здесь направлено на то, чтобы сэкономить время, которое является самым главным, что у нас есть.

Характеристики дома

  • Площадь дома 161,4 кв.м.
  • Архитектурный стиль Минимализм
  • Количество спален 3
  • Количество санузлов 2
  • Габариты дома 16,46*14,5 м

Планировочные решения

Это дом в современном стиле с необычной планировкой, которая отличается четким разделением на общую и приватную зоны. Общая площадь дома 161 м2, здесь размещены три спальни.  Жильцами может стать семья из 4-х человек, например семейная пара с бабушкой и ребенком, либо с двумя взрослыми детьми.

-2

Этот дом довольно лёгок в реализации, так как отличается простотой и лаконичностью формы. Фасады светлые и графичные, дом выглядит компактным, а вертикали окон не только зрительно расширяют внутреннее пространство помещений, открывая вид на окружающий пейзаж, но и придают фасаду динамики. Конструкция, поддерживающая навес террасы, состоит из двух простенков, добавляющих фасаду ощущение устойчивости, также здесь скрыта труба печи барбекю, что добавляет  фасаду единства.

В отделке дома применены светлая штукатурка и плитка, имитирующая дерево тёплого оттенка, он смотрится сдержанно и в то же время оригинально, при этом сливается с окружением за счет небольшой высоты и плоской кровли.  Этот коттедж станет для вас отличным решением, если вы цените функциональность и комфорт и мечтаете о загородном жилье!

-3

Vesco Constuction: podryady.ru (84952152643)

  • Купить готовый проект
  • Заказать индивидуальное проектирование
  • Рассчитать стоимость строительства вашего дома

Мы в социальных сетях: Facebook | Instagram | VKontakte | YouTube