Добавить в корзинуПозвонить
Найти в Дзене
Проектная мастерская №16

Популярные проекты одноэтажных домов площадью 90кв.м. с 2, 3 и 4 спальнями.

Вашему вниманию 3 варианта планировок одноэтажных кирпичных домов площадью 90 квадратных метров 1. Проект ПМ1-88 - дом с двумя спальнями, изолированной кухней, хозяйственным помещением котельной. 2. Проект дома ПМ1-89 - одноэтажный дом с тремя спальнями, двумя санузлами и совмещенными гостиной и кухней. ЗД-модель с описанием можете посмотреть на сайте. 3. Проект ПМ1-92 дома с четырьмя спальнями, двумя санузлами и гостиной-кухней на 27кв.м. Подробныее можете посмотреть на сайте Подписывайтесь на наш канал на Дзене - здесь мы обсуждаем тему малоэтажного строительства. Официальный сайт Проектной мастерской №16 - pm16.ru - здесь можно скачать все наши эскизные проекты Заказать рабочую документацию любого проекта можно по телефону +79047122103 (есть ватсап). Стоимость строительной части проекта дома до 150кв.м. составляет 10т.р. Работаем по всей России. По вопросам можете писать на info@pm16.ru. Если хотите ознакомиться с примером нашей работы, скачайте бесплатный готовый проект од

Вашему вниманию 3 варианта планировок одноэтажных кирпичных домов площадью 90 квадратных метров

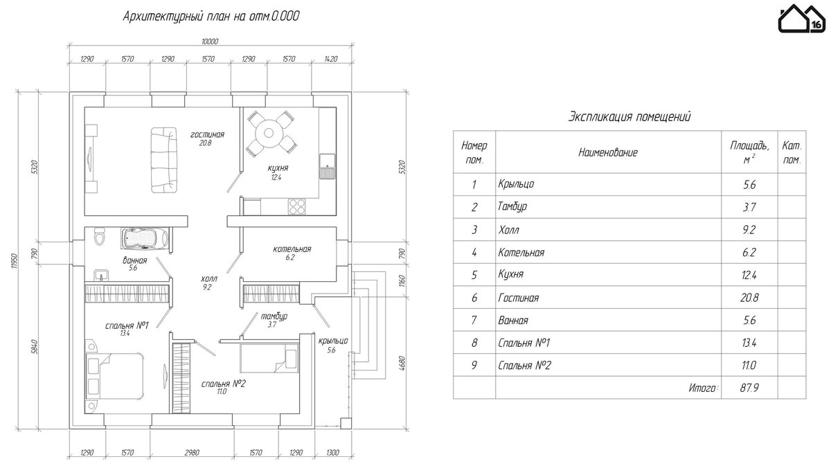
1. Проект ПМ1-88 - дом с двумя спальнями, изолированной кухней, хозяйственным помещением котельной.

-2

2. Проект дома ПМ1-89 - одноэтажный дом с тремя спальнями, двумя санузлами и совмещенными гостиной и кухней. ЗД-модель с описанием можете посмотреть на сайте.

-3

3. Проект ПМ1-92 дома с четырьмя спальнями, двумя санузлами и гостиной-кухней на 27кв.м. Подробныее можете посмотреть на сайте

-4

Подписывайтесь на наш канал на Дзене - здесь мы обсуждаем тему малоэтажного строительства.

Официальный сайт Проектной мастерской №16 - pm16.ru - здесь можно скачать все наши эскизные проекты

Заказать рабочую документацию любого проекта можно по телефону +79047122103 (есть ватсап). Стоимость строительной части проекта дома до 150кв.м. составляет 10т.р. Работаем по всей России. По вопросам можете писать на info@pm16.ru.

Если хотите ознакомиться с примером нашей работы, скачайте бесплатный готовый проект одноэтажного дома площадью 100кв.м.