Добавить в корзинуПозвонить
Найти в Дзене
Зам. по науке

Ответ на вопрос заданный президенту!

Существует ряд проблем человечества, не дающих, ему покоя. Сегодня рассмотрим две из них, первая переработка отходов, вторая получение энергоносителей из вторичных источников. Надо признать, что обе они серьёзные и острые. Площадь полигонов в России, на которые, свозиться мусор каждый год увеличивается на сумму равную суммарной площади Москвы и Питера. Как одним махом решить две проблемы человечества: избавиться от мусора и получить энергию их вторичных источников да ещё заработать на этом? Надо всего лишь узреть пророка в своём отечестве, и использовать то, что он получил в результате 20 лет труда и изысканий!!! Это комплекс термической деструкции отходов (КТД) «Пульсар» перерабатывающий более 150 видов отходов, в т.ч. твёрдые бытовые отходы, полиэтилены и пластики, автомобильные шины, синтетических тканей, искусственные кожи, отходы коврового производства, порошковых красок, загрязненная нефтепродуктами земля, резинотехнические изделия и пр. Основой разработки послужила известна

Существует ряд проблем человечества, не дающих, ему покоя. Сегодня рассмотрим две из них, первая переработка отходов, вторая получение энергоносителей из вторичных источников. Надо признать, что обе они серьёзные и острые. Площадь полигонов в России, на которые, свозиться мусор каждый год увеличивается на сумму равную суммарной площади Москвы и Питера.

Как одним махом решить две проблемы человечества: избавиться от мусора и получить энергию их вторичных источников да ещё заработать на этом?

Надо всего лишь узреть пророка в своём отечестве, и использовать то, что он получил в результате 20 лет труда и изысканий!!!

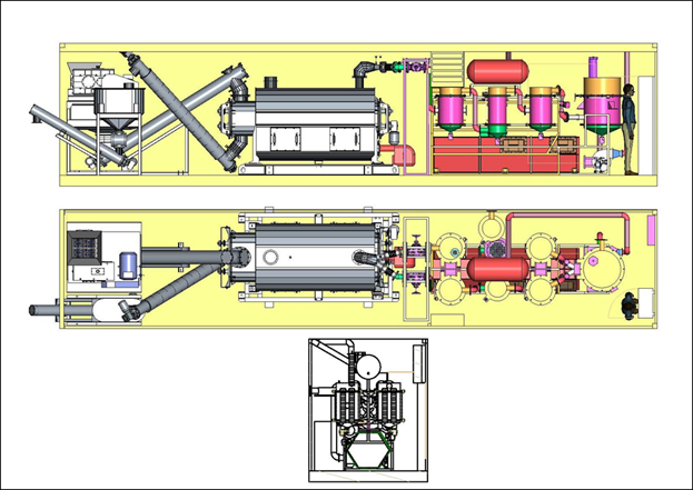
Принципиальная технологическая схема «Пульсар»
Принципиальная технологическая схема «Пульсар»

Это комплекс термической деструкции отходов (КТД) «Пульсар» перерабатывающий более 150 видов отходов, в т.ч. твёрдые бытовые отходы, полиэтилены и пластики, автомобильные шины, синтетических тканей, искусственные кожи, отходы коврового производства, порошковых красок, загрязненная нефтепродуктами земля, резинотехнические изделия и пр.

Основой разработки послужила известная технология пиролиза, однако полученный в результате многолетний работы результат, выгодно отличается от прародительницы. Вот только некоторые отличительные особенности:

1.Оборудование соответствует европейским нормам по выбросам в атмосферу;

2. 100 % очистка образующегося пиролизного газа от парафинов, воска, тех. углерода и нефтесодержащих компонентов, что позволяет использовать полученный газ в горелочных устройствах и двигателях внутреннего сгорания для выработки электроэнергии,

3. Отсутствие сброса загрязненной воды

Оборудование изготавливается по техническому заданию Заказчика под переработку представленного им типа отхода или группы отходов. Производятся модели оборудования, работающие в непрерывном или циклическом режимах. Предлагается на выбор стационарные и мобильные варианты исполнения, которые способны эксплуатироваться в любых климатических зонах.

Оборудование имеет двойную систему безопасности, многоступенчатую систему пожаротушения, управляется программным логическим контроллером. Одним словом для каждый заказчик получает свой, уникальный для его сырья комплекс, который потребляет на входе мусор, а на выходе выдаёт, товарные продукты, кому что надо, тепловую и эл.энергию, углеводородное топливо, автомобильные масла и ещё много чего. Линейка продуктов зависит от желания заказчика.

А вот так он выглядит живьём…, у производителя.

https://www.aeprom.com/

 https://www.aeprom.com/
https://www.aeprom.com/
 https://www.aeprom.com/
https://www.aeprom.com/
 https://www.aeprom.com/
https://www.aeprom.com/
 https://www.aeprom.com/
https://www.aeprom.com/
 https://www.aeprom.com/
https://www.aeprom.com/