Добавить в корзинуПозвонить
Найти в Дзене
Назар Альохін

Дешево и качественно роеловка

Данная ловушка для поимки пчелиных роев, в период роения. Преимущество данной ловушки: простота конструкций, дешевизна, малый вес, объем данной ловушки позволяет ловить пчелы на 6 Дадановских рамок. Материал нам понадобится: фанера 4мм или ДВП, брусочки (сосны или ель), гвозди или саморезы, селекон для затирки швов, оцинковка (для крышки не обязательно). Каждый может с легкостью изготовить роеловку своими руками на 6 рамок Дадановских. Завести пасику можно за копейки, пользуясь данным видом роеловки. Обзор ловушки 6-ти рамочной Сборной чертеж торца роеловки Чертежи бруска для ловушки.Перед тем как вкручивать саморез или забивать гвозди, предварительно нужно просверлить отверстья чтобы избежать раскола. Деталь фанер 4мм или ДВП 4мм Красить роеловку акриловой краской, можно добавить пигмента в краску так как у нео слабый запах, быстро выветривается и сохнет. Уже на следующий день можно выставлять ловушку. А для

Данная ловушка для поимки пчелиных роев, в период роения. Преимущество данной ловушки: простота конструкций, дешевизна, малый вес, объем данной ловушки позволяет ловить пчелы на 6 Дадановских рамок. Материал нам понадобится: фанера 4мм или ДВП, брусочки (сосны или ель), гвозди или саморезы, селекон для затирки швов, оцинковка (для крышки не обязательно). Каждый может с легкостью изготовить роеловку своими руками на 6 рамок Дадановских. Завести пасику можно за копейки, пользуясь данным видом роеловки.

Обзор ловушки 6-ти рамочной

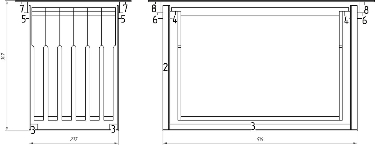
Сборной чертеж торца роеловки

-2

Чертежи бруска для ловушки.Перед тем как вкручивать саморез или забивать гвозди, предварительно нужно просверлить отверстья чтобы избежать раскола.

Деталь фанер 4мм или ДВП 4мм

-3

Красить роеловку акриловой краской, можно добавить пигмента в краску так как у нео слабый запах, быстро выветривается и сохнет. Уже на следующий день можно выставлять ловушку. А для того, чтоб пчелы луче находили роеловку, ее можно обмазать прополисом или же можно купить в магазине для ловли роев мази.

Спасибо всем за внимание, ставим лайки и подписывайтесь на мой канал будет и еще много информаций про пчел и летом будут подробные видео где все будет наглядно показано.