Найти в Дзене
ПЛАНОБЗОР

Обзор проекта частного дома №49.

Добрый день, уважаемые читатели, подписчики и гости канала. Сегодня хотелось бы написать немного необычный обзор на проект частного дома. А необычен он тем, что это проект не взятый мною из сети у проектных или строительных организаций. Ко мне обратился один из читателей моего канала и попросил составить обзор на свой дом, который он, совместно с женой, сам разработал и сам же строит (его история немного напоминает мне мою личную - он, как и я, строитель, его жена, как и моя архитектор, но речь здесь не о том), о чем читатель канала рассказывает на своем канале Яндекс Дзен "Строим мечту". Я не мог оставить без внимания его просьбу. Внешний вид. Как видно по изображениям выше задумка и реализация не всегда совпадают на 100%. Это может быть связано как с финансовыми, так и техническими аспектами, возникающими в процессе строительства. А может быть связано и с изменением взглядов будущих хозяев дома на те или иные моменты. К примеру в данном проекте планировалось построить дом с полума
Оглавление

Добрый день, уважаемые читатели, подписчики и гости канала.

Сегодня хотелось бы написать немного необычный обзор на проект частного дома. А необычен он тем, что это проект не взятый мною из сети у проектных или строительных организаций. Ко мне обратился один из читателей моего канала и попросил составить обзор на свой дом, который он, совместно с женой, сам разработал и сам же строит (его история немного напоминает мне мою личную - он, как и я, строитель, его жена, как и моя архитектор, но речь здесь не о том), о чем читатель канала рассказывает на своем канале Яндекс Дзен "Строим мечту". Я не мог оставить без внимания его просьбу.

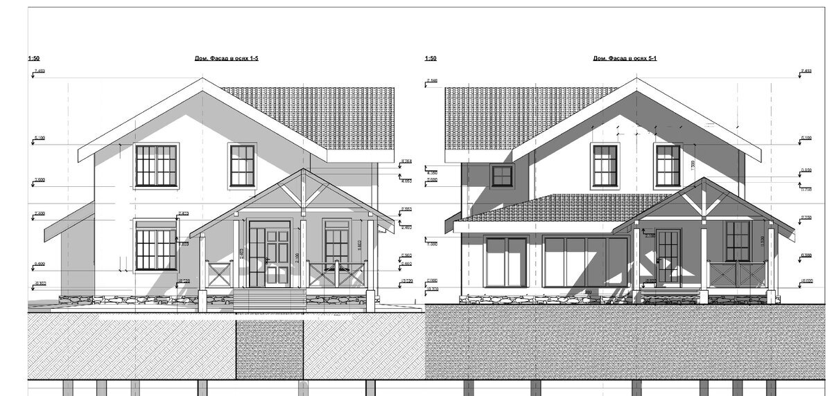
Внешний вид.

Как видно по изображениям выше задумка и реализация не всегда совпадают на 100%. Это может быть связано как с финансовыми, так и техническими аспектами, возникающими в процессе строительства. А может быть связано и с изменением взглядов будущих хозяев дома на те или иные моменты. К примеру в данном проекте планировалось построить дом с полумансардой, в результате строительства же дом приобрел два полноценных этажа - что можно назвать плюсом при. А вот к минусам получившегося результата я бы отнес изменение размера окон. Проектные фасады были более гармоничны, чем те, которые получились в итоге (по крайней мере те, которые видны на фотографиях). Особенно изменения по окнам видны со стороны заднего фасада. Окна второго этажа стали маленькими, и если честно мне кажется что света в комнатах недостаточно, особенно зимой, хотя читатель и уверяет в обратном. Изменения размера окон продиктованы изменением конфигурации второго этажа и стропильной системы. Крыша дома, что по проекту что по факту, получилась сложной по форме. Состоит из двух двухскатных крыш, и очень надеюсь что угловые соединения между скатами просчитаны. Крыша же имеет достаточный уклон и покрытие из металлочерепицы, что в совокупности по идее не должно задерживать снег на кровле - но тут еще важно как ориентирован дом с такой крышей, ведь с подветренной стороны в углах могут образовываться снеговые мешки. В доме имеется два входа, и оба расположены с безопасной стороны относительно скатов и имеют собственные козырьки. По проекту внешне дом выглядит достаточно хорошо, по факту внешние виды слегка подпортили получившиеся окна.

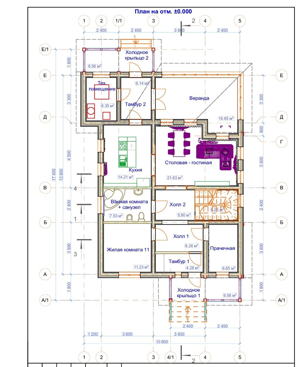
Планировка этажей.

План первого этажа. Изображение предоставлено читателем канала.
План первого этажа. Изображение предоставлено читателем канала.

Первый этаж дома отведен под активную зону. Здесь расположились два тамбур, прачечная, два холла, жилая комната (скорее всего гостевая), санузел, столовая-гостиная и изолированная кухня, а также техническое помещение.

Вход в дом осуществляется через тамбур площадью 4,28 м2. Площадь для тамбура достаточная, но вот его форма не очень удачна. Тамбур вышел узким, шириной около 1,2-1,4 метра. Этого мало для комфортного нахождения здесь. Ведь здесь должна быть возможность одновременно разуваться и раздеваться минимум трем людям одновременно (мама, папа и ребенок). Даже распределившись по длине тамбура все равно придется проходить мимо друг друга непреднамеренно толкаясь.

Пройдя через тамбур попадаем в холл площадью 6,26 м2. Этот холл своего рода холл-прихожая и здесь, в левом нижнем углу, я бы установил большой вещевой шкаф для сезонных и повседневных вещей - ведь в тамбуре шкафа в левой части будет явно не хватать.

Из холла можно попасть в жилую (гостевую) комнату. Комната небольшая - всего 11,23 м2, но достаточная для проживания здесь даже двух гостей. Двуспальную кровать здесь не поставишь, но раскладной диван очень будет кстати.

Также из холла можно пройти в прачечную, площадь которой составляет 6,65 м2. В принципе площадь достаточна для такого помещения - стиральная и сушильная машины встанут, гладильная доска установится, бельевые сушилки тоже войдут, но вот место расположения, на мой взгляд, не очень удачно. От лестницы не далеко - это конечно плюс, меньше идти с бельем со второго этажа, но вот соседство с тамбуром главного входа меня смущает. Нет-нет, а грязь из тамбура в холл да попадет, будешь выходить из прачечной, а кто-то заходить из тамбура - риск столкнуться и снова запачкать белье. И тут дело даже не в аккуратности жильцов, а в человеческом факторе и деле случая. Я бы перенес прачечную на место технического помещения - все же там меньше людей ходит и чище, да и веранда рядом большая, на которой можно белье сушить вдали от посторонних взглядов, опять таки есть выход на задний двор, на котором можно тоже спокойно сушить белье.

Пройдя из первого холла вглубь дома мы попадаем во второй холл, площадь которого 5,8 м2. Здесь расположена лестница на второй этаж. Под ней можно сделать небольшую кладовую. Ну и раз уж упомянул лестницу - она здесь не очень удобная, ведь у нее есть забежные ступени. Здесь бы я прибавил по две ступени к каждому маршу, а также немного увеличил бы высоту и уменьшил ширину ступеней - уж лучше чуть менее удобные размеры ступени, чем более неудобная лестница.

Ванная комната (санузел) в которую можно попасть из холла 2 имеет площадь 7,53 м2. Это большая ванная. Встанет вся необходимая сантехника и мебель и все равно останется место. Можно было переделать немного схему стен дома и перекрытия, и стену между холлом и санузлом сдвинуть вглубь санузла, уменьшив его площадь до тоже вполне комфортных 5 м2. Зачем? А чтобы в получившийся простенок установить дверь в жилую (гостевую) комнату из холла 2. Ну а из холла 1 вышла бы вполне приличная прихожая с большим гардеробным шкафом.

Столовая-гостиная имеет вполне хорошую площадь 21,63 м2. Здесь вышло вполне хорошее зонирование на столовую и непосредственно гостиную. Правда правый верхний угол я бы все же выпрямил - ведь чем больше углов, тем выше теплопотери дома, да и площадь помещения бы увеличилась. Но, видимо, такое решение в угоду внешнему виду.

Из гостиной можно пройти в изолированную кухню. Площадь кухни составляет приличные 14,21 м2 - бесспорно отличная площадь. А вот расстановка кухонной мебели, в виде острова, меня смущает. Кухня то большая, но вот из-за острова по центру места здесь практически не остается. Об удобстве хозяйки при её использовании я говорить не буду. А ведь поставив мебель вдоль одной из стен или углом, можно было бы тут организовать еще одну обеденную зону. Например можно завтракать или пить чай в кухне, а вот на обед, на ужин или при празднике накрывать уже большой стол в гостиной. Из кухни можно выйти в тамбур и техническое помещение.

Как мне написал читатель в результате изменений в проекте техническое помещение и тамбур 2 объединились в одно помещение. Честно, но сценарий использования этого помещения мне не известен. Рискну предположить что здесь находится котельная с газовым котлом. Почему с газовым? Электричеством топить такой дом дорого, а устанавливать тут твердотопливный котел я бы не стал. Во-первых: через дверь кухня, тут же выход на веранду, а котельная с угольным котлом довольно пыльное помещение. Во-вторых: далеко подвозить или подносить уголь. А вот газовый котел тут бы смотрелся вполне логично. Но, как я уже писал, в техническое помещение я бы переместил прачечную, ну а тех. пом. (котельную) на место прачечной - вышла бы универсальная котельная под любой тип топлива (с заменой окна на дверь).

В целом, с некоторыми недочетами, первый этаж разработан вполне неплохо. Навигация по дому понятна и логична.

План второго этажа. Изображение предоставлено читателем канала.
План второго этажа. Изображение предоставлено читателем канала.

Второй этаж отведен под тихую зону. Здесь расположены спальные комнаты, кабинет (вместо комнаты 23), санузел и гардероб.

Поднявшись на второй этаж попадаем в холл площадью 10,47 м2. Холл будет темноват - небольшого окна на лестнице не хватит для его естественного освещения.

Санузел второго этажа имеет аналогичную первому площадь - 7,53 м2. Он здесь тоже большой. Тут можно и прачечную организовать, убрав её с первого этажа - места хватит.

Спальные комнаты (21 и 22) имеют площади 14,21 и 19,75 м2. Хорошие и комфортные площади для спален. Большая спальня скорее всего рассчитана на двух однополых детей.

Кабинет (жилая комната 23) имеет площадь 11,23 м2. Достаточная площадь для кабинета, да и форма помещения хорошая.

Нашлось на втором этаже и место под гардеробную комнату площадью 8,83 м2. Хороший просторный гардероб, заменяющий шкафы во всех комнатах.

Второй этаж выполнен тоже хорошо. Расположение комнат логично и понятно.

Итог.

В целом дом выполнен неплохо и достойно. Не обошлось без минусов, но ведь дом разрабатывался под личные предпочтения и потребности, к тому же авторы проекта сами в нем и будут жить.

Спасибо за прочтение.

P.S. Мнение автора статьи может не совпадать с мнением читателей.

Подписывайтесь на канал, делитесь ссылкой на него с друзьями.

Обзоры на эти и другие проекты частных домов можно почитать на канале пройдя по ссылке.

Понравилась статья или канал? Есть желание финансово поддержать канал? Вы можете сделать это, воспользовавшись формой ниже и перечислив любую удобную сумму.