Добавить в корзинуПозвонить
Найти в Дзене
HQROOM

Квартира площадью 42 м²

Проект Flat 2.0 реализовала студия интерьерного дизайна Line Design Studio в Калининграде. Квартира площадью 42 квадратных метра обрела новый образ благодаря полному преображению в пределах относительно небольшого бюджета в 8 200 евро. Дизайнеры стремились к минимализму и функциональности. По всей квартиры можно найти эклектичный выбор решений, от сделанных на заказ дизайнерских изделий до готовой мебели, от предметов искусства на стене до полностью оборудованного рабочего стола. Это проект не жертвует функциональностью ради формы. Белый пол и стены сосуществует параллельно с чёрным и тёмным декором. Контраст даёт интересную визуальную композицию в качестве основного аргумента проекта. HQROOM — ежедневно об архитектуре и инновационном дизайне интерьера

Проект Flat 2.0 реализовала студия интерьерного дизайна Line Design Studio в Калининграде. Квартира площадью 42 квадратных метра обрела новый образ благодаря полному преображению в пределах относительно небольшого бюджета в 8 200 евро.

Дизайнеры стремились к минимализму и функциональности. По всей квартиры можно найти эклектичный выбор решений, от сделанных на заказ дизайнерских изделий до готовой мебели, от предметов искусства на стене до полностью оборудованного рабочего стола. Это проект не жертвует функциональностью ради формы. Белый пол и стены сосуществует параллельно с чёрным и тёмным декором. Контраст даёт интересную визуальную композицию в качестве основного аргумента проекта.

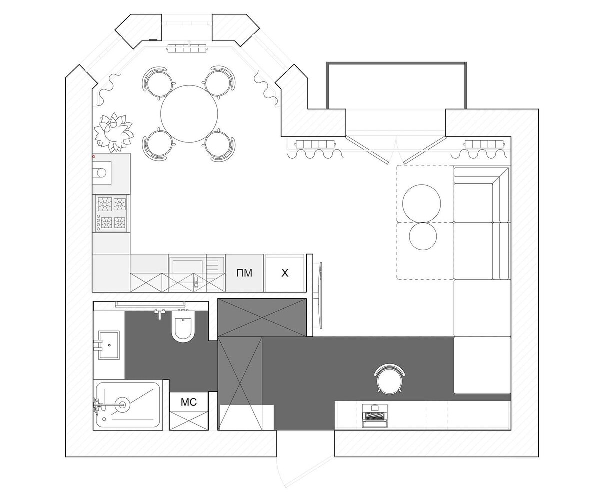
Планировка
Планировка
-3
-4
-5
-6
-7
-8
-9
-10
-11
-12
-13
-14
-15

HQROOM — ежедневно об архитектуре и инновационном дизайне интерьера