Найти в Дзене
Проекты Коттеджей

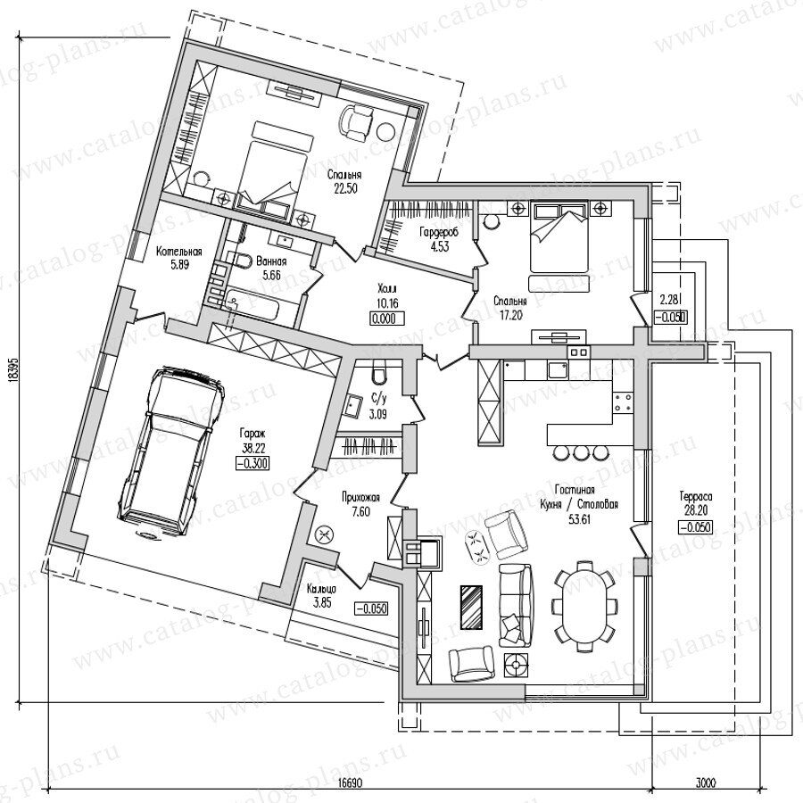
Проект одноэтажного дома в стиле хай-тек с гаражом и панорамными окнами

Общая площадь: 168 м² Террасы,балконы: 34,33 м² Габариты: 19.69x18.395 м Наружные стены: газобетонные блоки 400 Фундамент: монолитная ж/б плита Перекрытия: монолитные ж/б Крыша: плоская Кровля: наплавляемая Наружная отделка: фальц,клинкерная плитка,обшивка деревом Цоколь: нет Архитектурный стиль: хай-тек Подробнее о проекте:
https://catalog-plans.ru/catalog/62-78B
Проекты домов с плоской кровлей:
https://catalog-plans.ru/catalog/s-ploskoy-krishoy
Индивидуальное проектирование:
https://catalog-plans.ru/individual/stages

Общая площадь: 168 м²

Террасы,балконы: 34,33 м²

Габариты: 19.69x18.395 м

Наружные стены: газобетонные блоки 400

Фундамент: монолитная ж/б плита

Перекрытия: монолитные ж/б

Крыша: плоская

Кровля: наплавляемая

Наружная отделка: фальц,клинкерная плитка,обшивка деревом

Цоколь: нет

Архитектурный стиль: хай-тек

-2
Подробнее о проекте:
https://catalog-plans.ru/catalog/62-78B

Проекты домов с плоской кровлей:
https://catalog-plans.ru/catalog/s-ploskoy-krishoy

Индивидуальное проектирование:
https://catalog-plans.ru/individual/stages