Добавить в корзинуПозвонить
Найти в Дзене

Ремонт двушки за 900 тыс. Смотрим что получилось...

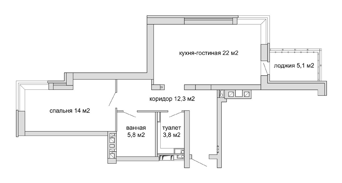
Исходные данные - евродвушка (отдельная спальня и кухня-гостиная) общей площадью 63 м2 в новостройке. Цель - сделать стильный ремонт! Бюджет - 900 тыс. руб. На момент сдачи в квартире была выполнена довольно приличная стяжка от застройщика, выложены межкомнатные перегородки. Часть стен бетонные, часть кирпичные с черновой штукатуркой. Потолки бетонные монолитные. Установлены качественные радиаторы, которые менять не будем. Начинаем черновые работы - прокладка электропроводки, выравнивание стяжки и стен, разводка водопровода и канализации. Кстати, так как в квартире кухня совмещена с гостиной, то инженерные сети необходимо проложить к общедомовым стоякам через коридор. В стяжке проходят трубы отопления и это не позволило проложить в ней же водопроводные и канализационные трубы. Принимаем решение проложить их по...потолку! Для этого под мойкой придётся поставить сололифт - мининасос, которые будет поднимать воду под потолок. Выбрали бесшумную и надёжную модель SFA Sanivite Silence. На

Исходные данные - евродвушка (отдельная спальня и кухня-гостиная) общей площадью 63 м2 в новостройке.

Цель - сделать стильный ремонт!

Бюджет - 900 тыс. руб.

На момент сдачи в квартире была выполнена довольно приличная стяжка от застройщика, выложены межкомнатные перегородки. Часть стен бетонные, часть кирпичные с черновой штукатуркой. Потолки бетонные монолитные. Установлены качественные радиаторы, которые менять не будем.

Начинаем черновые работы - прокладка электропроводки, выравнивание стяжки и стен, разводка водопровода и канализации. Кстати, так как в квартире кухня совмещена с гостиной, то инженерные сети необходимо проложить к общедомовым стоякам через коридор. В стяжке проходят трубы отопления и это не позволило проложить в ней же водопроводные и канализационные трубы. Принимаем решение проложить их по...потолку! Для этого под мойкой придётся поставить сололифт - мининасос, которые будет поднимать воду под потолок. Выбрали бесшумную и надёжную модель SFA Sanivite Silence. На холодную и горячую воду поставили фильтры грубой очистки, на кухне фильтр питьевой воды - всё производства Аквафор. Все трубы в санузлах зашиваем в короба из ГКЛВ. Устанавливаем чугунную ванну и выстраиваем каркас вокруг неё. В туалете монтируем гигиенический душ. Перед разводкой освещения окрашиваем потолок - в коридоре и гостиной будет стиль лофт с открытыми сетями сверху.

Второй этап. Укладывается керамогранитная плитка под бетон в коридоре и на кухне. На стены наносим декоративную штукатурку так же имитирующюю бетонную поверхность. По проекту на некоторых участках стен должна быть декоративный кирпич.

Одновременно ведутся плиточные работы в санузлах. Здесь производится укладка большеформатных плиток размерами 60×120 с рисунком под мрамор отечественного производителя. В спальне все стены идут под окраску, поэтому там кропотливая работа по выравниванию стен.

Переходим к потолкам. В соответствии с задумкой в кухонной зоне будут балки. Для этого используем полиуретановые изделия, имитирующие дерево. Забавно, что из-за большой длины в 5м их поднимали через улицу на лоджию на 11 этаж).

В спальне потолок подвесной из ГКЛ как с точечными светильниками, так и со скрытой светодиодной лентой вдоль окон.

На заключительном этапе возвращаемся к полу - в зоне гостиной и в спальне укладываем ламинат под тёмное и выбеленное дерево и ставим МДФ-плинтусы. В проёмы устанавливается межкомнатные двери. Несколько раз окрашиваем стены спальни. По всех квартире вставляем розетки и выключатели. На лоджии также ведутся работы - на полу керамогранитная плитка под выбеленное дерево, потолок как и в коридоре без отделки, лишь окрашиваем бетонную поверхность. Стены не трогаем т.к. это наружная часть здания, бежевый кирпич вполне хорошо вписывается в общую концепцию квартиры.

Каков же итог ремонта? Смотрим фото и раскладку по деньгам:

  • черновые и расходные материалы - 164 тыс. руб.
  • чистовые отделочные материалы - 297 тыс. руб.
  • розетки и выключатели - 37 тыс. руб.
  • сантехника - 130 тыс. руб.
  • работа мастеров - 270 тыс. руб.

Итого - 898 тыс. руб.

Стоимость мебели, светильников и техники, для справки, - 390 тыс. руб.

Понравилась статья и хотите узнать больше о дизайне - ставьте лайки и подписывайтесь на мой канал! 👌

Переходите на мой личный сайт дизайнера https://www.archi-ab.com