Найти в Дзене
Окей, дизайнер!

Из двушки в трешку. Или как увеличить колличество комнат.

Увеличение количества комнат, это одна из излюбленных просьб моих заказчиков, ну еще бы! Ведь дополнительная комната это всегда возможность изолироваться и обрести свой личный уголок. Но все не так просто.
В этой статье, я расскажу что нужно знать о таком планировочном решении на примере двух своих проектов.
Стоит ли игра свеч?
Первый вопрос, который вам нужно себе задать это не "как добавить
Оглавление

Увеличение количества комнат, это одна из излюбленных просьб моих заказчиков, ну еще бы! Ведь дополнительная комната это всегда возможность изолироваться и обрести свой личный уголок. Но все не так просто.
В этой статье, я расскажу что нужно знать о таком планировочном решении на примере двух своих проектов.

Стоит ли игра свеч?

Первый вопрос, который вам нужно себе задать это не "как добавить комнату", а "нужно ли ее добавлять". Важно помнить, что комнату вы добавляете отнимая у остального пространства. Как правило, это кухня и соседствующая с ней гостиная, которая после решительной перепланировки значительно уменьшиться и тут важно понимать, как сильно это скажется на функциональности помещения. Например: в уменьшенную кухню может не поместиться вся необходимая техника, а в гостиной прийдется отказаться от большого дивана. Кроме того, комнаты могут выглядеть очень маленькими и никакие дизайнерские ухищрения этого не исправят. Поэтому, я не рекомендую своим заказчиком делать комнаты площадью меньше 7 кв.м.

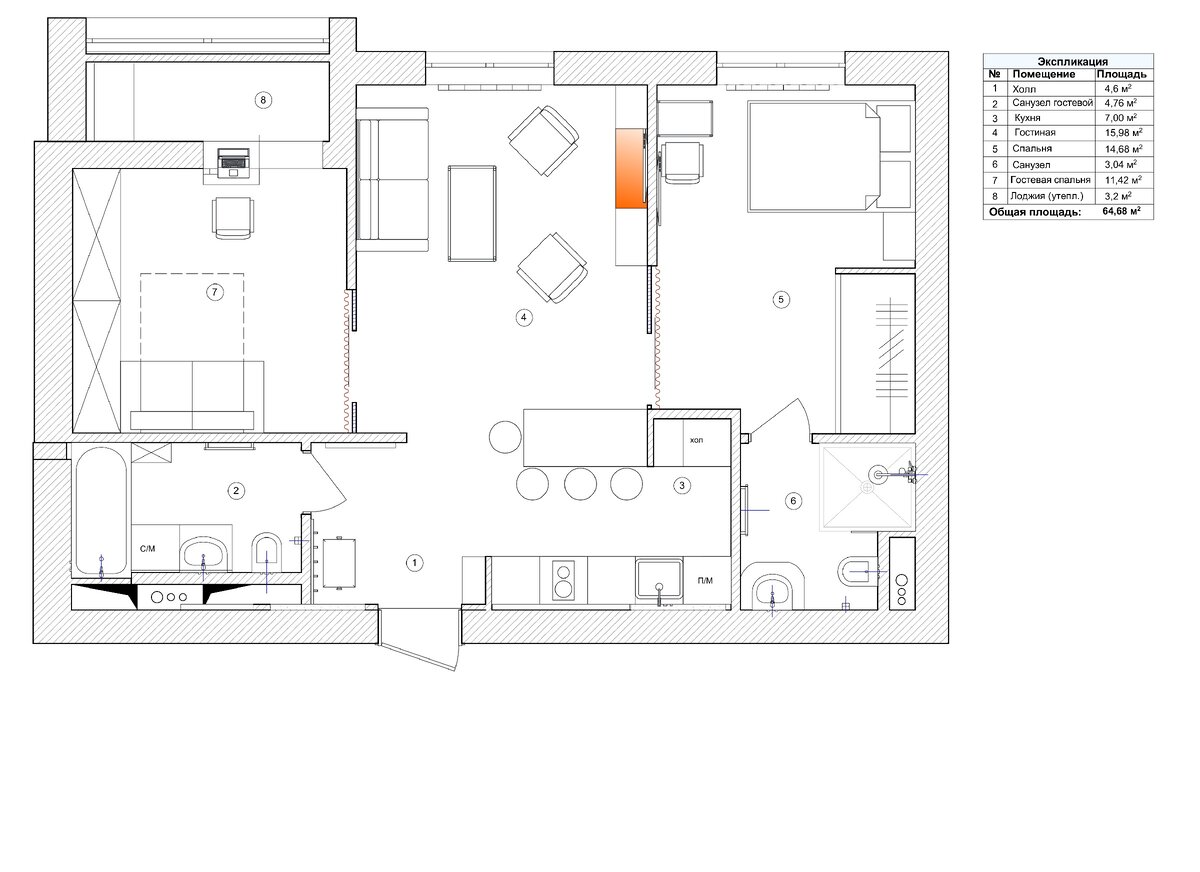
Пример №1.

Главным требованием заказчицы было изменение количества комнат, с добавлением отдельной гостевой комнаты.

В начале проектирования я всегда очень подробно беседую со своими заказчиками, выясняю особенности их быта, количество членов семьи и различные потребности.

В проекте приведенном выше ситуация была следующая: заказчица является счастливой бабушкой двоих внуков, которые приезжают к ней погостить, отсюда и потребность в отдельной гостевой спальне, которая с легкостью трансформируется в кабинет. При этом она любит комфорт и уединение - для этого мы спроектировали ей свой изолированный блок со спальней, мини-гардеробной и своим личным санузлом и душевой. Ванная комната при этом в квартире тоже осталась, но для нее открыт общий доступ из холла. А вот готовить заказчица не очень любит, максимум сварить себе кофе, поэтому под кухню отдано совсем не большое пространство, но при этом там есть все необходимое (встроенный холодильник, посудомоечная машина на 60 см, плита и мойка). При этом гостиная и кухня объединены в одной пространство, что бы апартаменты не казались тесными.

При выносе кухни в холл. вместе с ней были перенесены по полу и потолку все сопутствующие коммуникации. А именно: вентиляция подводилась непосредственно к месту вытяжки, канализация по полу была прокинута до ближайшего санузла (до хозяйской душевой). Для того, что бы отгородить зону кухни от холла, была выстроена специальная перегородка из пеноблока.

Пример № 2.

В данном проекте заказчику хотелось иметь гостиную, которая отделялась бы от зоны кухни и столовой стеклянными, раздвижными перегородками.

Заказчица данного проекта молодая, активная и очень деловая леди. А леди требуется отдельная столовая. в которой есть стол, за которым можно завтракать и кухня, но эти два помещения не должны пересекаться с гостиной. При этих условиях было решено отказаться от второго санузла, расширив зону кухни, и сделать вход из холла. При этом сохранить небольшую гардеробную. Для небольшой двухкомнатной квартиры это не значительная жертва. При этом нам удалось выделить место под столовую зону и встроенный холодильник с колонной.

Такая планировка, разумеется, тоже требовала переноса коммуникаций через потолок и пол.

На этих двух примерах наглядно видно, что превращения из двушки в трешку вполне возможно, но при этом должно сопровождаться тщательно продуманными коммуникациями и эргономикой помещения.

Расскажите в комментариях, был ли вам полезен этот материал и о чем еще вам рассказать.

Больше моих проектов можно увидеть на моем сайте: https://www.festivalwix.info/