Добавить в корзинуПозвонить
Найти в Дзене
Новости СеверПост

В Апатитах останется один муниципальный автобусный маршрут

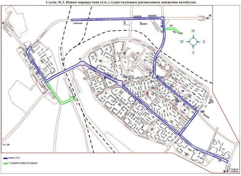
В Апатитах решили оставить один муниципальный маршрут вместо четырех действующих сейчас. Кроме того, определена цена билета, она составит 33 рубля. Новый автобус получит номер 10 и будет объезжать почти весь город. Длинна маршрута — 18,5 километров, поездка займет около часа. На линию будут выходить только большие машины. Кстати, за этот вариант высказались большинство из проголосовавших в опросе, который проводила администрация города в интернете.
Предусмотрен еще один коммерческий маршрут 5-К. Он будет отправляться из поселка Тик-Губа. Протяженность 34 километра, поездка займет почти 2 часа. Допускаются автобусы любого класса. Стоимость проезда будет устанавливать перевозчик. Льгот не будет. «Если коммерческие перевозчики предложат взять какие-то другие маршруты, то это возможно, после проведения всех формальных процедур», — сообщил директор УГХ Александр Виноградов. Конкурсы на автобусные перевозки будут скоро объявлены. Новая система заработает с 1 января 2020 года, пишет «Опен

Фото: opentown.ru
Фото: opentown.ru

В Апатитах решили оставить один муниципальный маршрут вместо четырех действующих сейчас. Кроме того, определена цена билета, она составит 33 рубля.

Новый автобус получит номер 10 и будет объезжать почти весь город. Длинна маршрута — 18,5 километров, поездка займет около часа.

На линию будут выходить только большие машины. Кстати, за этот вариант высказались большинство из проголосовавших в опросе, который проводила администрация города в интернете.

Предусмотрен еще один коммерческий маршрут 5-К. Он будет отправляться из поселка Тик-Губа. Протяженность 34 километра, поездка займет почти 2 часа. Допускаются автобусы любого класса. Стоимость проезда будет устанавливать перевозчик. Льгот не будет.

«Если коммерческие перевозчики предложат взять какие-то другие маршруты, то это возможно, после проведения всех формальных процедур», — сообщил директор УГХ Александр Виноградов.

Конкурсы на автобусные перевозки будут скоро объявлены. Новая система заработает с 1 января 2020 года, пишет «ОпенТаун».

Как сообщал СеверПост, в декабре вырастет тариф на электроэнергию.