Всем доброго времени суток! Я рад вас приветствовать на своем канале. Хочу напомнить, что речь на моем канале идет о строительстве бани на собственном земельном участке.
В предыдущей статье речь шла о первом шаге при строительстве, так называемом планировании. При планировании, необходимо было определить место под строительство, с учетом требований санитарных и противопожарных отступов от других объектов, дорог и границ земельных участков соседей. Определить места подключения водоснабжения и электроснабжения, а также водоотведение.
Сегодня мы поговорим об особенностях при выборе самого сруба, о способах его изготовлении (плюсах и минусах того или иного материала), доставки его до места назначения, о дополнительных материалах, которые обязательно понадобятся при строительстве и нюансах, которые помогут сэкономить ваш бюджет при заказе сруба. Итак, поехали.
После того, как мы определили оптимальное место под расположение бани, сразу начали вырисовываться размеры будущей постройки.
Скажу откровенно, очертания и размеры очень отличались от первоначальных, они были скромнее.
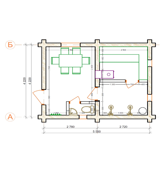
Также сразу было определено то, что баня должна иметь разделение между парной и моечной, у нее должен быть большой предбанник, в котором будет выделено место под зону отдыха и обязательно должен быть полноценный санузел, в котором кроме всего необходимого будет располагаться водонагреватель и основные узлы сантехники. Ниже представлен приблизительный план моей бани.
На рисунке наглядно видно расположение всех основных комнат и расположения в них необходимого оборудования.
При выборе материала для сруба решающим фактором стала общая стоимость материалов, включая затраты на доставку.
Сразу оговорюсь, что варианты каркасной бани я вообще не рассматривал, так как считаю, что дешевизна каркасных построек – это по большей части первоклассный коммерческий ход недобросовестных производителей, надеюсь простят меня производители и приобретатели каркасных бань.
В дальнейшем, для тех кто будет следить за выходом новых публикаций, я приведу несколько примеров из практики подтверждающих данное высказывание.
Конечно, самым оптимальным вариантом для сруба является рубленое бревно, объясню почему.
Самый основной минус оцелиндрованного бревна как не странно – это его обработка на станке.
Небольшое отступление о структуре древесины. Структура древесины состоит из основных двух компонентов: заболонь и сердцевина. Есть еще конечно и кора и луб, но это все не в счет. Нас больше всего интересует заболонь, так как именно этот компонент является самым прочным по структуре у любого вида древесины. Своего рода бронежилет для дерева.
Теперь вернемся к деревообратывающим станкам. При обработки бревна и при предании ему идеально круглой формы, практически всегда верхний слой бревна (заболонь) снимается неравномерно. Иногда, даже после обработки в некоторых местах до сердцевины остается пару сантиметров. Это неизбежный процесс.
В связи с этим на первом месте по прочности и практичности именно рубленное бревно. Конечно оно не так красиво выглядит как оцелиндрованное, но оно точно служить будет дольше, а особенно у нижних венцов.
Еще один маленький нюанс на который бы я хотел обратить ваше внимание – это сортировка бревен самим производителем внутри конкретного сруба. При заказе стандартного «пятистенка», большинство бревен имеет один и тот же размер. Исключения составляют только те, которые имеют нестандартное исполнение.
В процессе изготовления ваш сруб сначала собирают и маркируют. Затем его разбирают и только после этого доставляют заказчику.
Исходя из этого, добросовестный производитель бревна, старается максимально компенсировать неравномерное снятие заболони, путем их сортировки внутри конкретного сруба. Бревна с неравномерным снятием старается расположить как можно выше, для того чтобы уменьшить их взаимодействие с влагой. Тем самым продлить срок службы таких бревен.
Взвесив все за и против, наш выбор пал на оцилиндрованное бревно диаметром 22 см. Данный диаметр бревна один из самых распространенных при строительстве бань.
При заказе сруба, обязательно обращайте внимание на то, когда был заготовлен лес для вашего сруба. Лес для сруба заготавливают зимой. Бревна заготовленные зимой меньше подвержены растрескиванию при естественном высыхании.
Далее необходимо выбрать достойных поставщиков, которые занимаются заготовкой и обработкой древесины. Скажу откровенно, что из всего большого списка фирм предлагающих данного вида услуги львиная доля отсеялась практически сразу, осталось всего 2 компании, которые удовлетворяли нашим требованиям. Выбор был прост это - доступная цена и качество продукции, а также способ и сроки доставки сруба на место назначения. Лучше, если поставщик будет рекомендован кем ни будь из ваших знакомых или теми кто уже заказывал продукцию у данной компании. Если таковых нет, советую внимательно почитать отзывы в интернете.
Также с поставщиком обязательно заключайте договор купли – продажи продукции, который в дальнейшем поможет вам избежать непредвиденных обстоятельств.
Хочу обратить ваше внимание на то, что если вам будут предлагать вместе со срубом такие вещи как нагеля, джут, стропильные балки, балки для потолочного перекрытия, доски для обрешетки и т.д., берите не раздумывая. Во-первых такой заказ сэкономит вам много времени, во-вторых это поможет вам сэкономить ваш бюджет.
Думаю у многих сразу возникнет вопрос, как это поможет сэкономить средства? Все очень просто. Люди которые не первый день занимаются изготовлением срубов, будь то баня или дом, точно знают сколько понадобиться того или иного материала для определенного проекта бани.
Если вы сами будете до заказывать стропила, джут, нагеля и т.д., во-первых вам дополнительно придется потратиться на доставку материалов, а во-вторых на ошибки связанные с количество требуемого материала.
Еще на что хочется обратить внимание - это размеры бани. При выборе необходимо понимать, что нормальная, стандартная длина бревна равна шести метрам. Все что будет длиннее или короче, ляжет на ваши плечи в виде дополнительных затрат на дополнительную обработку при большей длине и на остатки (обрезки) бревен при меньшей.
Другими словами, оптимальный размер бани 6х6 метров по внешним стенам, так как вы заплатите за шесть метров каждого бревна и все шесть метров каждого бревна будут вам служить долгие годы.
Ниже приведены план и схематическое изображение моей бани (приложение Договору купли-продажи).
В следующей статье речь пойдет о подготовке материалов для заливки фундамента, о заливке фудамента и все что с этим связано и небольших хитростях, которые помогут сэкономить ваши средства при его заливке.
Спасибо, что дочитали статью до конца. Если статья понравилась, не забываем ставить лайки, если нет прошу оставлять коментарии. С удовольствием отвечу на все интересующие вопросы.
