Добавить в корзинуПозвонить
Найти в Дзене
Постройка

Проект одноэтажного дома площадью 110 кв.м.

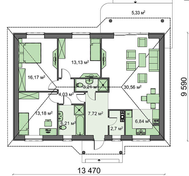
Проект одноэатжного дома из газобетона Общая площадь: 110 кв.м. Размеры: 13,4 * 9,5 Примерная стоимость: 6 млн. рублей. Такой вариант проекта отлично подойдет для небольшой семьи, либо для людей старшего возраста, к которым приезжают внуки. Благодаря тому, что в доме отсутствует второй этаж, здесь будут себя комфортно чувствовать люди пожилого возраста. Еще одно преимущество одноэтажного дома это значительная экономия денежных средств, однако такой проект требует под собой большую площадь земельного участка. На планировке видно четкое зонирование общей зоны, в которую входит коридор, техническое помещение, санузел и кухня объединенная с гостиной, а также спальной зоны. Площадь общей зоны 51 кв. м., что составляет практически половину от общей площади. Спальная зона, в которую входит три спальни и один санузел, составляет 52.72 кв.м. Большим плюсом проекта является большая гостиная совмещенная с кухней. Благодаря тому, что в помещении есть окно и выход на террасу, света там более чем д
Источник фото dom4m.ru
Источник фото dom4m.ru

Проект одноэатжного дома из газобетона

Общая площадь: 110 кв.м.

Размеры: 13,4 * 9,5

Примерная стоимость: 6 млн. рублей.

Такой вариант проекта отлично подойдет для небольшой семьи, либо для людей старшего возраста, к которым приезжают внуки. Благодаря тому, что в доме отсутствует второй этаж, здесь будут себя комфортно чувствовать люди пожилого возраста. Еще одно преимущество одноэтажного дома это значительная экономия денежных средств, однако такой проект требует под собой большую площадь земельного участка.

На планировке видно четкое зонирование общей зоны, в которую входит коридор, техническое помещение, санузел и кухня объединенная с гостиной, а также спальной зоны. Площадь общей зоны 51 кв. м., что составляет практически половину от общей площади. Спальная зона, в которую входит три спальни и один санузел, составляет 52.72 кв.м.

Большим плюсом проекта является большая гостиная совмещенная с кухней. Благодаря тому, что в помещении есть окно и выход на террасу, света там более чем достаточно. Саму террасу можно оформить по разному и если есть возможность её можно увеличить и накрыть. С технической точки зрения здесь нет проблем.

По большому счету в части планировки придраться не к чему, разве, что только к небольшой кухне и возможно небольшому техническому помещению. В остальном это очень удачный проект.

Стоимость строительства такого дома под ключ может составить около 6 млн. руб. Сумма может меняться за счет изменения материалов внутренней отделки и мебели. Эта цифра не учитывает стоимость земельного участка.

Источник фото dom4m.ru
Источник фото dom4m.ru

Если понравилась статья, ставь лайк!

А если Ты хочешь еще узнать больше полезных советов, подписывайся на канал! "Постройка" своими руками!

Читайте также: "5 популярных ошибок в дизайне маленькой квартиры"

P.S. По материалам dom4m.ru