Добавить в корзинуПозвонить
Найти в Дзене
Шедевры вне времени

Копан. История иероглифов майянской лестницы

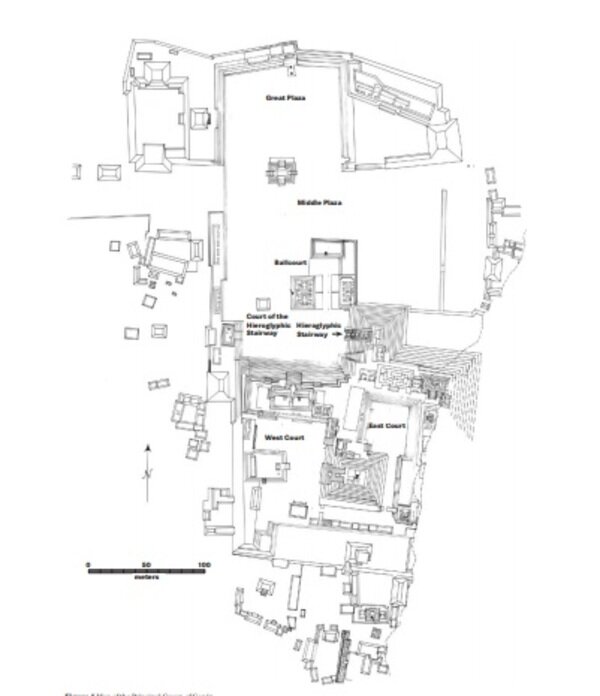
Копан – археологический монумент в Южной Америке, дошедший до нас с майянских времен. Это один из самых значительных и наиболее известных архитектурных центров, он был одним из доминирующих центров региона, о чем свидетельствуют монументальные руины, сохранившиеся до наших дней. Центральная территория площадью около двенадцати гектаров, называемая "Главная группа", состоит из ряда крупных зданий, расположенных вокруг открытых площадей. Основная группа разделена на две части: северные нижние площади и южный акрополь – высокая зона, сформированная вследствие столетий последовательного строительства. На самой большой нижней площади находятся резные стеллажи и алтари по заказу тринадцатого правителя Копана. Чуть южнее этого района находится Дворец Иероглифической лестницы, Балкорт и Храм Надписей. На юге акрополь разбит на два главных двора. Западный двор граничит на востоке со строением, внутри которого хорошо сохранившийся, расписанный храм Розалила был обнаружен в результате раско

Копан – археологический монумент в Южной Америке, дошедший до нас с майянских времен.

Это один из самых значительных и наиболее известных архитектурных центров, он был одним из доминирующих центров региона, о чем свидетельствуют монументальные руины, сохранившиеся до наших дней.

Центральная территория площадью около двенадцати гектаров, называемая "Главная группа", состоит из ряда крупных зданий, расположенных вокруг открытых площадей. Основная группа разделена на две части: северные нижние площади и южный акрополь – высокая зона, сформированная вследствие столетий последовательного строительства.

На самой большой нижней площади находятся резные стеллажи и алтари по заказу тринадцатого правителя Копана. Чуть южнее этого района находится Дворец Иероглифической лестницы, Балкорт и Храм Надписей. На юге акрополь разбит на два главных двора. Западный двор граничит на востоке со строением, внутри которого хорошо сохранившийся, расписанный храм Розалила был обнаружен в результате раскопок в тоннелях (его полная копия в настоящее время выставлена в музее скульптуры) .

Важный алтарь, который изображает шестнадцать королей Копана и связывает шестнадцатого правителя с королем-основателем династии, также находится на площади Западного двора. Восточный суд имеет множество зданий, включая храм и прилегающий Общинный дом, где четырнадцатый король встречался с представителями народа.

К югу от акрополя были найдены многочисленные элитные жилые комплексы.

Расположенный в узкой речной долине с очагами богатой почвы, Копан хорошо подходил для выращивания мезоамериканских продуктов питания, таких как кукуруза и фасоль, а также табака и какао.

Главная группа существует не изолированно, поскольку в долине Копан находятся тысячи археологических остатков. Исследования поселений, начатые Гарвардским университетом в середине 1970-х годов, позволили составить подробные карты поселений и задокументировать древнее использование земли. Раскопки в нескольких районах за пределами главного центра города Копан позволили получить дополнительные данные о древнем государстве майя.

Значимость Иероглифической Лестницы

-2

Копан является одним из крупнейших и наиболее исследованных мест в районе майя, где было создано больше иероглифических надписей и скульптурных памятников, чем на любом другом археологическом объекте в Новом Свете. Его разнообразный корпус древней скульптуры, поразительно красивый и выразительный, делает это место, по словам некоторых археологов, "потенциально чудесным окном в идеологию древних майя".

По этим археологическим причинам, а также потому, что архитектурный комплекс с его пирамидальными храмами и площадями является одним из наиболее характерных для цивилизации майя, Копан с 1980 находится под защитой ЮНЕСКО (и Министерства культуры и туризма Гондураса с 1979).

Особо отмечается, что иероглифическая надпись на лестнице строения имеет большую культурно-историческую ценность. Расположенная на западной стороне этой храмовой пирамиды, Иероглифическая лестница, построенная в двух частях в два разных времени, имеет самую длинную текстовую надпись майя из древней Мезоамерики.

Надпись рассказывает об официальной истории правителей Копана и обеспечивает точный учет предыдущих династических событий и выдающихся личностей.

-3

В Новом Свете, где сохранилось мало исторических записей, документирующих события и людей прошлого, лестница также предоставляет редкую возможность сравнить историю, рассказанную с помощью скульптурных текстов, с данными, предоставленными историками и археологами.

Иероглифическая лестница позволила современным исследователям развить свое понимание трансформации политико-религиозной идеологии Копана. Хотя большая часть Лестницы была реконструирована в конце 1930-х годов, в процессе которой более половины резных блоков не были возвращены в исходное положение, нижние пятнадцать ступеней были найдены и остаются на месте. Несмотря на неточности в реконструкции, лестница стала важным национальным символом и источником гордости для гондурасского общества, играя важную роль в укреплении культурной самобытности.

Свидетельством политической и культурной значимости памятника является изображение лестницы вместе с балконом на самой распространенной банкноте страны.