Добавить в корзинуПозвонить
Найти в Дзене
Дмитрий Аврам

Микроквартиры Москвы.

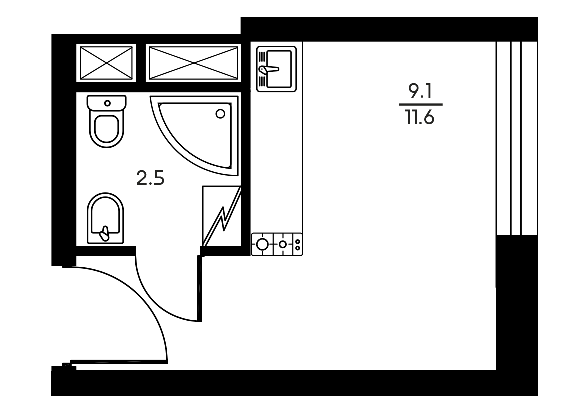
В последние несколько недель в средствах массовой информации нам рассказывают о якобы новом тренде на рынке жилья в Москве – о квартирах-кладовках, площадью 11,1 и 11,6 кв. м. Это самые маленькие жилплощади за всю историю столицы, говорится в сообщениях. «Парадоксально, но подобные квартиры по своей площади даже меньше, чем парковочные места для автомобилей. Согласно установленной властями норме, для машино-мест в паркингах минимально допустимая площадь составляет 13,25 квадратного метра при габаритах 5,3×2,5 метра», — отмечается в пресс-релизе АН «Метриум». Давайте разберемся, что это за квартиры, сколько они стоят и как там можно жить. Итак, откидываем различные доли в квартирах, апартаменты «псевдо и как бы» жилье (о них мы поговорим в другой раз) и рассмотрим только то, что подходит под приобретение с использованием ипотечных средств, и, в соответствии с жилищным законодательством, является жилым помещением. Какого же было мое удивление, потра
Деловой центр Москва-сити.
Деловой центр Москва-сити.

В последние несколько недель в средствах массовой информации нам рассказывают о якобы новом тренде на рынке жилья в Москве – о квартирах-кладовках, площадью 11,1 и 11,6 кв. м. Это самые маленькие жилплощади за всю историю столицы, говорится в сообщениях. «Парадоксально, но подобные квартиры по своей площади даже меньше, чем парковочные места для автомобилей. Согласно установленной властями норме, для машино-мест в паркингах минимально допустимая площадь составляет 13,25 квадратного метра при габаритах 5,3×2,5 метра», — отмечается в пресс-релизе АН «Метриум».

Давайте разберемся, что это за квартиры, сколько они стоят и как там можно жить.

Итак, откидываем различные доли в квартирах, апартаменты «псевдо и как бы» жилье (о них мы поговорим в другой раз) и рассмотрим только то, что подходит под приобретение с использованием ипотечных средств, и, в соответствии с жилищным законодательством, является жилым помещением.

Какого же было мое удивление, потратив много времени на поиск, я убедился, что изначально построенных квартир с такими параметрами на рынке московского жилья НЕТ, и никогда не было! Ничего подобного нет ни во вторичках, ни в новостройках. Но, судя по всему, в ближайшее время может появиться! Сейчас объясню почему.

То, о чем нам рассказывают в новостях - это переделанные после реконструкции здания и легализованные (узаконенные) в мини-студии бывшие общежития «Моспромстроя» 1970-х годов. Застройщик говорит, что все самое необходимое для жизни уместится на этой площади. Стать владельцем такой недвижимости можно за 3 миллиона рублей (порядка 250 000 руб/кв.м., что сопоставимо со стоимостью кв.м. в квартирах, расположенных в центре Москвы).

В СМИ зачастую приводятся слова генерального директора Level Group Кирилла Игнахина, который назвал сокращение минимальных площадей квартир одним из проявлений роста разнообразия форматов жилья на рынке новостроек. «Меняется сознание покупателя, его образ жизни, а вместе с ним — и потребность в жилье. К примеру, представьте, что вы студент или молодой специалист и вам нужно отдельное жилье, но ваш бюджет ограничен, а большая квартира на данном этапе жизни не требуется. Еще 5-10 лет назад на рынке новостроек вы бы не нашли ничего подходящего, потому что самая маленькая квартира была вам не по карману. Малогабаритные варианты квартир теперь позволяют решить жилищную проблему для таких категорий клиентов», — пояснил эксперт.

Студия 11,2 кв.м.
Студия 11,2 кв.м.

Несмотря на то, что в пресс-релизах используется термин «новостройки», речь идет не о новых домах. «Поскольку продажи идут от юрлица, мы такие объекты считаем как первичный рынок», — объяснила Руководитель отдела аналитики и консалтинга «Метриума» Герасимова.

Реконструкцией бывших общежитий занималась компания My Space Development. Малогабаритная квартира площадью 11,2 квадратного метра в ЖК «MySpace на Дегунинской» продается за 2,9 миллиона рублей На сайте ЖК (https://degunino.msdmos.com), Застройщик заявляет, что это готовое жилье с отделкой, у дома имеется собственная парковка, шлагбаум и еще один плюс — станция метро «Селигерская» в шаговой доступности. По факту же, это панельная девятиэтажка.

Жилой комплекс на Фрезерной улице (https://frezer.msdmos.com) старый пятиэтажный кирпичный дом, какие сейчас по всей Москве сносят по программе реновации.

По моему мнению, которое наверняка совпадает с мнение большинства жителей нашей страны, полноценным жильем данные студии назвать нельзя, но затяжной экономический кризис, падение доходов населения, дорогая ипотека - делают свое дело, в связи с чем, подобных предложений на рынке будет появляться всё больше. Уже сейчас на популярных интернет-площадках недвижимости размещены объявления о продаже подобного жилья.

Растиражированность новости о квартирах-кладовках я связываю лишь с тем, что «прощупывая почву» нас постепенно готовят к тому, что жильем эконом класса в современной России будет представлено не только «панельками» в малопривлекательных районах, но еще и квартирами «капсульного типа». Ведь нам в очередной раз привели примеры Европы, где есть студии размером в 8 кв.м, Китая и Гонконга с квартирами 9 кв.м. Однако как строить в такой квартире свою жизнь, удовлетворять даже минимальные социальные потребности - увы не сообщается.