Найти в Дзене

Проект дома в "теплый угол" ✍🏻❗ 123 кв. м

Одноэтажный дом с жилой мансардой Проект из сухостойной сосны кело - лафет в лапу На заметку:
В чем плюс типа соединения в углах "без остатка"?
- больше внутренняя площадь;
- экономим материал;
- для любителей сделать "термос" при внешней отделки
Минус:
- соединения по открытой стене открытые (при 6 м заготовках)
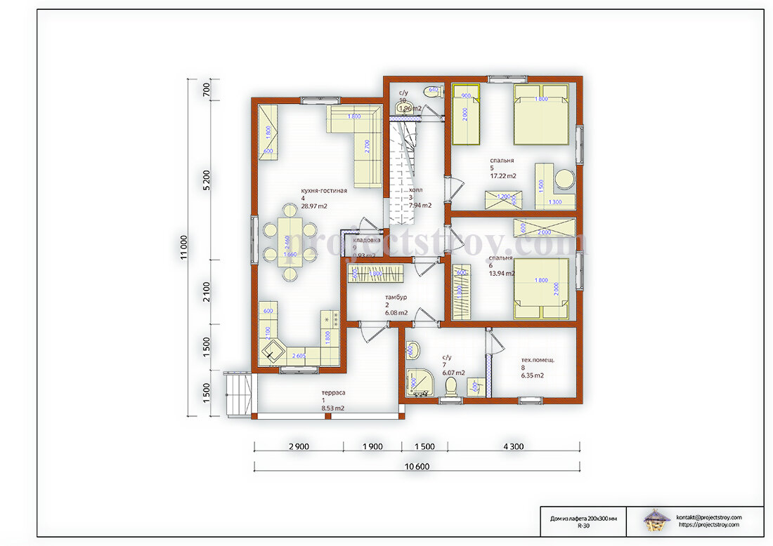
Показатели для сметного расчета строительства R-30:
-общая площадь по экспликации - 122.5 кв. м;
-объем лафета 200х300 мм ~85 куб. м из 6 м;
-пог. длина заготовок лафет стен ~1420 м;
-пог. длина фундамент ~85 кв. м;
-балки - 100х200 мм;
-стропила - 50х200 мм;
-площадь кровли и периметр - 220 кв. м и - 142 пог. м;
-угол кровли ~33-40 гр.;
-высота 1-го этажа - 2.85 м;
-высота мансарды - от 1.8 м;
-высота строения - 7.3 м

Одноэтажный дом с жилой мансардой

Проект из сухостойной сосны кело - лафет в лапу

деревянный дом в теплый угол
деревянный дом в теплый угол

На заметку:
В чем плюс типа соединения в углах "без остатка"?
- больше внутренняя площадь;
- экономим материал;
- для любителей сделать "термос" при внешней отделки
Минус:
- соединения по открытой стене открытые (при 6 м заготовках)

Показатели для сметного расчета строительства R-30:
-общая площадь по экспликации - 122.5 кв. м;
-объем лафета 200х300 мм ~85 куб. м из 6 м;
-пог. длина заготовок лафет стен ~1420 м;
-пог. длина фундамент ~85 кв. м;
-балки - 100х200 мм;
-стропила - 50х200 мм;
-площадь кровли и периметр - 220 кв. м и - 142 пог. м;
-угол кровли ~33-40 гр.;
-высота 1-го этажа - 2.85 м;
-высота мансарды - от 1.8 м;
-высота строения - 7.3 м

планировка деревянного дома
планировка деревянного дома
мансарда одноэтажного дома
мансарда одноэтажного дома