Найти в Дзене
ЭВАстрой

Типовой проект двухэтажного дома с гаражом из газобетонных блоков!

Перед нами проект дома с мансардой, террасой, гаражом и 5-ю спальнями. Внешне — стильный, современный, заметный, в практическом плане — комфортный и функциональный. Второй этаж решен в мансардном варианте, поскольку уютные «чердачные» планировки десятилетиями остаются в тренде. Общая площадь — 303 м2. Дом с гаражом и террасой: вид снаружи Стороннему наблюдателю дом видится как основательное строение в отделке из клинкерного кирпича, добротное и не лишенное элегантности. В общую архитектурную композицию органично вписываются: · Со стороны переднего фасада — просторный гараж, с подъемными воротами. Кроме одного машиноместа, в нем предусмотрена котельная с функциями техпомещения. · На садовом фасаде — крытая терраса, соединенная с кухней-столовой распашной стеклянной дверью. Благодаря основательной крыше на опорах получилась отличная летняя гостиная Конструктив и дизайн Дом ставится на сплошной ж/б фундамент (как в проекте) или без него, зависит от характеристик грунта и климата (возможны
Оглавление

Перед нами проект дома с мансардой, террасой, гаражом и 5-ю спальнями. Внешне — стильный, современный, заметный, в практическом плане — комфортный и функциональный. Второй этаж решен в мансардном варианте, поскольку уютные «чердачные» планировки десятилетиями остаются в тренде. Общая площадь — 303 м2.

Дом с гаражом и террасой: вид снаружи

Стороннему наблюдателю дом видится как основательное строение в отделке из клинкерного кирпича, добротное и не лишенное элегантности. В общую архитектурную композицию органично вписываются:

· Со стороны переднего фасада — просторный гараж, с подъемными воротами. Кроме одного машиноместа, в нем предусмотрена котельная с функциями техпомещения.

· На садовом фасаде — крытая терраса, соединенная с кухней-столовой распашной стеклянной дверью. Благодаря основательной крыше на опорах получилась отличная летняя гостиная

Конструктив и дизайн

Дом ставится на сплошной ж/б фундамент (как в проекте) или без него, зависит от характеристик грунта и климата (возможные варианты: ленточный, свайно-растверковый). Однако монолитный ж/б фундамент — универсальный вариант под двухэтажный дом из газобетона.

Особое внимание уделено декоративной стороне проекта. Фасады выдержан в сдержанных серовато-коричневых тонах, а яркости добавляют белоснежные элементы отделки. Кровля из гибкой черепицы, спокойной коричневой гаммы.

Оценим планировку

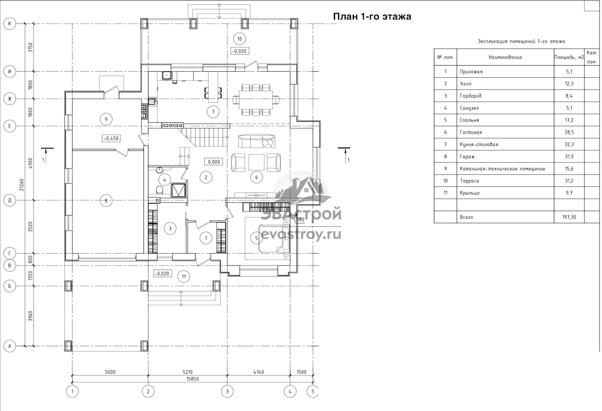
На первом уровне сосредоточены общественно-досуговые помещения. Попасть внутрь можно через широкое крытое крыльцо, поднявшись по невысоким каменным ступеням. По обе стороны от тамбура расположены гардеробная с раздвижной дверью и спальня.

Свернув из холла направо, окажемся в эркерной гостиной, за которой по плану столовая, а далее кухня. Дневная зона — угловое помещение, с достаточно четкой выраженностью функциональных зон. Проход в гараж — через лестничный холл, оттуда же заходим в санузел.

В мансарде из холла-коридора расходятся двери в четыре спальни и общий санузел-ванную. Таким образом, у каждого члена семьи своя комната, а у родителей — отдельный санузел и гардеробная.

Такой дом — отличный выбор для семьи с двумя-тремя детьми и бабушкой/дедушкой. Теплый зимой, прохладный летом, он будет уютен в любую погоду.

Спасибо, что дочитали статью до конца, не забудьте ставить лайк и подписываться на мой канал!