Найти в Дзене
ПроПроекты

Большой или нет? Оптимальный размер и площадь

Очень часто на начальной стадии работы с заказчиком (обсуждении задания на проектирование) возникает основной вопрос: какой нужен состав помещений и какой площади должен быть дом\коттедж\особняк? Безусловно, у клиента есть определенные желания и предпочтения, но ввиду того, что он планирует строить свой первый объект и не имеет личного опыта проживания в нем, то начинает сомневаться в решении. Цена ошибки может быть очень серьезной. Ведь если весь коттедж или какие-то отдельные помещения окажутся не достаточными по размеру, то это скажется на комфорте или возникнут инженерно-технические сложности: например, в котельную не влезет необходимое оборудование. А может сложится наоборот - дом получится слишком большим и расходы на его строительство и дальнейшее обслуживание станут обременительными. При планировании размера загородной недвижимости нужно обратить внимание на следующие определяющие факторы и вопросы: 1. Дом для постоянного или временного (сезонного) проживания? Если он рассм

Очень часто на начальной стадии работы с заказчиком (обсуждении задания на проектирование) возникает основной вопрос: какой нужен состав помещений и какой площади должен быть дом\коттедж\особняк? Безусловно, у клиента есть определенные желания и предпочтения, но ввиду того, что он планирует строить свой первый объект и не имеет личного опыта проживания в нем, то начинает сомневаться в решении.

Цена ошибки может быть очень серьезной. Ведь если весь коттедж или какие-то отдельные помещения окажутся не достаточными по размеру, то это скажется на комфорте или возникнут инженерно-технические сложности: например, в котельную не влезет необходимое оборудование. А может сложится наоборот - дом получится слишком большим и расходы на его строительство и дальнейшее обслуживание станут обременительными.

При планировании размера загородной недвижимости нужно обратить внимание на следующие определяющие факторы и вопросы:

1. Дом для постоянного или временного (сезонного) проживания? Если он рассматривается в качестве основного жилья, то состав помещений и размеры должны быть больше, чем если вы будете приезжать в коттедж только на летнее время или выходные.

2. Какое количество человек будет проживать в доме? Учтите возможное расширение семьи - появление детей или переезд родственников.

3. Финансовые возможности. Конечно, важно понимать простую истину: большой дом - это большие расходы. Нередки случаи, когда землевладелец не сопоставил свои желания с возможностями - начал строить и не смог довести объект до конца. Без проекта и без сметы сложно представить сколько будет стоить возведение. Но можно взять ориентировочное среднее значение стоимости строительства 1 м.кв., которое составляет для каменного коттеджа\особняка 45-50 тыс.руб. без внутренней отделки и 75 тыс. руб. с интерьером, инженерными сетями и коммуникациями, т.е. что называется "под ключ". Таким образом, цена объекта площадью 200 м.кв. составит около 15-18 млн.руб.

Примечание: Итоговый бюджет строительства дома сильно зависит от выбранной технологии (каркасная, бревенчатая, кирпичная, газобетонная) и ценового сегмента отделочных материалов, а также квалификации строителей (стоимость работ которых так же отличается). Один и тот же по площади дом но с разными характеристиками материалов может отличаться по цене на 40-60%.

4. Личные привычки и образ жизни. Некоторым владельцам важно иметь максимальную функциональность и большое пространство для совмещения различных занятий, развлечений или работы в своем доме. Например, можно включить в площади для проектирования - кабинет, мастерскую и\или спортзал с бассейном.

А теперь приведу рекомендацию по составу и площади помещений для семьи из 4-5 человек (+возможные гости). Это самый распространенный вариант, который желает иметь большинство клиентов.

Состав помещений:

  • Гараж - 35 м.кв.
  • Прихожая - 15 м.кв.
  • Гардероб - 10 м.кв.
  • Котельная\кладовая - 12 м.кв.
  • Холл-лестница - 20 м.кв.
  • Кухня-столовая - 18 м.кв.
  • Гостиная - 30 м.кв.
  • Санузел - 3 м.кв.
  • Сауна-парная + раздевалка и душевая - 20 м.кв.
  • Спальня основная + гардероб и санузел - 25 м.кв.
  • Спальни для детей (2 шт.) - 12 х 2 м.кв.
  • Гостевая спальня или кабинет - 14 м.кв.
  • Ванная - 8 м.кв.
  • Подсобное помещение - 6 м.кв.

Итого: 240 м.кв.

Если убрать часть не самых важных помещений (гараж, сауна, гостевая комната) и немного сократить другие, то минимальная площадь коттеджа составит 150-160 м.кв.

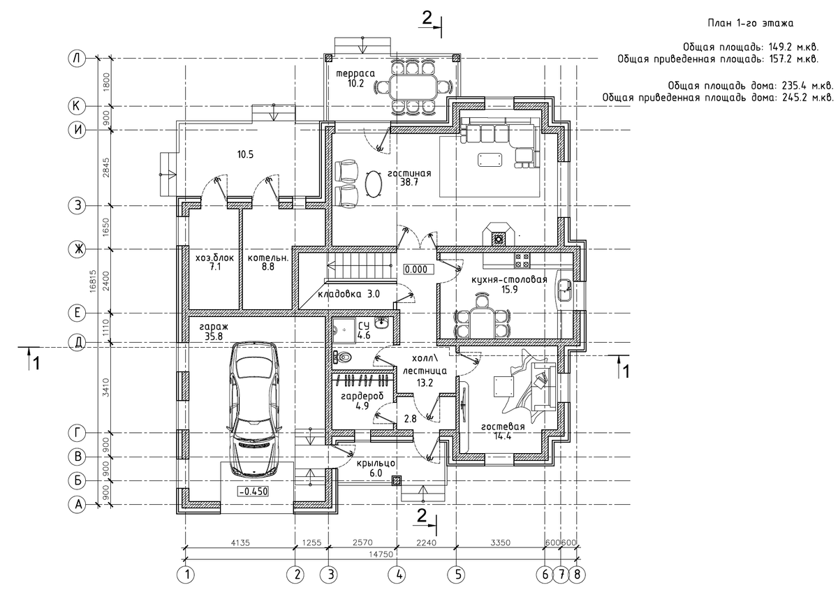
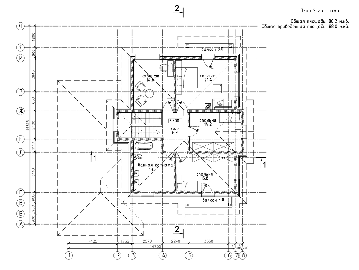
Вот пример планировки, которая почти полностью соответствует перечисленным выше требованиям. Площадь этого коттеджа составляет 240 м.кв. Единственный существенный недостаток: маленькая зона холла-прихожей.

Архитектура коттеджа площадью 240 м.кв.
Архитектура коттеджа площадью 240 м.кв.

Если говорить о максимальном функционале частного дома, то в составе проекта могут быть следующие помещения в любом сочетании и любой площади:

  • Зимний сад \ оранжерея \ веранда
  • Спортивный зал
  • Каминный зал
  • Кинотеатр
  • Кабинет \ библиотека
  • Кальянная
  • Мастерская
  • Бильярдная
  • Бассейн
  • Крытая \ открытая терраса с зоной барбекю
  • Балконы и лоджии
  • Комнаты для персонала \ охраны
  • Винный погреб

Пример планировки большого особняка с хорошим разнообразием функций. В цокольном этаже расположились технические и развлекательные помещения: кинотеатр и бильярдная (спортзал), а также винный погреб. На первом этаже большая SPA-зона с бассейном.
Площадь дома: 750 м.кв.

Архитектура дома площадью 750 м.кв.
Архитектура дома площадью 750 м.кв.

Желаю будущим домовладельцам корректно оценивать свои возможности и желания, а если остались вопросы и нужна консультация или помощь в определении площади дома, то обращайтесь к нам по почте или оставляйте комментарии ниже.