Найти в Дзене
Древология

Как сделать деревянную скамейку своими руками

Конечно же, можно купить любую скамейку. Есть и дорогие и не очень. Но ведь скамейка, сделанная своими руками особенная. К тому же обойдется значительно дешевле покупной. А если и материал есть, то уж совсем бесплатно. Лишь только вложить свое время, силы. Но все это будет только в удовольствие, если есть на то желание. Как сделать деревянную скамейку своими руками, читайте ниже. Скамейка, конечно, может быть выполнена из разных материалов. Но все же дерево было и остается у людей в приоритете. Древесина имеет красивый, теплый внешний вид. К тому же вполне доступен для любого кошелька. Читайте также: Как построить деревянный навес своими руками Что учесть при строительстве скамейки Подберите максимально комфортную ширину сидений, угол наклона спинки. Ведь на скамейке должно быть комфортно сидеть. Для этого, собственно говоря мы ее и строим. Для комфорта. Скамейку следует изготавливать их хороших и качественных материалов. Поскольку, скамейка должна выдерживать большие нагрузки. Скаме
Оглавление

Конечно же, можно купить любую скамейку. Есть и дорогие и не очень. Но ведь скамейка, сделанная своими руками особенная. К тому же обойдется значительно дешевле покупной. А если и материал есть, то уж совсем бесплатно. Лишь только вложить свое время, силы. Но все это будет только в удовольствие, если есть на то желание. Как сделать деревянную скамейку своими руками, читайте ниже.

Скамейка, конечно, может быть выполнена из разных материалов. Но все же дерево было и остается у людей в приоритете. Древесина имеет красивый, теплый внешний вид. К тому же вполне доступен для любого кошелька.

Читайте также: Как построить деревянный навес своими руками

Что учесть при строительстве скамейки

Подберите максимально комфортную ширину сидений, угол наклона спинки.

Ведь на скамейке должно быть комфортно сидеть. Для этого, собственно говоря мы ее и строим. Для комфорта.

Скамейку следует изготавливать их хороших и качественных материалов. Поскольку, скамейка должна выдерживать большие нагрузки.

-2

Скамейку из дерева необходимо защитить от влияния внешних негативных факторов. Чтобы первый же дождь не уничтожил вложенных усилий.

Читайте также: Навесная клумба своими руками

Оптимальные параметры для деревянной скамейки

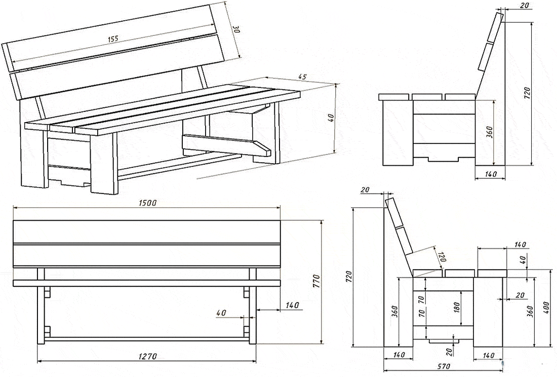
  • Длина скамейки зависит от ваших пожеланий. Рассчитывайте, что на каждые полметра, помещается один человек.
  • Оптимальная ширина скамейки составляет 55 сантиметров
  • Высота спинки будет комфортна, равная ширине скамейки. Порядка 50-60 см
  • Угол наклона спинки скамейки, порядка 15-20 градусов

Список материалов для скамейки

Для того, чтобы изготовить скамейку, нужно будет подготовить из инструментов:

  • Ножовку по дереву или электрический лобзик, для распила досок
  • Дрель или шуруповерт со сверлами, чтобы собрать конструкцию скамейки воедино
  • Карандаш или шариковая ручка, угольник и рулетка

И нужны будут следующие расходные материалы:

  • Состав для пропитки древесины, к примеру, обыкновенная олифа или другие средства обработки
  • Лак или краска, в зависимости от ваших предпочтений
  • Деревянные доски из расчета длины скамейки 150 см:
  • Ширина, у всех доски всех частей скамейки, оптимальна в 15см, а толщина – 40 см.
  • 5 досок по 150 см (спинка и сиденье)
  • 2 доски по 36 см (передние ножки скамейки)
  • 2 доски 90 см (задние ножки скамейки и ее крепеж)
  • 4 доски по 52 см (внутренняя обвязка ножек)

Как сделать деревянную скамейку своими руками

Для скамейки следует выбирать следует качественную, хорошо высушенную древесину. Это поможет избежать таких неприятных «сюрпризов», как растрескивание или коробление. На материале не должно быть видимых сколов, трещин, сучков и других грубых дефектов.

На дереве не должно быть плесени, грибка, поражения вредителями. Породу дерева можно выбрать абсолютно любую. Требования к древесине одинаковы. Не важно, покупаете ли вы их древесину или она осталась от каких-то предыдущих работ.

При помощи ножовки или лобзика, распиливаем доски необходимого размера. Все детали будущей скамейки нужно тщательно отшлифовать, не оставляя неровностей, в том числе и на месте спила.

Далее, все элементы нужно пропитать защитным средством. От плесени, насекомых, воздействия влаги, гниения. Так, ваша скамейка прослужит вам ни один год верой и правдой.

-3

Сборка деталей скамейки

Начинать сборку следует с ножек. Так, задние и передние ножки скамейки, соединяем, с помощью поперечин. Они будут служить обвязкой. Соединять нужно и сверху и снизу. Расстояние между ножками 30 см. Обратите внимание на то, чтобы ножки были ровными, от этого зависит устойчивость конструкции.

-4

Ножки соединили. Далее делаем соответствующий угол наклона на держатели спинки. Намечаем, при помощи угольника, соответствующий угол наклона и делаем спил по наметке.

-5

Далее монтируем сиденье. Доски сиденья крепим саморезами к верхней обвязке ножек.

И финальный шаг, это монтаж спинки скамейки. От сиденья отступаем 10-15 см и прикручиваем доски поочередно.

Далее, готовую скамейку следует покрыть лаком или краской. Можно выполнить элементы резьбы или украсить ковкой. Все зависит от вашего воображения

Для развития и существования канала, нам жизненно необходимы Ваши лайки.

Спасибо Вам за них!)

Будет очень интересно!!!!

Подписывайтесь на наш канал Яндекс.Дзен

Источник: Древология.Ру