Добавить в корзинуПозвонить
Найти в Дзене
Ушли в деревню

Какой дом я хочу

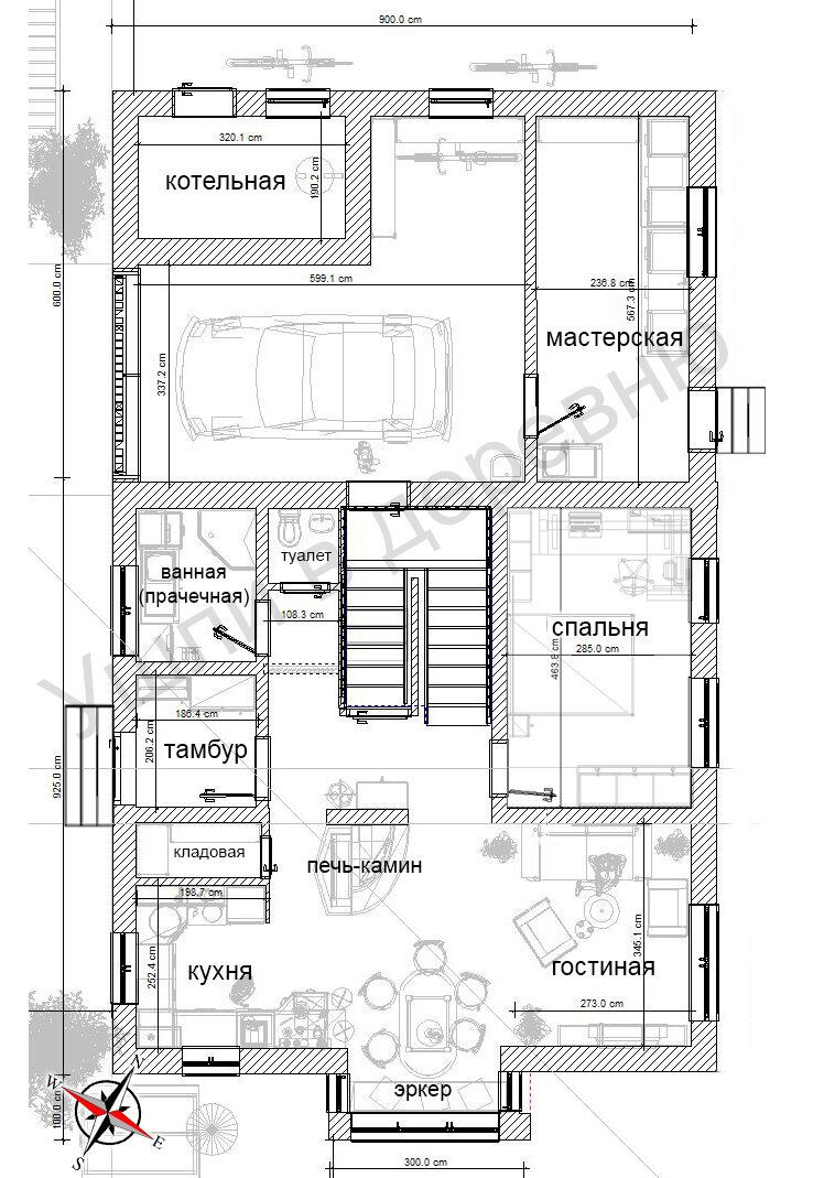
Мы сейчас находимся на стадии проектирования дома. Изучив много информации в интернете (а где же ещё!) я пришла к выводу, что двум людям в перспективе с двумя детьми хватит дома с жилой площадью 60-100 кв. метров. В итоге у меня получился такой проект (в частности, планировка первого этажа, на втором этаже предполагаю только две комнаты и санузел совмещенный). Я считаю, что проектирование дома нужно начинать с внутренней планировки, а не с красивого фасада, чтобы потом не было мучительно досадно и не приходилось внушать себе, что всё ОК. Таким образом, на первом этаже у меня разместилась кухня-столовая-гостиная, и обязательно одна жилая комната для хозяев (на перспективную старость, чтоб на второй этаж не ходить, или для престарелых гостей или родителей). Также санузел раздельный, чтоб, когда стирает машинка, тот, кто пошёл в туалет, спокойно делал там свои дела. Под лестницей – хозпомещение для хранения барахла (а оно обязательно будет, судя из жизненного опыта), автомобильных ши

Мы сейчас находимся на стадии проектирования дома.

Изучив много информации в интернете (а где же ещё!) я пришла к выводу, что двум людям в перспективе с двумя детьми хватит дома с жилой площадью 60-100 кв. метров.

В итоге у меня получился такой проект (в частности, планировка первого этажа, на втором этаже предполагаю только две комнаты и санузел совмещенный).

Я считаю, что проектирование дома нужно начинать с внутренней планировки, а не с красивого фасада, чтобы потом не было мучительно досадно и не приходилось внушать себе, что всё ОК.

Таким образом, на первом этаже у меня разместилась кухня-столовая-гостиная, и обязательно одна жилая комната для хозяев (на перспективную старость, чтоб на второй этаж не ходить, или для престарелых гостей или родителей). Также санузел раздельный, чтоб, когда стирает машинка, тот, кто пошёл в туалет, спокойно делал там свои дела.

Под лестницей – хозпомещение для хранения барахла (а оно обязательно будет, судя из жизненного опыта), автомобильных шин…
Вход из гаража через лестницу с закрытой дверью (т.е. двери две штуки – при входе непосредственно из гаража и одна – под лестницей, перед прихожей), чтоб автомобильные выхлопы в дом не проходили.

Собственный проект
Собственный проект

Тамбур холодный.

А! Ещё очень важный момент, между кухней и гостиной – печка-камин (на случай катаклизма, ну и так, для души).

Столовая с эркером.

Собственный проект
Собственный проект

Это приблизительный проект, по размерам могут быть уточнения, это уже с профессионалами надо будет уточнять.

Кухня. Между кухней и тамбуром устроила холодную кладовку. Это освободит место на кухне от посуды (тазиков, чанов), которая используется редко, например, во время осенних заготовок.

Конечно, может быть, эта планировка – мечта идиота, но хотелось бы знать, что здесь не так.