Добавить в корзинуПозвонить
Найти в Дзене
Проектная мастерская №16

Проект одноэтажного дома площадью 92кв.м. с четырьмя спальнями для проживания многодетной семьи из 5-6 человек.

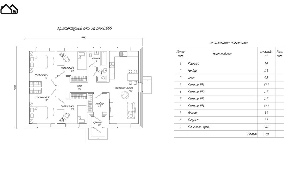
Вашему вниманию эскизный проект одноэтажного одноквартирного кирпичного жилого дома площадью 92кв.м. с четырьмя спальнями и совмещенными гостиной и кухней. Архитектурно-планировочное решение
Дом можно условно поделить на индивидуальную и коллективную зоны. Индивидуальная зона охватывает функции сна, занятий, личной гигиены, отдыха. Спальные комнаты сгруппированы в левом крыле дома. Коллективная зона включает в себя гостиную-кухню из которой имеется выход на приусадебный участок. Входная группа объединяет крыльцо с козырьком, холодный и теплый тамбуры. Коммуникация между помещениями осуществляется через холл. Сразу при входе располагаются помещения ванной комнаты и санузла. Наружная отделка. Стены цоколя - цокольный кирпич с облицовкой клинкерной плиткой. Стены выше ноля - лицевой кирпич с расшивкой швов). Оконные переплеты и балконные двери применять из ПВХ или алюминиевых профилей. По периметру дома предполагается бетонная отмостка шириной 1000мм. Внутренняя отделка - на усмотрение

Вашему вниманию эскизный проект одноэтажного одноквартирного кирпичного жилого дома площадью 92кв.м. с четырьмя спальнями и совмещенными гостиной и кухней.

Архитектурно-планировочное решение
Дом можно условно поделить на индивидуальную и коллективную зоны. Индивидуальная зона охватывает функции сна, занятий, личной гигиены, отдыха. Спальные комнаты сгруппированы в левом крыле дома. Коллективная зона включает в себя гостиную-кухню из которой имеется выход на приусадебный участок. Входная группа объединяет крыльцо с козырьком, холодный и теплый тамбуры. Коммуникация между помещениями осуществляется через холл. Сразу при входе располагаются помещения ванной комнаты и санузла.

-2

Наружная отделка. Стены цоколя - цокольный кирпич с облицовкой клинкерной плиткой. Стены выше ноля - лицевой кирпич с расшивкой швов). Оконные переплеты и балконные двери применять из ПВХ или алюминиевых профилей. По периметру дома предполагается бетонная отмостка шириной 1000мм. Внутренняя отделка - на усмотрение застройщика.

-3

Конструктивное решение
Проект жилого дома со стенами из кирпича запроектирован с несущими поперечными стенами. Пространственная жесткость здания обеспечивается совместной работой продольных и поперечных стен. Варианты конструкций принять исходя из условий участка строительства и по согласованию с заказчиком.

-4

Фундамент - ленточный (мелкого заложения).
1. Наружные стены запроектированы трехслойными, выполненными из несущего внутреннего слоя, теплоизоляционного и наружного облицовочного слоя.
2. Внутренние стены и перегородки выполняются из керамического пустотелого кирпича 2.1НФ.
3. Полы первого этажа предусмотрены по бетонному основанию по грунту.
4. Чердачное перекрытие - по деревянным балкам
5. Крыша - чердачная, вальмовая с навесом над крыльцом. 
6. Кровля - металлочерепица серая по деревянной стропильной системе.
7. Оконные блоки из ПВХ профилей без ламинирования.
8. Двери наружные - металлические, внутренние - деревянные.

-5

Подписывайтесь на канал ПМ№16

Смотрите проект дома площадью 83кв.м. с четырьмя спальнями.

Смотрите проект другого одноэтажного дома площадью 140кв.м. с тремя спальнями и террасой.

Смотрите больше проектов на официальном сайте ПМ№16 >>