Добавить в корзинуПозвонить
Найти в Дзене
Проекты Коттеджей

Проект двухэтажного дома 187 м² из газобетона с террасой

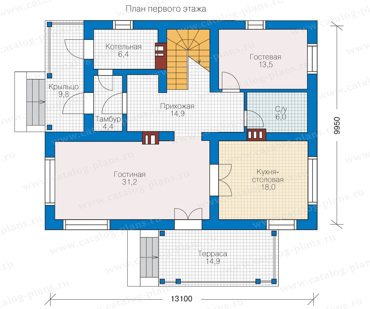
Проект двухэтажного дома из газобетона. Экстерьер дома отличается сочетанием различных по цвету и фактуре материалов. К ним относится камень, штукатурка, декоративные элементы, подчеркивающие границы и усиливающие контрасты. Несущие стены выполнены из газобетона и отделаны штукатуркой. В проекте предусмотрен монолитный железобетонный фундамент, перекрытия между первым и вторым этажом монолитные, чердачное перекрытие по деревянным балкам. Общая площадь дома 187 квадратных метров, габаритные размеры 13 х 10 метров. Такой дом может с легкостью разместиться почти на любом участке. Первый этаж разместил в себе все помещения гостевой группы. Здесь имеются гостиная с камином, кухня-столовая, гостевая комната, совмещенный санузел, котельная, прихожая с лестницей на второй этаж. Кухня столовая и гостиная могут быть в едином пространстве благодаря большой двупольной двери. Гостиная имеет выход на террасу. На втором этаже разместились три спальни, ванная, санузел, кладовая, большой просторный хо

Проект двухэтажного дома из газобетона. Экстерьер дома отличается сочетанием различных по цвету и фактуре материалов.

К ним относится камень, штукатурка, декоративные элементы, подчеркивающие границы и усиливающие контрасты. Несущие стены выполнены из газобетона и отделаны штукатуркой. В проекте предусмотрен монолитный железобетонный фундамент, перекрытия между первым и вторым этажом монолитные, чердачное перекрытие по деревянным балкам. Общая площадь дома 187 квадратных метров, габаритные размеры 13 х 10 метров.

-2
-3

Такой дом может с легкостью разместиться почти на любом участке. Первый этаж разместил в себе все помещения гостевой группы. Здесь имеются гостиная с камином, кухня-столовая, гостевая комната, совмещенный санузел, котельная, прихожая с лестницей на второй этаж. Кухня столовая и гостиная могут быть в едином пространстве благодаря большой двупольной двери. Гостиная имеет выход на террасу.

На втором этаже разместились три спальни, ванная, санузел, кладовая, большой просторный холл.

Подробнее о проекте:
https://catalog-plans.ru/catalog/57-03

Проекты домов от 150 до 200 м²:
https://catalog-plans.ru/catalog/150m-250m

Проекты двухэтажных домов:
https://catalog-plans.ru/catalog/dvuhetazhnie