Найти в Дзене
4living

Однушка в доме 137 серии

Оптимальное использование каждого квадратного метра позволило дизайнерам в пределах стандартной однокомнатной квартиры обустроить стильное и удобное жилище для молодого человека.  Сведения о квартире: 1-комнатная квартира площадью 39,55 кв. м в доме серии 10.75-137. Владелец квартиры: молодой человек.   Пожелания клиента: создать функциональный, «интеллигентный» интерьер.  План квартиры 137 серии. Дома 137 серии строятся еще с 70-х годов прошлого века. Если хозяева решают из такой квартиры сделать современное жилье, как правило, убирают стены, делают студии и т.п. В нашем случае заказчик поставил условие: без принципиальной перепланировки создать в типовой однокомнатной квартире интерьер, достойный модного, молодого человека. Также требовалось на небольшой площади – комната 18,47 кв. м – организовать пространство, совмещающее функции гостиной, спальни и рабочего кабинета. Кухня 8,27 кв. м должна была стать и столовой, в которой можно принимать гостей.  Все пожелания заказчика уд

Оптимальное использование каждого квадратного метра позволило дизайнерам в пределах стандартной однокомнатной квартиры обустроить стильное и удобное жилище для молодого человека. 

Сведения о квартире: 1-комнатная квартира площадью 39,55 кв. м в доме серии 10.75-137.

Владелец квартиры: молодой человек.  

Пожелания клиента: создать функциональный, «интеллигентный» интерьер. 

-2

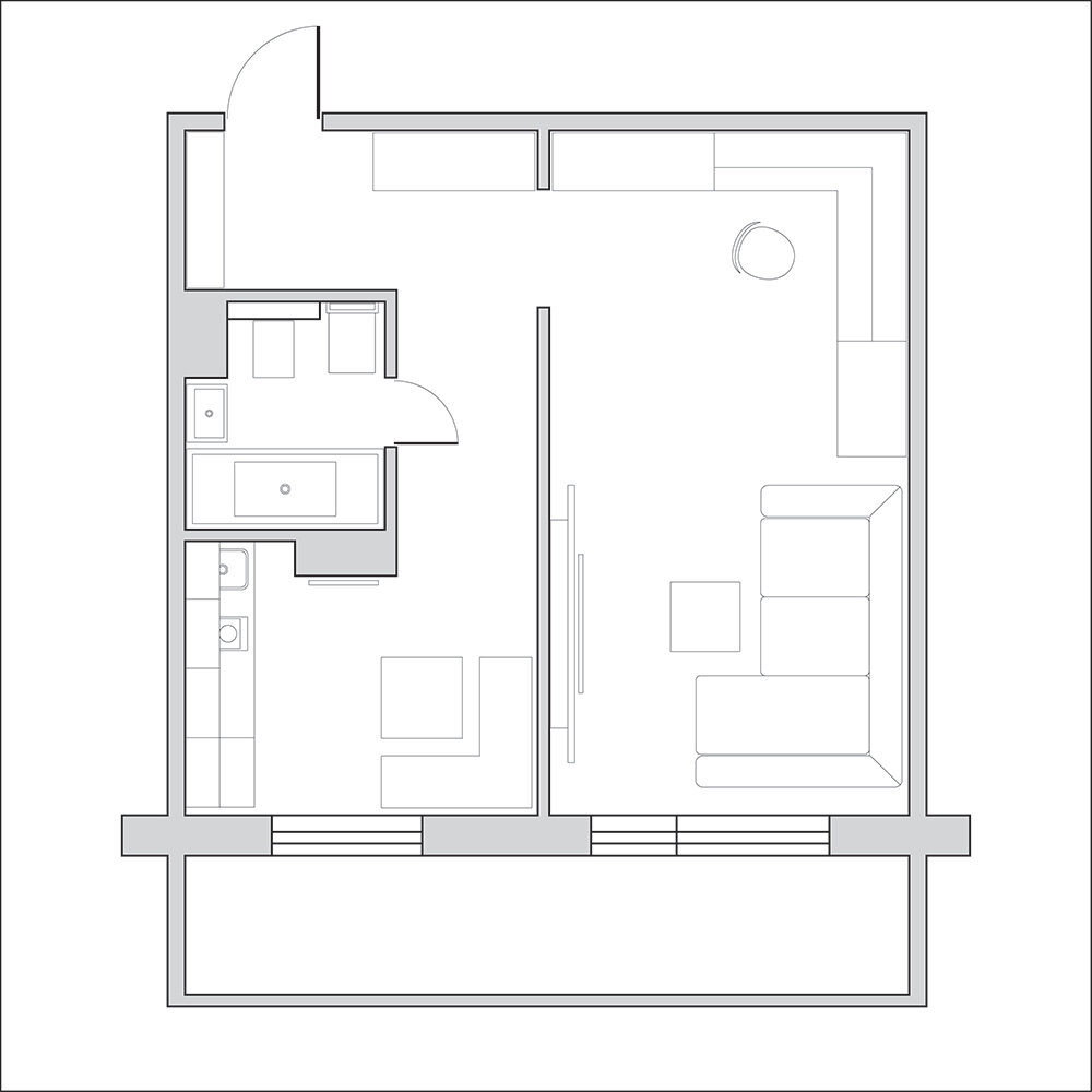
План квартиры 137 серии.

Дома 137 серии строятся еще с 70-х годов прошлого века. Если хозяева решают из такой квартиры сделать современное жилье, как правило, убирают стены, делают студии и т.п.

В нашем случае заказчик поставил условие: без принципиальной перепланировки создать в типовой однокомнатной квартире интерьер, достойный модного, молодого человека.

Также требовалось на небольшой площади – комната 18,47 кв. м – организовать пространство, совмещающее функции гостиной, спальни и рабочего кабинета. Кухня 8,27 кв. м должна была стать и столовой, в которой можно принимать гостей. 

Все пожелания заказчика удалось удовлетворить. Грамотное зонирование, оригинальное сочетание фактур и материалов сделало все помещения квартиры стильными и функциональными. Доминанта серого в интерьере создает атмосферу уверенности и надежности: ассоциации с серым цветом – камень и сталь, твердость и нерушимость. Деревянные конструкции дополняют природный колорит, поддерживают общий тон интерьера, так как выполнены из древесины холодных тонов.

Квартира получилась светлая – много белого и светло-серого цвета. Оказалось, что даже в советской планировке 70-х можно организовать актуальное пространство для жизни современного человека. 

-3

Отсутствие подсобных помещений и гардеробной компенсирует грамотное расположение шкафов и систем хранения - они создают впечатление стен, а не отдельностоящей мебели. 

-4

Оптимально использована небольшая площадь кухни. Вентиляционная шахта, ломающая пространство, превратилась в кирпичную колонну.

-5

Кухня продолжает тему камня, заявленную в жилой зоне. Темно серый и белый, кожа, камень и металл - все графично и контрастно.

-6

Кухня - одновременно и маленькая гостиная, и кабинет: завтрак с ноутбуком, ужин с друзьями.

-7

Панель под ТВ и потолок выполнены из дерева. Это обеспечивает дополнительную звукоизоляцию в квартире.

-8

Внутренняя подсветка деревянной панели придает ей легкость, вся проводка скрыта за панелью.

-9

Рабочее место органично встроено в систему хранения и визуально не занимает много пространства.

-10

Грамотная планировка санузла позволила вместить все необходимое.

-11

Панно «Цветок» на мозаичной стене ванной - единственный романтический акцент в мужском суровом интерьере.

-12