Найти в Дзене
Проектная мастерская №16

Проект одноэтажного дома для проживания многодетной семьи из 5-7 человек площадью 121кв.м. с пятью спальнями

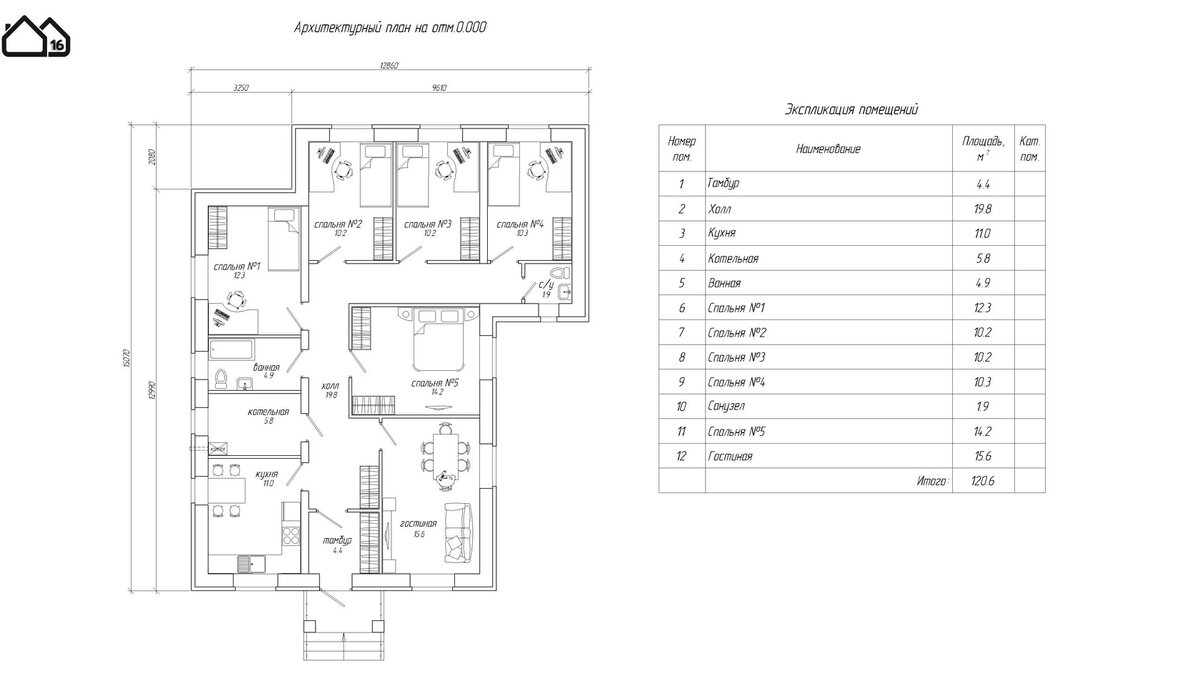
Вашему вниманию эскизный проект одноэтажного одноквартирного шести комнатного кирпичного жилого дома площадью 121кв.м., который предполагается для заселения многодетной семьей из 5-7 человек. Архитектурно-планировочное решение
План дома можно условно поделить на индивидуальную и коллективную зоны. Индивидуальная зона охватывает функции сна, занятий, личной гигиены, отдыха. Спальные комнаты сгруппированы в задней части дома. Для удобства один санузел расположен в дальней части коридора. Коллективная зона включает в себя гостиную и кухню. Входная группа объединяет крыльцо и тамбур. Коммуникация между помещениями осуществляется через холл. Рядом с кухней располагается техническое помещение помещение котельной (теплогенераторной), которое в силу большой площади может быть использовано и как кладовая. Наружная отделка. Стены цоколя - с облицовкой декоративным камнем. Стены выше ноля - лицевой кирпич с расшивкой швов. Оконные переплеты и балконные двери применять из ПВХ или алюминиевых п

Вашему вниманию эскизный проект одноэтажного одноквартирного шести комнатного кирпичного жилого дома площадью 121кв.м., который предполагается для заселения многодетной семьей из 5-7 человек.

Архитектурно-планировочное решение
План дома можно условно поделить на индивидуальную и коллективную зоны. Индивидуальная зона охватывает функции сна, занятий, личной гигиены, отдыха. Спальные комнаты сгруппированы в задней части дома. Для удобства один санузел расположен в дальней части коридора. Коллективная зона включает в себя гостиную и кухню. Входная группа объединяет крыльцо и тамбур. Коммуникация между помещениями осуществляется через холл. Рядом с кухней располагается техническое помещение помещение котельной (теплогенераторной), которое в силу большой площади может быть использовано и как кладовая.

-2

Наружная отделка. Стены цоколя - с облицовкой декоративным камнем. Стены выше ноля - лицевой кирпич с расшивкой швов. Оконные переплеты и балконные двери применять из ПВХ или алюминиевых профилей с ламинированием. По периметру дома предполагается бетонная отмостка шириной 800мм. Внутренняя отделка - на усмотрение застройщика.

-3

Конструктивное решение
Проект жилого дома со стенами из кирпича запроектирован с несущими поперечными стенами. Пространственная жесткость здания обеспечивается совместной работой продольных и поперечных стен. Варианты конструкций принять исходя из условий участка строительства и по согласованию с заказчиком.

-4

Фундамент - на буровых сваях с ростверком шириной 550мм и высотой 600мм.
1. Наружные стены запроектированы двухслойными, выполненными из несущего внутреннего слоя и наружного облицовочного слоя. Внутренний слой выполняется из газобетонных блоков D500 толщиной 400мм, наружный - из лицевого кирпча 1.4НФ.
2. Внутренние стены выполняется из газобетонных блоков D500 толщиной 250мм, перегородки - из газобетонных блоков D500 толщиной 100мм.
3. Полы предусмотрены по бетонному основанию по грунту.
4. Чердачное перекрытие - по деревянным балкам
5. Крыша - чердачная, вальмовая сложной фрмы с отдельным козырьком над крыльцом.
6. Кровля - металлочерепица серая по деревянной стропильной системе.
7. Оконные блоки из ПВХ профилей с ламинированием.
8. Двери наружные - металлические, внутренние - деревянные.

-5

Спасибо за просмотр!

Подписывайтесь на канал ПМ№16

Все эскизные проекты можно скачать на нашем сайте pm16.ru.

Для заказа рабочего проекта воспользуйтесь тел.+79047122103. Например стоимость строительной части (архитектура + конструктив) на данный эскизник составит 10т.р. Проект содержит все необходимые планы,схемы и узлы для постройки дома.