Найти в Дзене
4living

Двухуровневая квартира 40 кв. м

До того, как эта квартира попала в руки архитекторам из ARCHITALES, она представляла собой нежилое помещение. Но у нее было одно большое преимущество – высокие потолки. 

На набережной Крюкова канала, в центре Санкт-Петербурга в старом доме с высокими потолками, огромными арочными окнами и толстыми стенами появился современный интерьер.  © 4living.ru
На набережной Крюкова канала, в центре Санкт-Петербурга в старом доме с высокими потолками, огромными арочными окнами и толстыми стенами появился современный интерьер. © 4living.ru

Несмотря на самые простые материалы, интерьер квартиры напоминает о дворцовом Петербурге. Гостиную с высокими потолками освещает огромная люстра, свечи зажигаются наравне с электрическими светильниками, а вещи хранятся в сундуках и сервантах.

Полезная площадь до того, как молодые архитекторы взялись создать современный интерьер для квартиры старого дома, составляла всего 40 кв. м. А вот высота потолков в этой квартире – 4,70 м. Поэтому было решено построить второй этаж для спальни. Этот прием позволил увеличить жилое пространство до 53 кв. м. Однако на втором этаже поместилась не только кровать, но также и гардеробная, и небольшой санузел.

Сняв старую штукатурку, обнаружили балки перекрытия. Их очистили и решили оставить открытыми, подшив лишь пространство между ними. Открытой также оставили и кладку вокруг оконных проемов.

Каждый аксессуар в этом интерьере обладает неповторимым и самобытным характером. Люстра сделана из химических колб, свет, падающий от свечей, отражается в многогранных зеркальцах бра, чемодан на колесиках под телевизором используется как хранилище для дисков. Весь интерьер в квартире производит впечатление рукотворного, каковым он по сути и является. 

-2

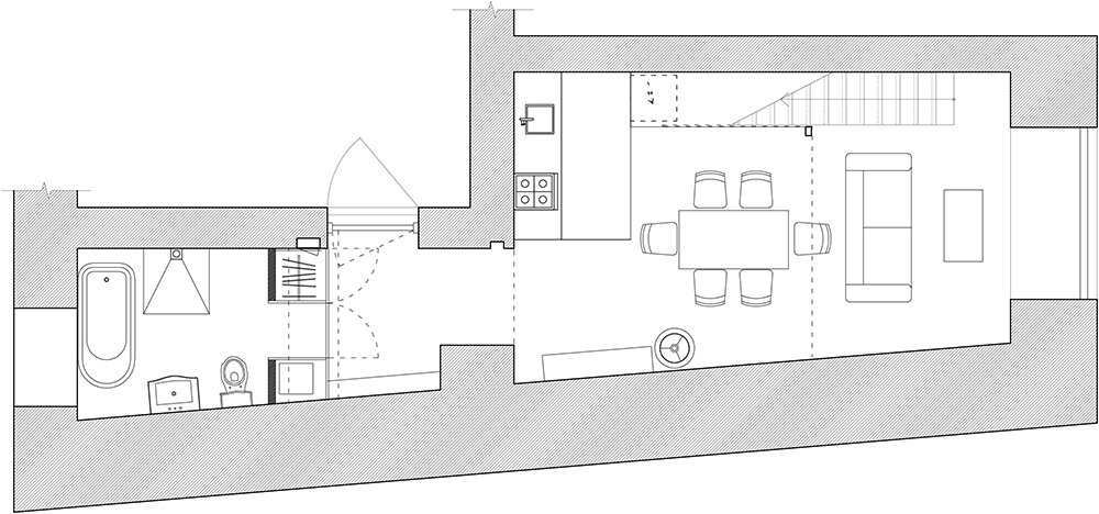
План первого этажа: на плане видно, что помещение архитекторам досталось сложное, сильно вытянутое в длину, неправильной формы. С одной стороны от входа решено было сделать санузел, а напротив него – жилое пространство. 

-3

План второго этажа: так как комната имеет трапецевидную форму, на антресоли нет ни одной параллельной линии, но это практически незаметно. Кровать, приставленная к стене, расположена под небольшим углом по отношению к перилам. Линия деревянных фасадов продолжает тему трапеции, что позволило спрятать за ними шкаф и туалет. 

-4

В этой квартире много натуральных материалов: дерево, текстиль, камень и совсем нет пластика, поэтому атмосфера здесь очень теплая и уютная.

-5

Лестницу, как и многие другие предметы в этом интерьере, делали по индивидуальному проекту.

-6

Зона кухни находится под антресолью.

-7

На кухне нет громоздких шкафов, только легкие полки для хранения посуды, а столовые приборы хранятся в серванте.

-8

Обратите внимание, как решена система освещения в спальне. Здесь стоят напольные фонарики, большие лампы которых перекликаются с люстрой. Уединенную обстановку создают бра со свечами. 

-9

За деревянными фасадами прячется небольшой санузел…

-10

… и крошечная гардеробная. После возведения второго уровня здесь образовалось окошко, через которое проникает свет.

-11

Зеркало, занимающее всю стену напротив входа, зрительно увеличивает небольшую прихожую. Санузел и шкаф для верхней одежды также скрыты за деревянными фасадами. Теплое необработанное дерево буквально светится на фоне светлой плитки и бирюзовой портьеры. 

-12

В санузле на первом этаже разместили не только душевой угол, но и красивую ванну на львиных лапах. А всю стену напротив душевой кабины занимает горизонтальное зеркало. В это же зеркало вмонтирована подсветка. 

-13

Обратите внимание, как хорошо сочетается открытая кирпичная кладка в проеме окна и строгая мозаичная плитка.

-14

Люстру также сделали по эскизам архитекторов. Собирали ее в цехах Ленинградского Северного завода.