Добавить в корзинуПозвонить
Найти в Дзене
Архитектурный критик

Проект компактного одноэтажного дома с 3 спальнями

Сегодня в обзоре компактный дом с площадью помещений 126 кв. м. Габаритные размеры дома 13*14 метров. Входная группа Вход в дом защищен крытым крыльцом. Крыльцо имеет площадь 5.4 кв. м. с него доступен вход в дом и в котельную. При входе в дом нас встречает тамбур (5.1 кв. м.). Тут предусмотрено две ниши для шкафов с верхней одеждой и обувью. Как уже было сказано с крыльца можно попасть в котельную (бойлерную) площадью 6 кв. м. Котельная также имеет вход с кухни. Из тамбура мы попадаем в холл (11 кв. м.). Здесь, напротив входа, расположен гардероб (2.7 кв. м.). Общая зона Общая зона состоит из столовой-гостиной площадью (31.2 кв. м.) и кухни (9.5 кв. м.). Зона кухни с двух сторон окружена окнами это сделает рабочую зону очень светлой. Из гостиной предусмотрен выход на небольшую уютную террасу (16.9 кв. м.). Спальная зона Спальная зона находится несколько в стороне, но она не ярко выражена. Здесь нашлось место для трех спален. Спальни имеют разную площадь 13.9, 16.7 и 20.4 кв. м. В спа
Оглавление

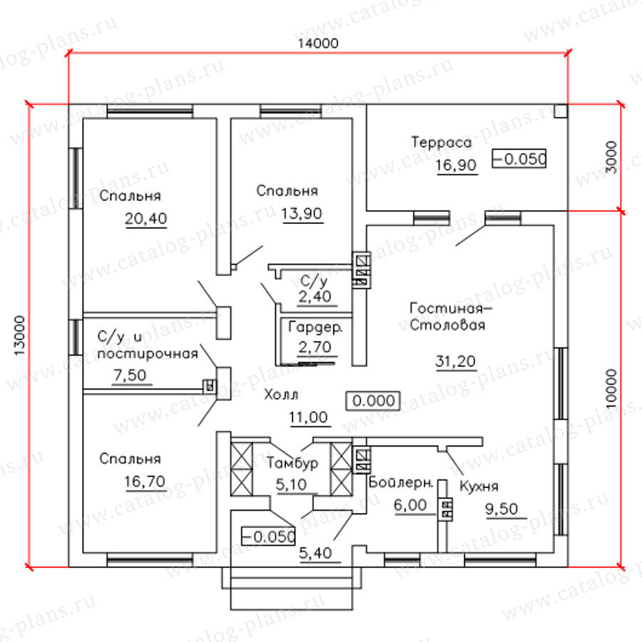
Сегодня в обзоре компактный дом с площадью помещений 126 кв. м. Габаритные размеры дома 13*14 метров.

Входная группа

Вход в дом защищен крытым крыльцом. Крыльцо имеет площадь 5.4 кв. м. с него доступен вход в дом и в котельную.

При входе в дом нас встречает тамбур (5.1 кв. м.). Тут предусмотрено две ниши для шкафов с верхней одеждой и обувью.

Как уже было сказано с крыльца можно попасть в котельную (бойлерную) площадью 6 кв. м. Котельная также имеет вход с кухни.

Из тамбура мы попадаем в холл (11 кв. м.). Здесь, напротив входа, расположен гардероб (2.7 кв. м.).

Внешний вид дома. Изображение с сайта https://catalog-plans.ru
Внешний вид дома. Изображение с сайта https://catalog-plans.ru

Общая зона

Общая зона состоит из столовой-гостиной площадью (31.2 кв. м.) и кухни (9.5 кв. м.). Зона кухни с двух сторон окружена окнами это сделает рабочую зону очень светлой. Из гостиной предусмотрен выход на небольшую уютную террасу (16.9 кв. м.).

Спальная зона

Спальная зона находится несколько в стороне, но она не ярко выражена. Здесь нашлось место для трех спален. Спальни имеют разную площадь 13.9, 16.7 и 20.4 кв. м.

В спальной зоне нашлось место большому санузлу площадью 7.5 кв. м. Здесь же может быть размещена постирочная зона.

Кроме того, в спальной зоне нашлось место еще одному небольшому санузлу (2.4 кв. м.).

Итоги

В целом проект получился довольно удобным. Кому-то может не хватить четкого разделения на спальную и общие зоны, с отдельным туалетом в общей зоне. В таком случае вам может понравится вот этот проект. В остальном дом подходит для комфортного проживания семьи из 3-4 человек.

Спасибо за прочтение! Напишите в комментариях подошел бы вам такой дом. Спасибо за лайки и подписку, это способствует развитию канала!
План дома. Изображение с сайта https://catalog-plans.ru
План дома. Изображение с сайта https://catalog-plans.ru